RM9 6TA - 2 bedroom terraced house for sale in Langley Crescent, Dage…

View on Property Piper

2 bedroom terraced house for sale in Langley Crescent, Dagenham, RM9

Summary - 89 LANGLEY CRESCENT DAGENHAM RM9 6TA

2 bed 1 bath Terraced

Spacious garden, driveway and good transport links — ideal for families or renovation buyers..
Chain-free mid-terrace with two bedrooms
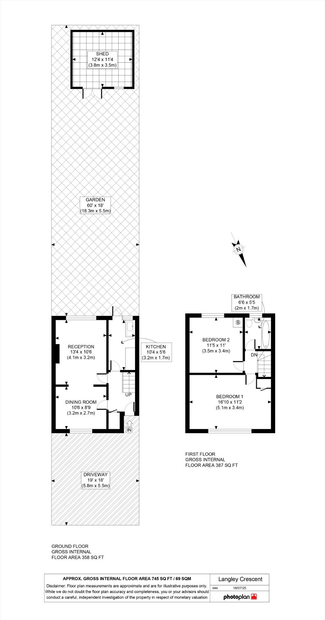
This chain-free two-bedroom mid-terrace offers a large private garden and off-street parking in a commuter-focused area close to Becontree station. The layout is traditional, with separate reception and dining rooms and a fitted kitchen, suited to young families or buyers seeking straightforward renovation potential.

The property benefits from an approx 60' x 18' rear garden, a substantial 12'4 x 11'4 shed, and a driveway for two cars. Gas central heating and double glazing are already in place; there is potential to extend subject to planning permission for increased living space.

The house requires modernization throughout — cosmetic and likely insulation upgrades — and dates from the post-war period (1950s–60s). EPC D and assumed solid brick walls with no cavity insulation mean energy improvements will be needed. The plot is modest and the wider area scores as deprived, though local schools and transport links are strong.

This is a practical buy for a family looking to move in and improve value, or an investor targeting long-term rental demand near good schooling and District line access. Expect refurbishment work to unlock the property's full potential.

Property Details

Image Descriptions

Floorplan Description

Rooms

Textual Property Features

Target Audience

AI Tags

Detected Visual Features

EPC Details

Nearby Schools

Nearest Bars And Restaurants

,,,,}

Nearest General Shops

,,}

Nearest Grocery shops

,,}

Nearest Supermarkets

,,}

Nearest Religious buildings

,,}

Nearest Medical buildings

,,,}

Nearest Airports

,}

Nearest Leisure Facilities

,,,,}

Nearest Tourist attractions

,,}

Nearest Train stations

,,,,}

Nearest Bus stations and stops

,,,,}

Nearest Hotels

,,}

Tags

Local Market Stats

AirBnB Data

Similar Properties

Meta

High Res Images

Compatible Images

Low res Images

Thumbnails

Raw Images

High Res Floorplan Images

Compatible Floorplan Images

Low res Floorplan Images

FloorplanImages Thumbnail

Raw Floorplan Images