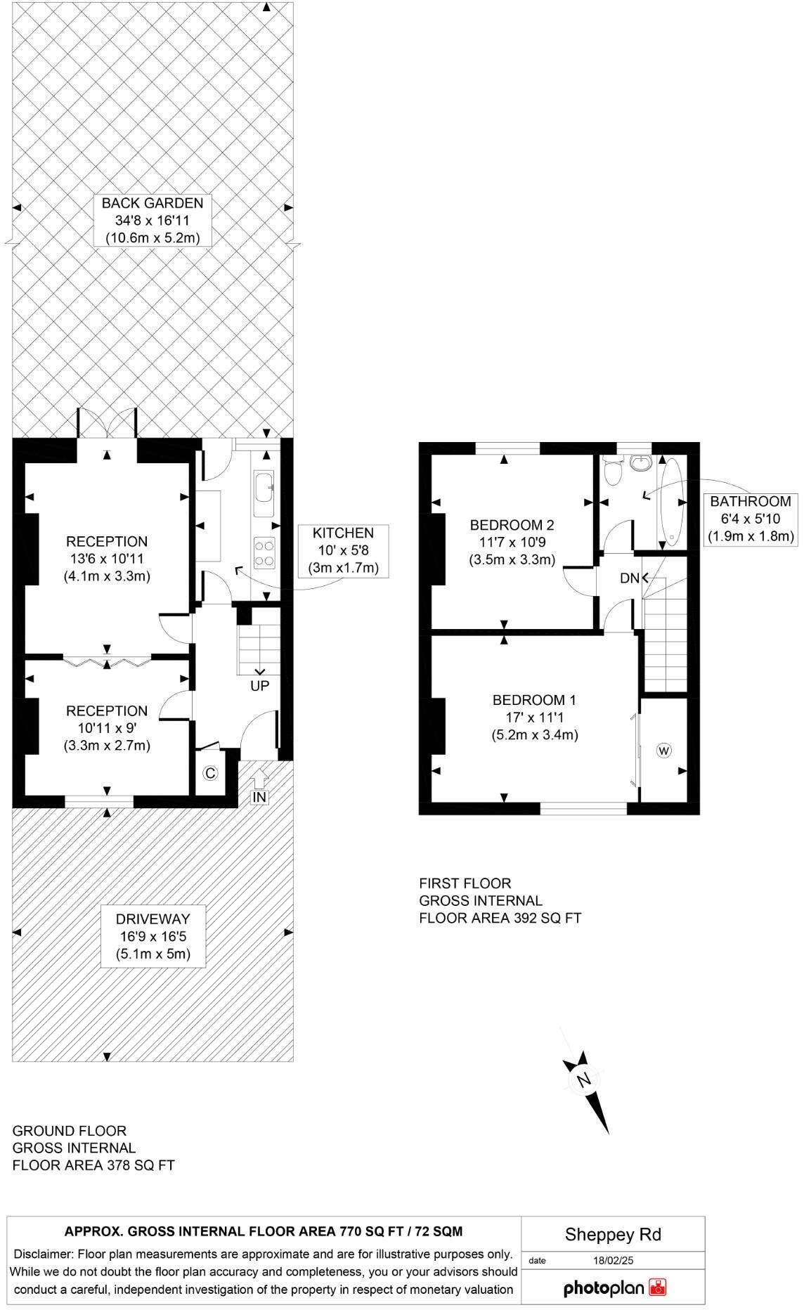
Discover the potential of this **2-bedroom terraced house** located in a lively urban neighborhood just steps from **Becontree Station**. This property features essential living space including **two reception rooms**, a **separate fitted kitchen**, and a **first-floor bathroom/WC**. The **private rear garden** (approx. 34'8 x 16'11) and an **off-street driveway** (approx. 16'9 x 16'5) provide additional convenience and outdoor space for relaxation or entertaining.
Key Features:
- **Chain-free** for a hassle-free purchase.
- Close proximity to excellent local schools rated ‘Good’ to ‘Outstanding,’ making it a great choice for families.
- Double glazing throughout and gas central heating ensure comfort.
- Priced at **£350,000**, this property offers renovation potential to truly make it your own.
While the house does exhibit some **external wear** and may need modernization—particularly in areas like damp issues and overall interior aesthetics—this presents a unique opportunity to create a comfortable living space tailored to your taste. The combination of a family-friendly environment, with nearby amenities and excellent transport links, makes this an attractive option for first-time buyers or investors looking for rental potential. Don’t miss out on this chance to turn a house into your ideal home!
2 bedroom terraced house for sale in Langley Crescent, Dagenham, RM9 — £400,000 • 2 bed • 1 bath • 745 ft²
2 bedroom terraced house for sale in Arden Crescent, Dagenham, RM9 — £365,000 • 2 bed • 1 bath • 700 ft²
2 bedroom terraced house for sale in Rugby Gardens, Dagenham, RM9 — £350,000 • 2 bed • 1 bath • 720 ft²
2 bedroom terraced house for sale in Ivyhouse Road, Dagenham, RM9 — £325,000 • 2 bed • 1 bath • 675 ft²
2 bedroom terraced house for sale in Woodward Road, Dagenham , RM9 — £350,000 • 2 bed • 1 bath • 784 ft²
2 bedroom terraced house for sale in Langley Crescent, Dagenham, RM9 — £390,000 • 2 bed • 1 bath • 727 ft²


















































