Chain-free two-bed terrace with driveway, deep garden and extension potential.
Chain free two-bedroom mid-terrace with parking and long rear garden
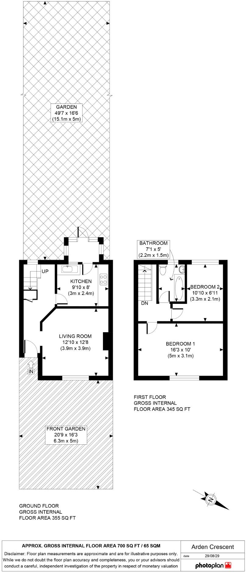
This two-bedroom mid-20th-century terraced house offers a practical commuter base close to Becontree (District line) Station, with straightforward access into central London. The property is chain free and presents immediate living space: reception room, fitted kitchen with utility area, and a first-floor bathroom. A long private rear garden and off-street driveway are notable assets for families or buyers seeking outdoor space and parking in this area.
The house has sensible scope for improvement and value-adding: a rear extension has already been added and there is further potential to extend subject to planning permission. The building is solid brick with double glazing and gas central heating, but buyers should note the property appears to lack wall insulation and carries an EPC rating of D. Some general updating and maintenance will be required to modernise interiors and improve energy efficiency.
Location strengths include nearby schools (several rated Good or Outstanding), local amenities, fast broadband and excellent mobile signal—useful for commuters and home workers. Important practical points: crime levels in the area are above average and the wider neighbourhood scores as deprived, which may affect long-term resale for some buyers. Council tax band C is relatively affordable.
This house will suit first-time buyers or young families looking for a reasonably priced, chain-free starter home with parking, a substantial rear garden and clear refurbishment potential. Investors seeking rental demand from commuters may also find the location attractive, bearing in mind the need for energy-efficiency improvements.
2 bedroom terraced house for sale in Langley Crescent, Dagenham, RM9 — £400,000 • 2 bed • 1 bath • 745 ft²
2 bedroom terraced house for sale in Sheppey Road, Dagenham, RM9 — £350,000 • 2 bed • 1 bath • 770 ft²
2 bedroom terraced house for sale in Rosedale Road, Dagenham , RM9 — £400,000 • 2 bed • 1 bath • 920 ft²
3 bedroom terraced house for sale in Romsey Road, Dagenham, RM9 — £390,000 • 3 bed • 1 bath • 960 ft²
2 bedroom terraced house for sale in Brewood Road, Dagenham, RM8 — £400,000 • 2 bed • 1 bath • 746 ft²
3 bedroom terraced house for sale in Arden Crescent, Dagenham, RM9 — £400,000 • 3 bed • 1 bath • 758 ft²










































