Large village plot with strong redevelopment potential near top-rated primary schools.
0.73-acre freehold plot with roadside frontage
A substantial development opportunity in South Cowton, offered as freehold land with the former Arden Arms public house and large roadside frontage. The 0.73-acre plot sits in a quiet North Yorkshire hamlet, with excellent mobile signal, very low crime and no identified flood risk — attractive features for residential or mixed-use redevelopment, subject to planning.
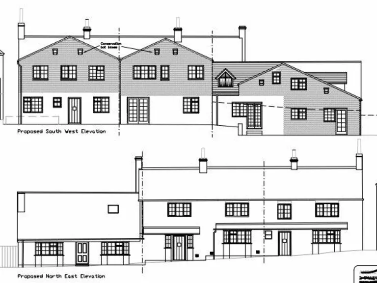
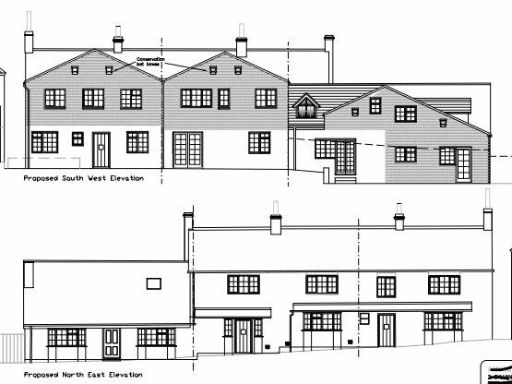
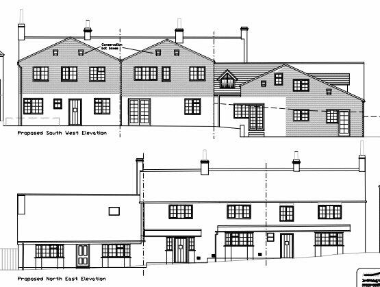
Planning application ZB23/00920/FUL is currently pending (STNPP). This listing suits a buyer wanting to add clear value through redevelopment or conversion; the site’s size, architectural elevation drawings and village location provide scope for a modern scheme that respects traditional design cues. The immediate area is affluent and agricultural, with small, well-regarded primary schools and basic village amenities close by.
Buyers should note material considerations: planning is not yet granted, broadband speeds in the area are slow, and the former pub will require full redevelopment and likely refurbishment works to repurpose the buildings or clear the site. No council tax band is provided. Interested parties should investigate services, access, and the planning application status before committing.
Residential development for sale in Residential Development Site, Smallways Country Inn, Newsham, DL11 7QW, DL11 — £400,000 • 1 bed • 1 bath • 4250 ft²
Property for sale in Land To The South Of Harmby Road, Leyburn, North Yorkshire, DL8 — £1,000,000 • 1 bed • 1 bath
Land for sale in Deveopment Site at Northallerton, Darlington Road, Northallerton, DL6 — £1,000,000 • 1 bed • 1 bath
Land for sale in Shire Road, Thirsk, YO7 — £850,000 • 1 bed • 1 bath
Residential development for sale in Prime Development Site, Hunton, Bedale, DL8 — £500,000 • 1 bed • 1 bath
Commercial development for sale in Yarm Back Lane, Stockton-on-Tees, TS21 — £500,000 • 1 bed • 1 bath














