Prime freehold site with consent for four modern semi-detached homes, suited to specialist developers.
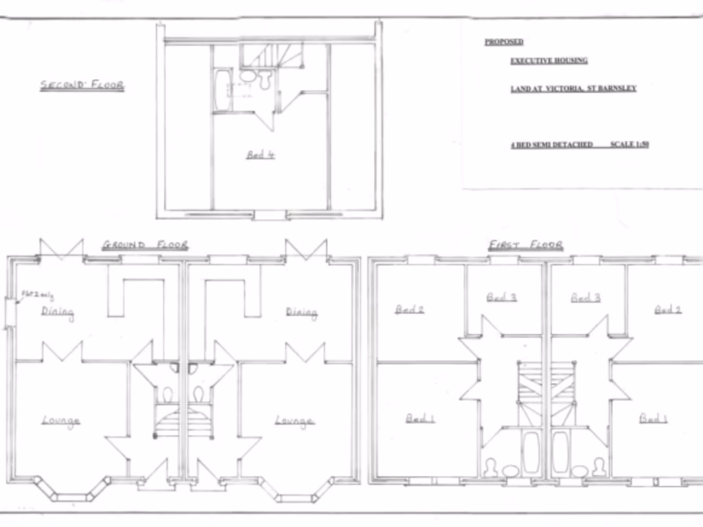
- Planning permission granted (Application: 2021/1225) for four-bedroom semis
- Freehold tenure with large, clearly defined plot size
- Each dwelling approx 133.5 sqm / 1,437 sq ft (three storeys)
- Potential to create a small gated development
- Excellent mobile signal and fast broadband on site
- Nearby schools rated Good or Outstanding
- Area classified as deprived with very high crime levels
- Local market described as hampered aspiration / constrained renters
A substantial freehold development plot in Barnsley with planning permission (Application: 2021/1225) for two pairs of three-storey, four-bedroom semi-detached homes. Each proposed dwelling is approximately 133.5 sqm (1,437 sq ft), offering generous living space across ground, first and second floors and potential for a gated small development. The site plan indicates clear build footprints within an established residential area.
This opportunity is aimed at developers or investors seeking a ready-to-build site in a minor conurbation. Technical positives include the freehold tenure, confirmed planning consent, excellent mobile signal and fast broadband — useful for sales and modern living expectations. Local amenities and a range of primary and secondary schools nearby (several rated Good or Outstanding) add practical appeal for family buyers.
Buyers should consider material local challenges: the area is classified as deprived with very high crime and wider classifications of hampered aspiration and constrained renters. These factors may affect sales values, rental demand and timing, and should be factored into viability, marketing and security costs. The plot’s large overall size offers scope to mitigate risk through quality design, gated security and targeted marketing to owner-occupiers.
This is a pragmatic development parcel: planning-ready and well-specified on paper, but requiring a realistic appraisal of local socio-economic conditions, likely build and security costs, and a clear sales or letting strategy to achieve value.
Plot for sale in Rotherham Road, Barnsley, S71 — £575,000 • 1 bed • 1 bath
Land for sale in Beechfield Close,Bolton-upon-Dearne,Rotherham,S63 8EY, S63 — £120,000 • 1 bed • 1 bath
Land for sale in Springfield Street, Barnsley, South Yorkshire, S70 — £55,000 • 3 bed • 1 bath • 1076 ft²
Land for sale in Station Road, Barnsley, South Yorkshire, S71 — £600,000 • 1 bed • 1 bath
Land for sale in Sandygate Lane, Ardsley, S71 — £800,000 • 1 bed • 1 bath
Land for sale in Pitt Street, Wombwell, Barnsley, S73 — £399,950 • 1 bed • 1 bath


















