**Standout Features:**
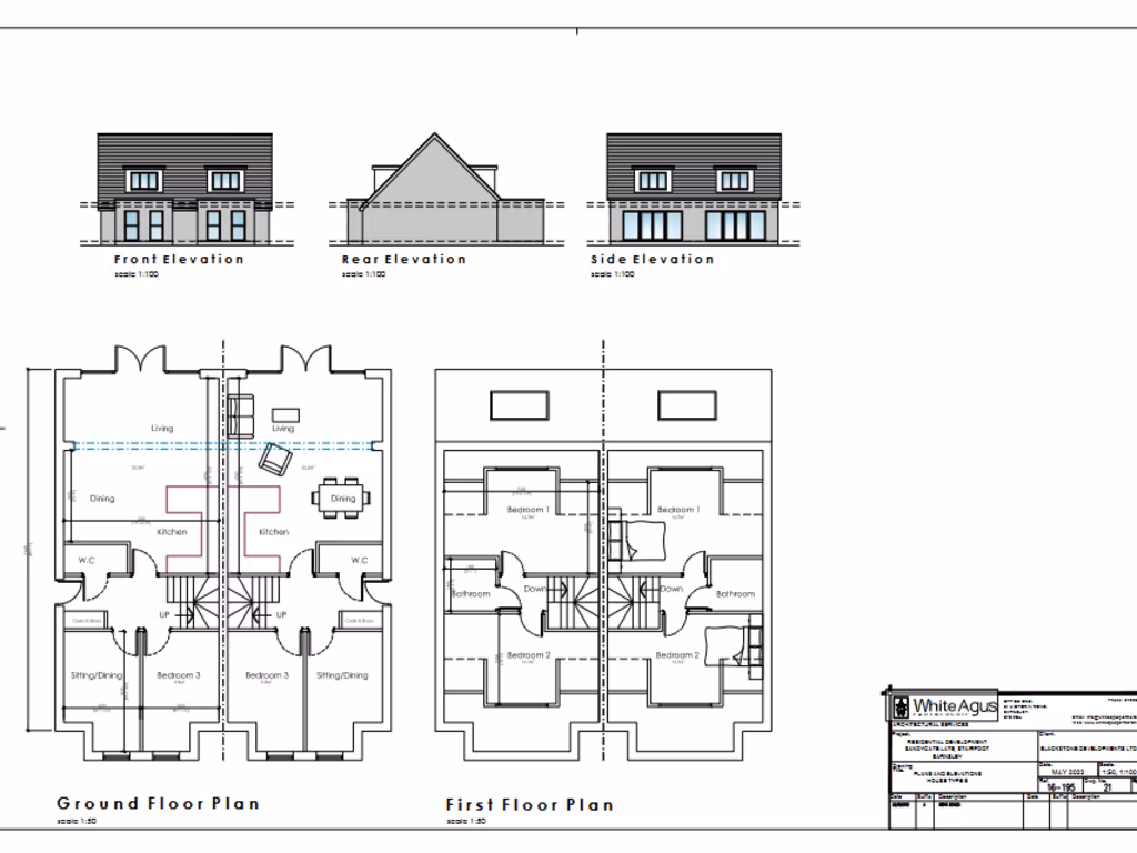
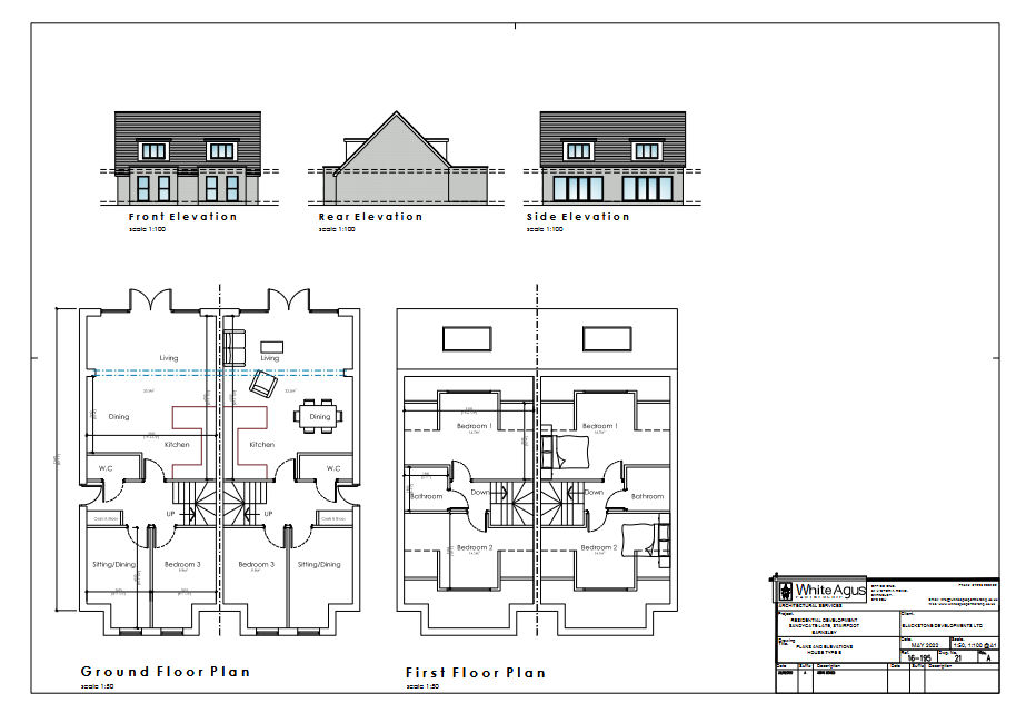
- 1.4-acre development site with consent for 18 semi-detached bungalows.
- Previous planning approvals for 12 townhouses and 15 apartments.
- Overlooks the scenic Trans Pennine Trail.
- Excellent road connectivity and proximity to local shopping facilities.
- Freehold tenure, allowing for future flexibility in development.
- All mains services available nearby.
**Concerns:**
- Crime rate in the area is above average.
- Broadband speeds are reported as slow, which may affect connectivity.
Explore a lucrative residential development opportunity with this impressive 1.4-acre freehold site, located in a transitioning industrious area. With existing planning consent for 18 bespoke two-storey semi-detached bungalows, along with prior approvals for townhouses and apartments, the potential for a significant return on investment is compelling, with projected gross development value around £5 million. 
This attractive plot benefits from excellent road links and a peaceful setting by the Trans Pennine Trail, making it ideal for family-oriented housing. The nearby schools, including Hunningley Primary Academy with an Outstanding Ofsted rating, enhance appeal to potential buyers. While the crime rate and slow broadband may pose concerns, the property’s strategic location and access to amenities such as takeaways and bars present a unique opportunity. Act fast—such prime development sites are rare and fleeting in today's market!
 Land for sale in Land Between Meadowhall Road, Pollard Street, And Thornton Street, Rotherham, S61 2JZ, S61 — POA • 1 bed • 1 bath
 Land for sale in Land Between Meadowhall Road, Pollard Street, And Thornton Street, Rotherham, S61 2JZ, S61 — POA • 1 bed • 1 bath Land for sale in Station Road, Barnsley, South Yorkshire, S71 — £700,000 • 1 bed • 1 bath
 Land for sale in Station Road, Barnsley, South Yorkshire, S71 — £700,000 • 1 bed • 1 bath Plot for sale in Rotherham Road, Barnsley, S71 — £575,000 • 1 bed • 1 bath
 Plot for sale in Rotherham Road, Barnsley, S71 — £575,000 • 1 bed • 1 bath Land for sale in Pitt Street, Wombwell, Barnsley, S73 — £399,950 • 1 bed • 1 bath
 Land for sale in Pitt Street, Wombwell, Barnsley, S73 — £399,950 • 1 bed • 1 bath Land for sale in Beechfield Close,Bolton-upon-Dearne,Rotherham,S63 8EY, S63 — £120,000 • 1 bed • 1 bath
 Land for sale in Beechfield Close,Bolton-upon-Dearne,Rotherham,S63 8EY, S63 — £120,000 • 1 bed • 1 bath Land for sale in North Of High Hazels Park, Infield Lane, Sheffield, S9 — £300,000 • 1 bed • 1 bath
 Land for sale in North Of High Hazels Park, Infield Lane, Sheffield, S9 — £300,000 • 1 bed • 1 bath


















