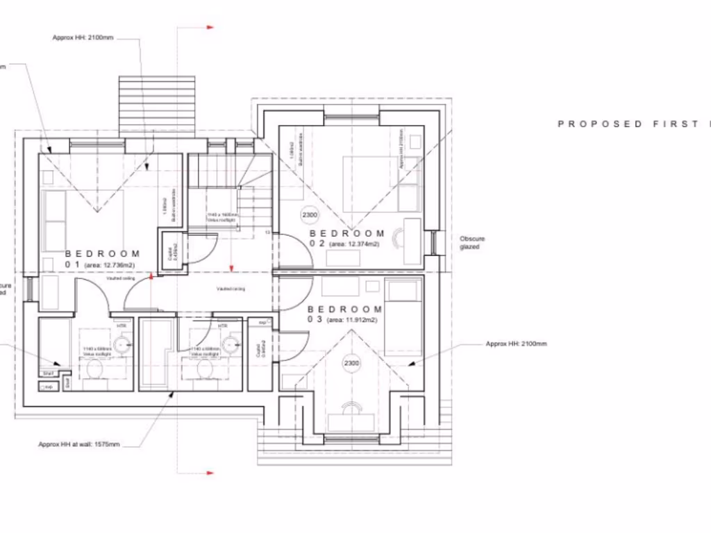
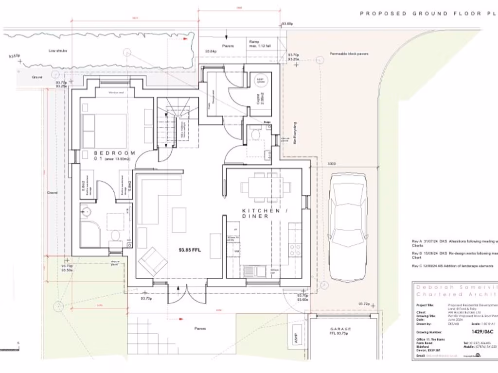
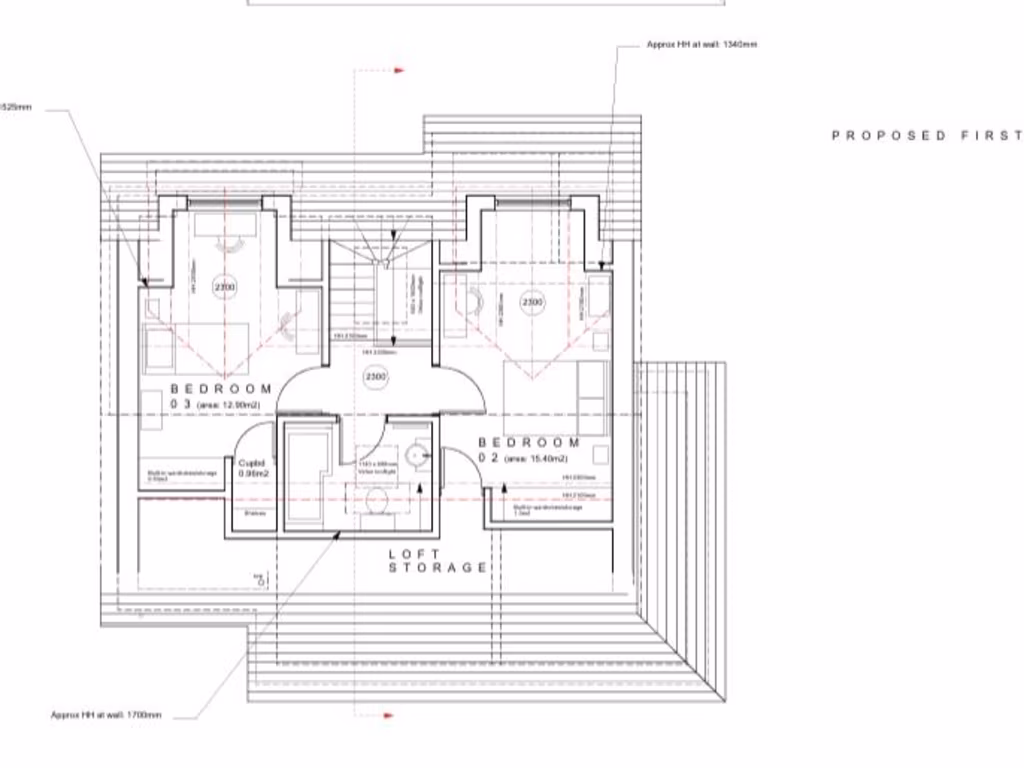
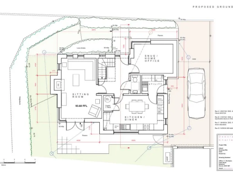
**Standout Features:**
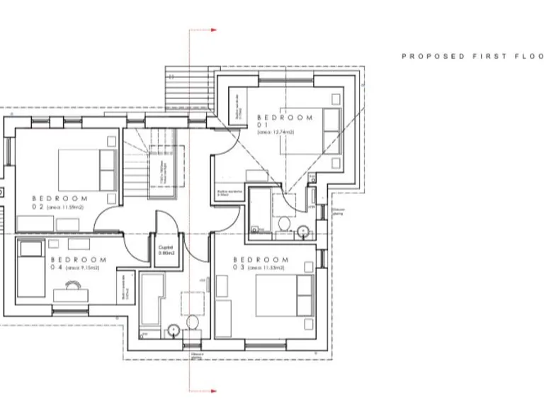
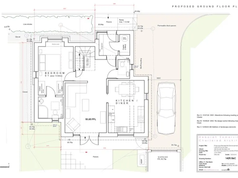
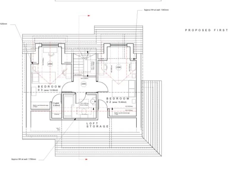
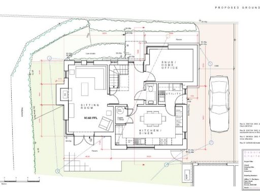
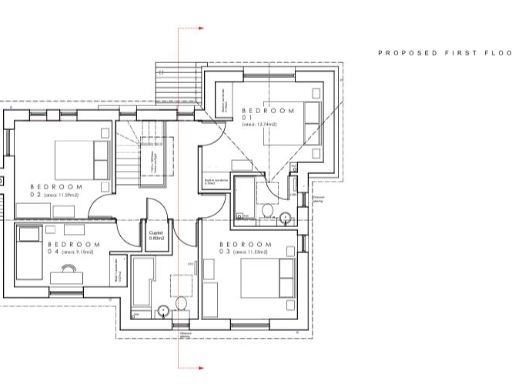
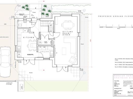
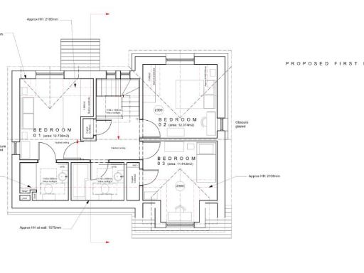
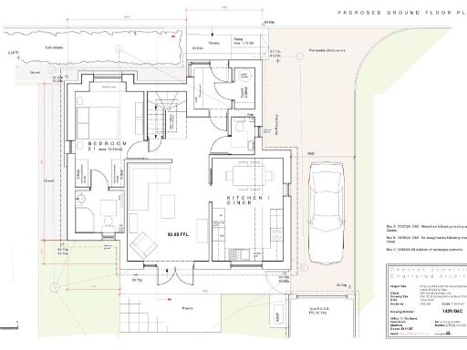
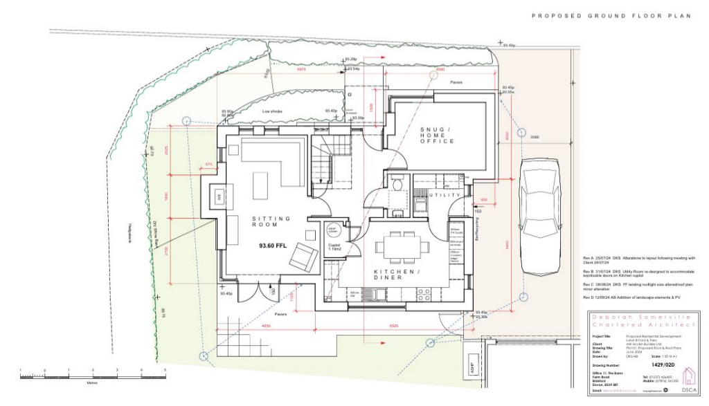
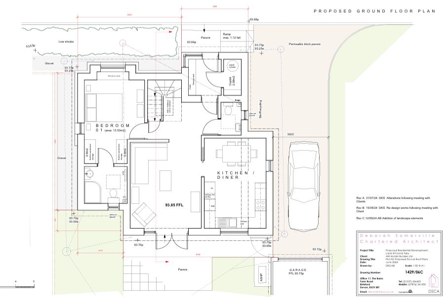
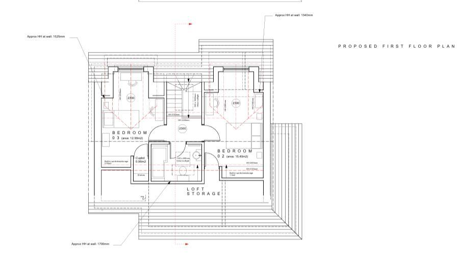
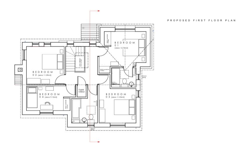
- Full planning permission granted for three detached properties (Planning reference: 1/0823/2024/REM).
- Located in the idyllic hamlet of Fairy Cross, North Devon.
- Excellent access to the North Devon Link Road, connecting to Bideford and Barnstaple.
- Large plot size with a total area of 1,314 sq ft.
- Private garages included for all proposed homes.
- Mains water, drainage, and electricity connections are available nearby.
- Truly serene countryside living with low crime rates and rapid broadband.
**Summary:**
Discover an exceptional development opportunity in the enchanting hamlet of Fairy Cross, North Devon. This sizable building plot, spanning a total area of over 1,300 sq ft, comes with full planning permission for the construction of three charming, detached properties, each designed with individual layouts and private garages. Entrepreneurs, self-builders, or families seeking a tranquil lifestyle will appreciate the peaceful surroundings coupled with easy access to the North Devon Link Road for convenient travel to Bideford, Barnstaple, and the stunning local coastline.
With mains water and drainage available on the road, and quotes received for electricity, this site provides a solid foundation for your dream project while also showcasing the potential for significant future returns. Enjoy the best of rural living with beautiful green spaces, a strong sense of community, and nearby schools rated 'Good' by Ofsted. Don’t miss this unique opportunity to shape your vision in a pristine countryside location—it's a rare find that won’t last long!
Detached house for sale in Fairy Cross, Bideford, EX39 — £425,000 • 1 bed • 1 bath • 1314 ft²
Land for sale in Buckland Brewer, Bideford, EX39 — £150,000 • 3 bed • 1 bath
Land for sale in Tawstock, Barnstaple, EX31 — £450,000 • 1 bed • 1 bath • 27878 ft²
Land for sale in West Hill, West Down, EX34 — £395,000 • 1 bed • 1 bath • 1543 ft²
Plot for sale in Cleave Wood, Langmead Drive, Bideford, EX39 — £250,000 • 1 bed • 1 bath • 2834 ft²
Plot for sale in Building Plots at Southfield, Horwood, EX39 — £250,000 • 5 bed • 1 bath • 1681 ft²










































































































































