Characterful period apartment ideal for first-time buyers or city investors.
Chain free ground-floor one-bedroom with private garden
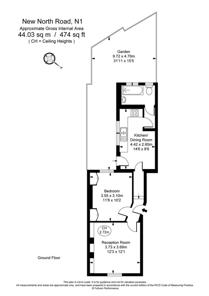
A bright ground-floor one-bedroom in a Georgian mid-terrace, this garden flat balances period character with contemporary living. At about 474 sq ft it delivers a well-lit living room, a double bedroom with built-in wardrobes and a private garden — rare for this location between Hoxton, Shoreditch and Islington. Excellent transport links and nearby green spaces make this an efficient city base or a buy-to-let opportunity.
Practical details are straightforward: chain free, mains gas boiler and radiators (installed 2006), double glazing, and a rear extension added in 1992. Annual outgoings include a small ground rent (£150) and a modest management fee; buildings insurance is noted as higher than typical and should be checked. The flat sits in a solid-brick period building with no cavity insulation (assumed), so heating costs and retrofit potential are factors to consider.
The lease term is listed inconsistently in the papers provided (99 years and 105 years reported). Prospective buyers should verify the exact remaining lease length and confirm service charge and insurance arrangements. This property suits a first-time buyer or investor seeking central Islington living with outdoor space, and someone prepared to manage future maintenance or minor upgrades to maximise value.
Nearby amenities include good schools, cafés, shops, and fast transport connections (Old Street, Liverpool Street within easy reach). For buyers who value character, location and a private garden, this flat offers immediate occupancy and clear scope for cosmetic enhancement to increase rental or resale appeal.
1 bedroom apartment for sale in Central Street, London, EC1V — £375,000 • 1 bed • 1 bath • 604 ft²
2 bedroom apartment for sale in New North Road, London, N1 — £800,000 • 2 bed • 1 bath • 677 ft²
1 bedroom character property for sale in New North Road, London, N1 — £325,000 • 1 bed • 1 bath • 354 ft²
1 bedroom flat for sale in Mildmay Grove South, London, N1 — £600,000 • 1 bed • 1 bath • 792 ft²
1 bedroom apartment for sale in Bunning Way, London, N7 — £395,000 • 1 bed • 1 bath • 398 ft²
1 bedroom apartment for sale in Elizabeth Avenue, Islington, London, N1 — £550,000 • 1 bed • 1 bath • 529 ft²


















































































