Refurbished farmhouse on 2.68 acres with stables and riding-out — ideal for equestrian families.
Refurbished detached farmhouse with modern kitchen and bathrooms
Set in c.2.68 acres with four paddocks and countryside views
Three stables with water and electric; workshop with animal pens
Direct riding-out via bridleways to Dunholme village
Planning permission granted for two‑storey rear extension
No gas connected; electric heating and underfloor heating present
Private sewage via on-site treatment plant; ongoing maintenance needed
Very slow broadband and den has restricted head height
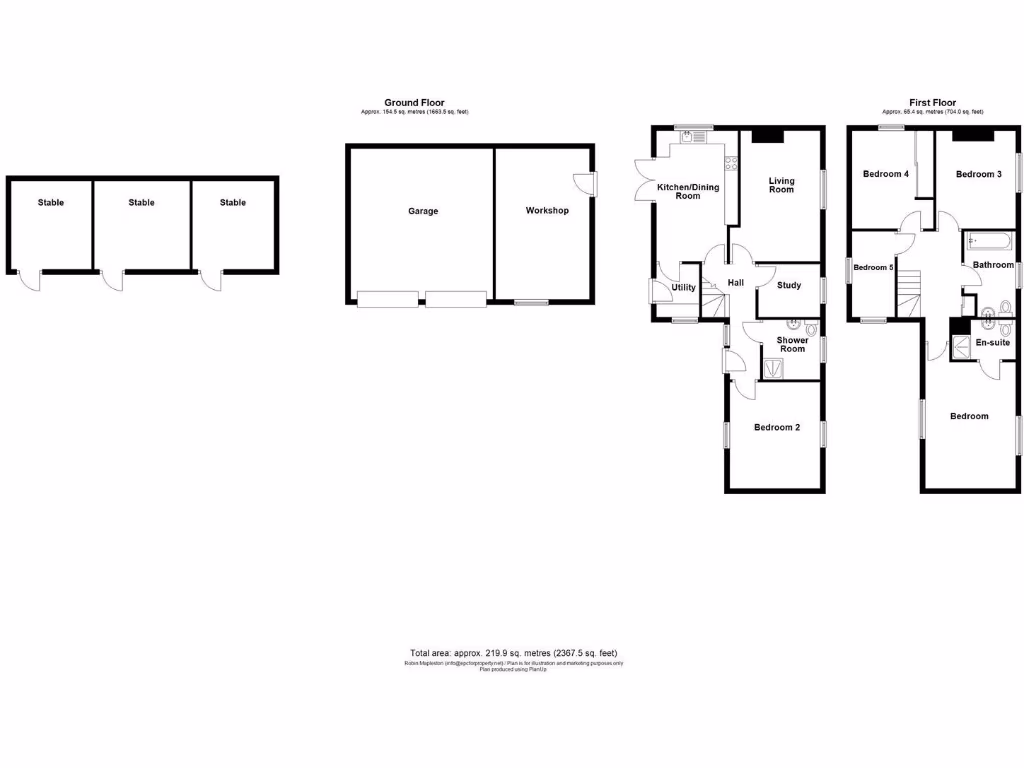
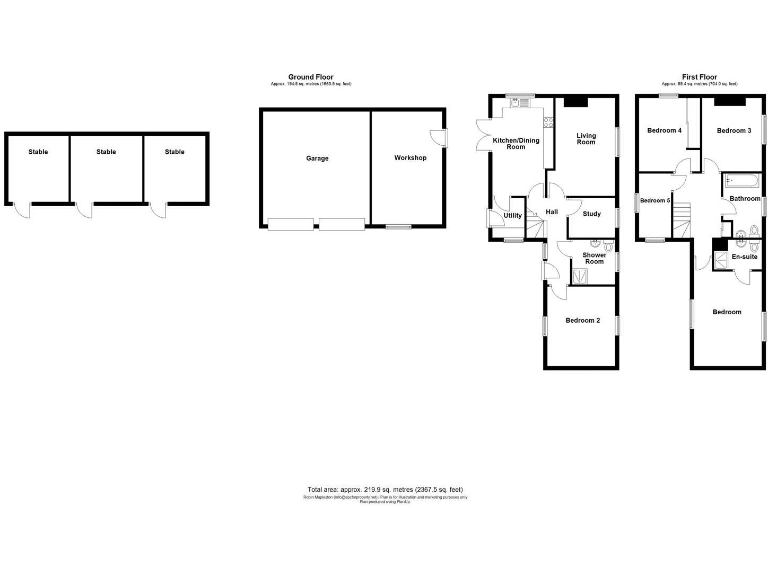
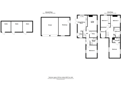
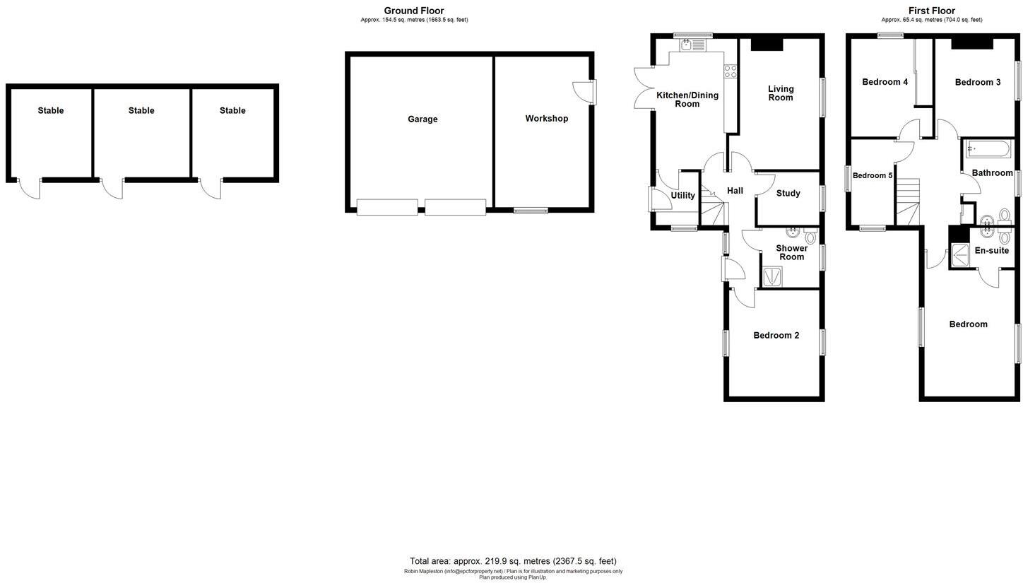
This detached, recently refurbished farmhouse sits in about 2.68 acres and is arranged to suit multigenerational living or an equestrian household. The house has been updated with a modern kitchen, refitted bathrooms, underfloor heating to the ground floor and useful ancillary rooms including a study/den and a double garage with adjoining workshop. Outside there are three stables with water and electric, paddocks and direct riding-out via bridleways into Dunholme village.
Practical positives include planning permission for a two‑storey rear extension (see online link), mains electric and water, and a private water treatment sewage system. The property offers countryside views front and rear and is roughly eight miles from Lincoln for broader shopping and services. The double garage, workshop and outbuildings give immediate storage and animal-care space.
Buyers should note a few material considerations: there is no gas connection, heating is electric with a boiler and radiators plus underfloor heating, and broadband speeds are reported as very slow. The den/occasional bedroom has restricted head height and the property relies on a private sewage system which may require ongoing maintenance. Overall this is a well-presented, large plot equestrian opportunity most suitable for buyers who prioritise land, stabling and rural access over urban utilities.
4 bedroom farm house for sale in Old Glebe Farmhouse (Barn One), Horncastle Lane, Lincoln, Lincolnshire, LN1 2SZ, LN1 — £620,000 • 4 bed • 3 bath • 2551 ft²
4 bedroom detached house for sale in North End Lane, South Kelsey, Lincolnshire, LN7 — £525,000 • 4 bed • 3 bath • 3610 ft²
4 bedroom detached bungalow for sale in Meadow Farm, Sturton Road, Hatton, LN8 — £675,000 • 4 bed • 3 bath • 3892 ft²
4 bedroom farm house for sale in 4.75 Acres - Snarford Road, Wickenby, Lincoln, LN3 — £685,000 • 4 bed • 2 bath • 2490 ft²
4 bedroom detached house for sale in Brandy Wharf Road, Waddingham, Gainsborough, DN21 — £530,000 • 4 bed • 1 bath • 1275 ft²
5 bedroom detached house for sale in Willingham Road, North Willingham, Market Rasen, LN8 3RH, LN8 — £550,000 • 5 bed • 2 bath • 530 ft²














































































































