No onward chain with garage, large garden and good storage throughout.
No onward chain — immediate move-in possible
Generous private rear garden with shed/workshop
Integral garage, driveway parking for two vehicles
Conservatory extends living space to the garden
Part-boarded loft offers extra storage via pull-down ladder
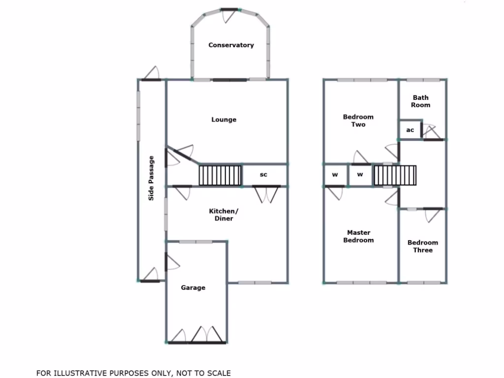
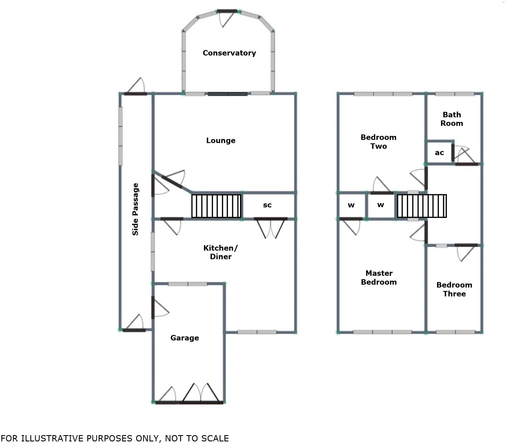
Single family bathroom only; three bedrooms upstairs
Average-sized 943 sq ft; 1980s build with modernisation potential
Medium flood risk; tenure currently unspecified
Set on a sought-after residential street in Burntwood, this deceptively spacious three-bedroom semi-detached house is offered with no onward chain. The layout suits downsizers who want ground-floor living space with easy-to-manage outdoor space — a living room opening into a conservatory plus an L-shaped kitchen-diner provide light, flexible space for day-to-day life.
Practical benefits include an integral garage with the gas boiler, a part-boarded loft for occasional storage, and off-street parking for at least two cars. The generous private rear garden and separate shed/workshop are major conveniences for hobbies, storage or relaxed outdoor entertaining.
Buyers should note the property is an average-sized, 1980s-built home of about 943 sq ft and may suit those seeking a comfortable, established house rather than a newly fitted finish. There is clear potential to modernise certain areas to personal taste. Tenure is not specified in the particulars and should be confirmed. There is a medium flooding risk for the location, and accommodation is served by a single family bathroom.
Practical local features include very low crime, fast broadband and excellent mobile signal, plus nearby bus links and local schools. Overall this home offers straightforward, low-hassle living with useful storage and outside space, balanced by a need to check tenure and the medium flood risk before purchase.
3 bedroom semi-detached house for sale in New Road, Burntwood, WS7 — £260,000 • 3 bed • 1 bath • 797 ft²
3 bedroom semi-detached house for sale in Chorley Road, Burntwood, Staffordshire, WS7 — £279,500 • 3 bed • 1 bath • 786 ft²
3 bedroom semi-detached house for sale in Avon Road Burntwood, WS7 — £240,000 • 3 bed • 1 bath • 776 ft²
4 bedroom semi-detached house for sale in Hillcrest Rise, Burntwood, WS7 — £325,000 • 4 bed • 2 bath • 1298 ft²
3 bedroom semi-detached house for sale in Alden Hurst, Burntwood, WS7 — £260,000 • 3 bed • 1 bath • 818 ft²
3 bedroom semi-detached house for sale in Queen Street, Burntwood, WS7 — £235,000 • 3 bed • 1 bath • 711 ft²


























































































































