Spacious semi with garage, garden and great potential for modernisation.
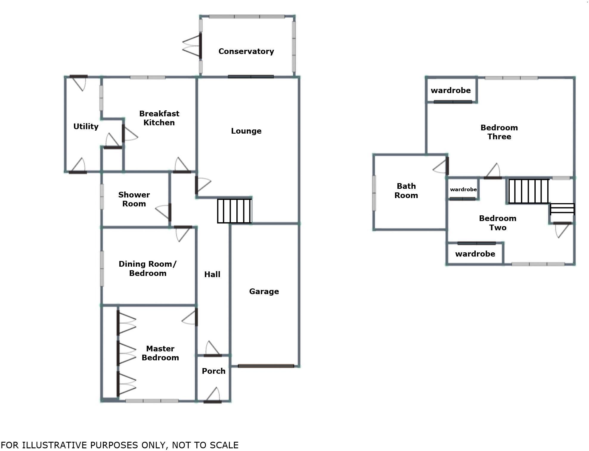
Four double bedrooms with flexible ground-floor bedroom or reception room
No onward chain — vacant possession potential
Private driveway and integral garage; off-street parking for two
Tiered rear garden with patio, lawn and mature planting
UPVC double glazing and Worcester Bosch combi boiler present
1980s kitchen and some dated finishes; modernisation likely required
Roof and external finishes appear to need inspection and minor updating
Good scope to extend/reconfigure subject to planning permission
Set on the outskirts of Burntwood bordering Hammerwich, this four-bedroom semi-detached home offers flexible accommodation across two levels — ideal for growing families seeking space and convenience. The layout includes a large rear lounge, conservatory, ground-floor bedroom/dining room, two generous first-floor bedrooms and a sizeable family bathroom. UPVC double glazing and a Worcester Bosch combi boiler provide practical, low-maintenance basics.
Outdoor space includes a private driveway, integral garage and a tiered rear garden with patio and lawn areas, sheltered by mature shrubs. The property benefits from a pleasant open-field aspect to the rear and lies close to local schools, shops and green spaces including Cannock Chase for weekend walks.
While fundamentally sound and ready to occupy, the interior shows dated fittings in places — notably the 1980s-style kitchen — and the roof/external finishes would benefit from inspection and minor updating. There is clear scope to modernise and reconfigure (subject to planning) to add value, particularly by updating the kitchen, bathrooms or extending into the dormer/garage footprint.
Offered with no onward chain, this freehold house suits families who want room to grow and buyers looking for a property with practical improvements to personalise and increase equity.
2 bedroom semi-detached bungalow for sale in Park Road, Burntwood, WS7 — £265,000 • 2 bed • 1 bath • 1152 ft²
4 bedroom semi-detached house for sale in Burntwood Road, Hammerwich, WS7 — £500,000 • 4 bed • 2 bath • 1206 ft²
4 bedroom detached house for sale in Hanney Hay Road, Burntwood, WS7 — £475,000 • 4 bed • 2 bath • 1151 ft²
3 bedroom semi-detached house for sale in Avon Road Burntwood, WS7 — £240,000 • 3 bed • 1 bath • 776 ft²
4 bedroom detached house for sale in Bleak House Drive, Burntwood, WS7 — £450,000 • 4 bed • 2 bath • 1249 ft²
3 bedroom semi-detached house for sale in Chase Road, Burntwood, WS7 — £259,500 • 3 bed • 2 bath • 896 ft²






























































































