Move‑in ready three-bed semi with new boiler and kitchen, no onward chain..
No onward chain; vacant possession available
New kitchen, bathroom, full rewire and new gas boiler
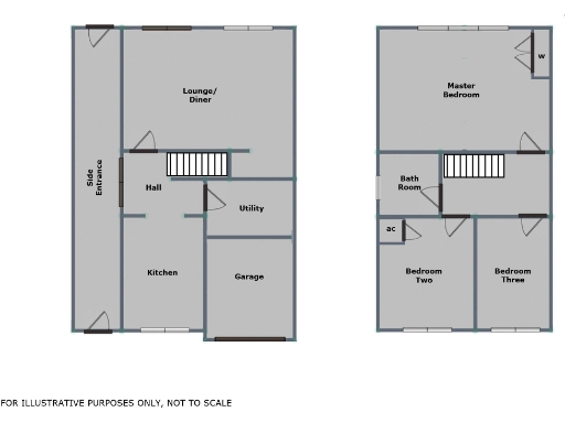
Three bedrooms; compact overall footprint (~711 sq ft)
Integral garage partly converted to utility (reduced garage space)
Two-tier rear garden; scope for low-cost landscaping
Postcode area classed as deprived; local services aimed at working renters
Tenure not confirmed in supplied information
Double glazing and new flooring throughout
This recently renovated three-bedroom semi-detached house on Queen Street is presented in move‑in condition, with a new kitchen, bathroom, full electrical rewire and a new gas boiler. The layout offers a rear lounge-diner with patio doors, an added utility room (converted from the garage) and driveway parking with an integral single garage.
The property suits first-time buyers or young families seeking a low‑maintenance starter home. Rooms are carpeted or newly floored throughout and double glazing is in place; the two-tiered rear garden provides practical outdoor space with scope for simple landscaping.
Buyers should note the overall plot and internal footprint are modest (approx. 711 sq ft), and the property sits in a deprived area with local services geared to working renters. Tenure is not confirmed in the details provided. The garage conversion into a utility reduces secure internal garage storage.
Practical positives include no onward chain and vacant possession, recent mechanical and electrical upgrades, good local schools and commuter access to the wider motorway network. If you require a larger garden, more internal space, or certainty on tenure, factor those points into your decision.
3 bedroom semi-detached house for sale in Chase Road, Burntwood, WS7 — £259,500 • 3 bed • 2 bath • 896 ft²
3 bedroom semi-detached house for sale in Queen Street, Burntwood, WS7 — £240,000 • 3 bed • 1 bath
3 bedroom semi-detached house for sale in Avon Road Burntwood, WS7 — £240,000 • 3 bed • 1 bath • 776 ft²
3 bedroom semi-detached house for sale in Avon Road, Burntwood, WS7 — £240,000 • 3 bed • 1 bath • 762 ft²
4 bedroom semi-detached house for sale in Larkspur Avenue, Burntwood, WS7 — £325,000 • 4 bed • 2 bath • 1368 ft²
3 bedroom semi-detached house for sale in Chorley Road, Burntwood, Staffordshire, WS7 — £279,500 • 3 bed • 1 bath • 786 ft²






















































































