Large family plot with double garage and planning permission for extra bedroom.
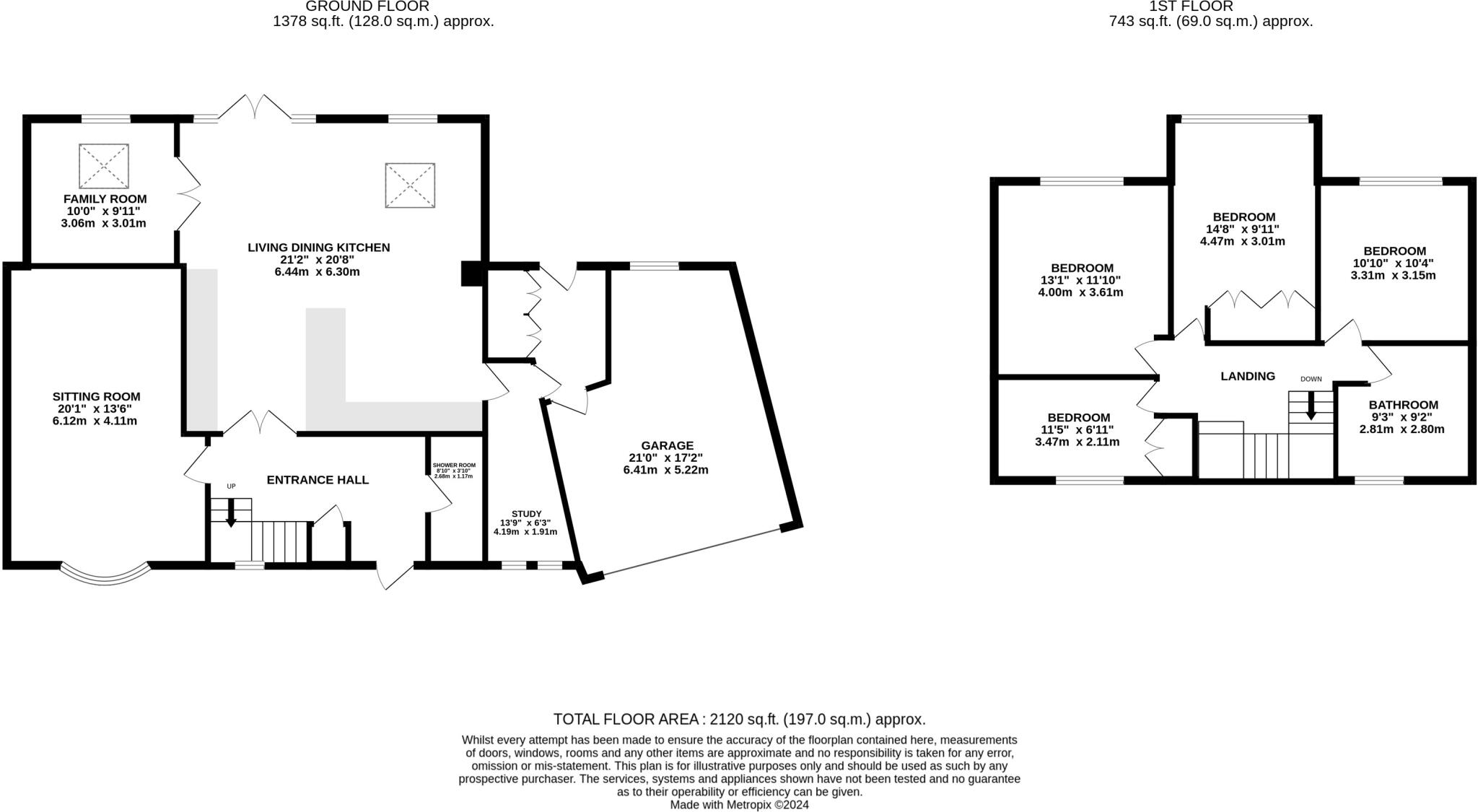
Extended open-plan living dining kitchen with patio doors
A substantial detached family home in the heart of Collingham, arranged over two floors and set on a large, private plot. The extended open-plan living dining kitchen is the house’s social hub, with patio doors onto a wide deck and lawn — ideal for family gatherings and everyday living. Two reception rooms, a study/home gym and a useful utility room give flexible space for work, play and storage.
Four good-sized bedrooms and a stylish family bathroom occupy the first floor; planning permission has already been granted to add an additional bedroom and en-suite, offering direct scope to increase accommodation and resale value. Practical benefits include an attached double garage, gravel driveway parking and recent double glazing.
Buyers should note the EPC currently rates D (66) with scope for improvement, cavity walls are likely uninsulated (as-built), and broadband speeds are slow — factors to consider if energy efficiency or home working are priorities. The property sits in a low-crime, very affluent area with excellent mobile signal, good local schools and straightforward road links for commuters.
Overall this is a roomy, characterful period-style home in a sought-after village setting, suited to growing families who value indoor/outdoor living and who may wish to complete modest energy upgrades or cosmetic updates to maximise potential.
4 bedroom detached house for sale in Hollybush Green, Collingham, LS22 — £879,000 • 4 bed • 2 bath • 2256 ft²
4 bedroom detached house for sale in Wharfe Bank, Collingham, LS22 — £785,000 • 4 bed • 2 bath • 1938 ft²
4 bedroom detached house for sale in Bishopdale Drive, Collingham, LS22 — £675,000 • 4 bed • 2 bath • 1689 ft²
5 bedroom semi-detached house for sale in The Avenue, Collingham, LS22 — £675,000 • 5 bed • 4 bath • 2000 ft²
4 bedroom detached house for sale in Kingfisher Reach,Collingham, Wetherby, West Yorkshire, LS22 — £550,000 • 4 bed • 2 bath • 1002 ft²
4 bedroom detached house for sale in Harewood Road, Collingham, Wetherby, West Yorkshire, LS22 — £580,000 • 4 bed • 2 bath • 1561 ft²


























































































