**Standout Features:**
- Rare building plot with conditional planning consent for a detached dwelling (Ref: PA21/12506).
- Superb rural location near North Cornish coast and Porthtowan beach.
- Gently sloping, south-facing garden plot with gorgeous views.
- Ample off-road parking space.
- Chain-free ownership.
**Summary:**
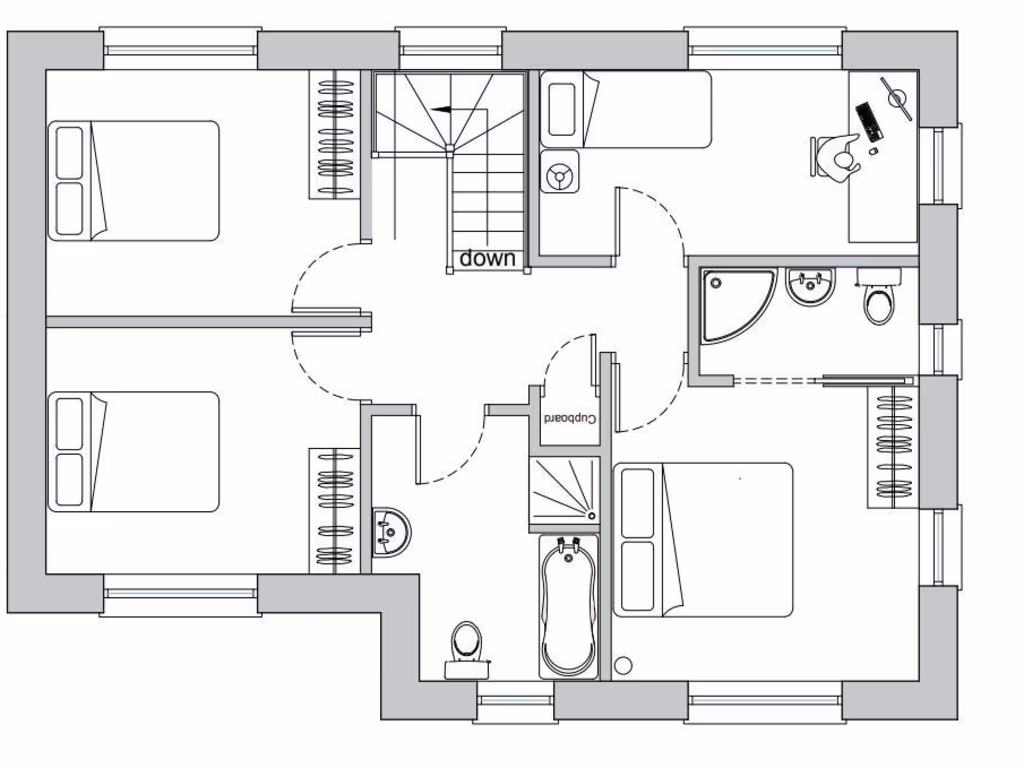
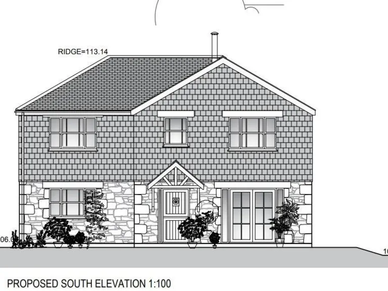
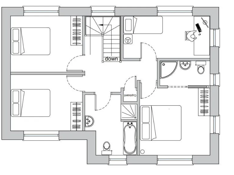
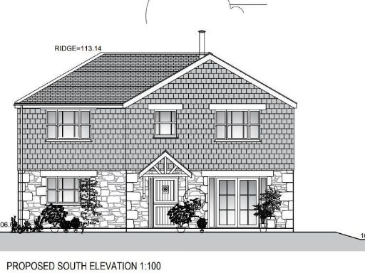
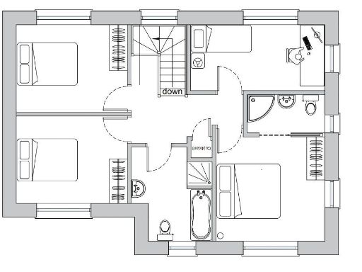
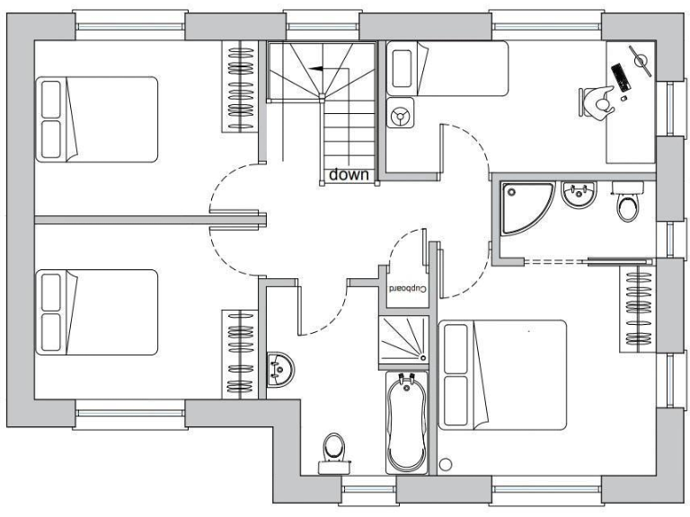
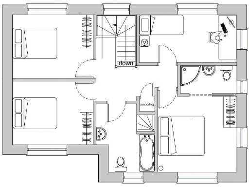
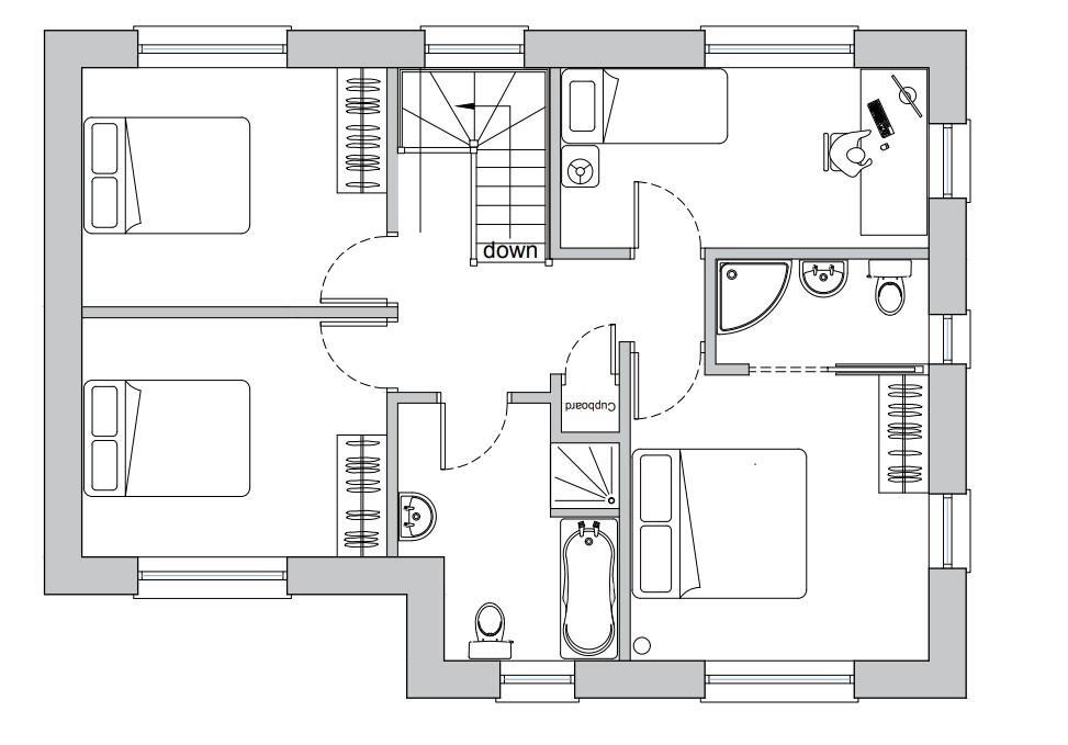
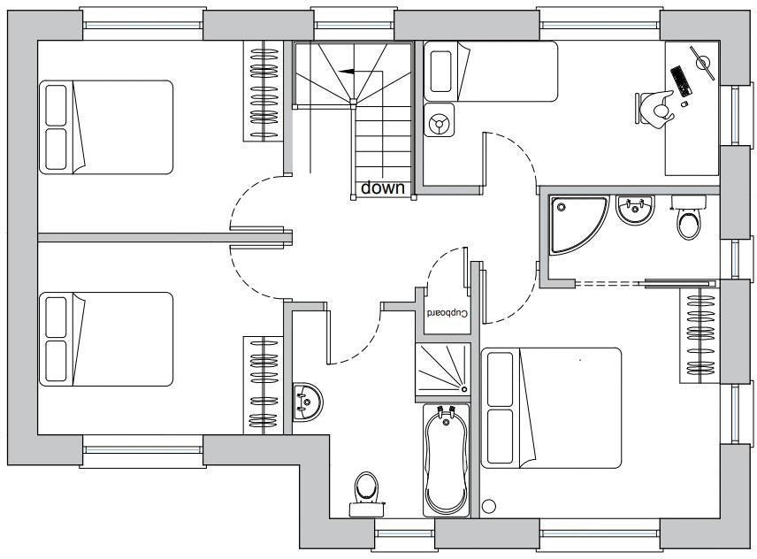
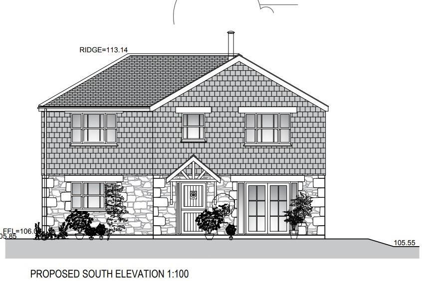
Seize this exceptional opportunity to create your dream home in the idyllic hamlet of Menagissey, just two miles from the stunning Porthtowan beach. This rare building plot comes with conditional planning consent, allowing for the construction of a four-bedroom detached dwelling complete with off-road parking and a beautiful garden. The location offers tranquility, scenic rural views, and is nestled within a supportive community.
Imagine designing a modern home in a south-facing position, where you can enjoy peaceful evenings surrounded by nature. While the plot does not currently have connected services, they are readily available in nearby properties, providing flexibility for your self-build project. This is an inviting prospect for families looking to settle in a charming rural setting or for investors seeking a lucrative opportunity.
Don't miss your chance to secure this coveted plot in a highly desirable area—viewing is strictly by appointment only, and opportunities like this don't last long!
Plot for sale in Greenbottom, Nr. Truro, TR4 — £250,000 • 1 bed • 1 bath • 3400 ft²
4 bedroom detached house for sale in Station Road, Perranporth, TR6 — £250,000 • 4 bed • 1 bath
Plot for sale in Whitehall, Scorrier, TR16 — £250,000 • 1 bed • 1 bath
Plot for sale in BUILDING PLOT, Perranwell Station, TR3 — £250,000 • 3 bed • 2 bath
Plot for sale in Trevarth, Near Lanner, TR16 — £200,000 • 1 bed • 1 bath • 1123 ft²
Plot for sale in Trevellance Lane, Perranporth, TR6 — £150,000 • 1 bed • 1 bath










































































