Spacious character apartment with parking close to Liverpool city amenities.
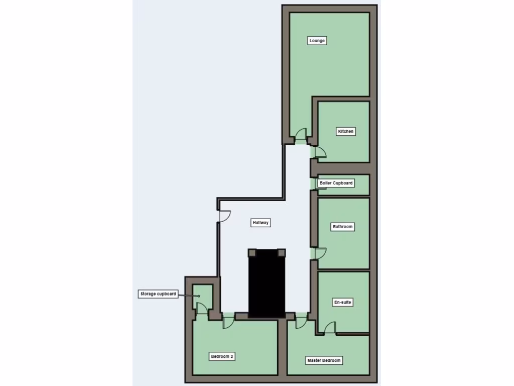
- Large 1,206 sq ft apartment with lofty arched ceilings and exposed brickwork
- Two double bedrooms, master with en-suite plus separate main bathroom
- Allocated gated parking and manned gatehouse for added security
- Contemporary fitted kitchen but scope for cosmetic updating throughout
- Leasehold: 89 years remaining; service charge approx £2,634pa; ground rent £50pa
- Heating and main fuel electric only (storage heaters) — higher running costs likely
- Riverside location with high flood risk; insurance may be affected
- Local area shows high crime and significant deprivation
Set within a converted riverside warehouse, this expansive two-bedroom apartment offers generous rooms, high arched ceilings and abundant character across 1,206 sq ft. The layout includes a large lounge/diner with Juliet balcony, a contemporary fitted kitchen, a master with en-suite and a further bathroom — practical for sharers or professional tenants. Allocated gated parking and a manned gatehouse add security and convenience for city living. EPC rating B.
This property suits an investor or buyer seeking a spacious, characterful city-base close to Liverpool city centre amenities, cultural attractions and strong transport links. The building’s industrial features — exposed brickwork and tall windows — give a distinctive urban feel while the interior presents ready-to-live-in accommodation with scope for cosmetic updating to increase rental or resale value.
Important practical points: the flat is leasehold with 89 years remaining, an annual service charge of around £2,634 and a small ground rent of £50. Heating and main fuel are electric only (storage heaters), and the area has a high local crime rate and high flood risk by the riverside. These factors should be considered for insurance, running costs and longer-term planning.
Overall, this is a roomy, well-located riverside apartment that will appeal to investors, professionals and buyers who value character and space over a suburban setting. The combination of allocated gated parking, town-centre proximity and striking warehouse architecture represents a clear urban opportunity, provided you factor in lease length, service charges and location-related risks.
2 bedroom apartment for sale in Waterloo Road, Liverpool, L3 — £240,000 • 2 bed • 2 bath • 958 ft²
2 bedroom apartment for sale in Waterloo Road, Liverpool, Merseyside, L3 0BH, L3 — £185,000 • 2 bed • 1 bath • 877 ft²
2 bedroom apartment for sale in Waterloo Road, Liverpool, L3 — £270,000 • 2 bed • 3 bath • 999 ft²
2 bedroom flat for sale in Waterloo Quay, Waterloo Road, Liverpool, Merseyside, L3 — £180,000 • 2 bed • 2 bath • 718 ft²
2 bedroom flat for sale in Waterloo Road, Liverpool, L3 — £215,000 • 2 bed • 2 bath • 835 ft²
2 bedroom apartment for sale in Waterloo Road, Liverpool, L3 — £186,000 • 2 bed • 2 bath • 948 ft²






























































































