Spacious split-level flat with parking and communal garden close to Sydenham Station.
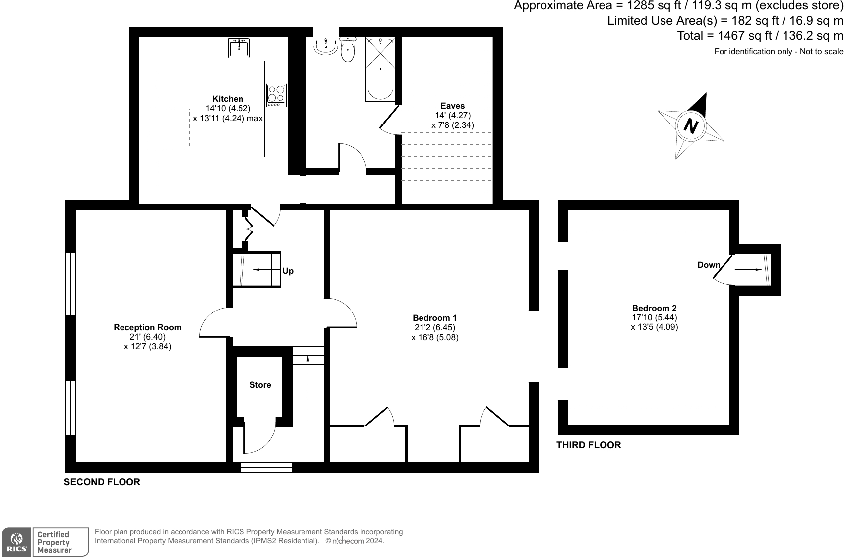
Chain free two-bedroom period conversion, unusually large 136sqm
Set across the top floors of an attractive period building, this unusually large 136sqm split-level flat offers spacious rooms and many original features. Two true double bedrooms — including an impressive 21'2" principal — sit alongside generous storage, loft access and high ceilings, giving the feeling of a house rather than a typical flat.
The flat is sold chain free and benefits from residents' off-street parking and use of a communal garden, located in a quiet cul-de-sac within easy walking distance of Sydenham Station, local shops and Crystal Palace Park. Fast broadband and excellent mobile signal make it well suited to professionals or a family wanting space close to central connections.
Practical points are clear and upfront: the property is a period, solid-brick conversion (c.1930–49) with double glazing and gas central heating via boiler and radiators. The long lease is in place, but the building's solid walls likely lack modern cavity insulation, so secondary or internal insulation improvements may be needed to reduce heating costs.
This is a big, characterful flat with scope to add contemporary value — whether updating bathrooms and décor, improving insulation, or reconfiguring living space. It will appeal to buyers seeking generous internal space in a well-connected, established neighbourhood rather than a turnkey, newly refurbished finish.
2 bedroom apartment for sale in Sydenham Hill, London, SE26 — £475,000 • 2 bed • 1 bath • 617 ft²
2 bedroom flat for sale in Crystal Palace Park Road, London, SE26 — £375,000 • 2 bed • 1 bath • 661 ft²
2 bedroom flat for sale in Westwood Hill, London, SE26 — £400,000 • 2 bed • 1 bath • 729 ft²
1 bedroom flat for sale in Longton Avenue, Sydenham, London, SE26 — £235,000 • 1 bed • 1 bath • 474 ft²
2 bedroom flat for sale in Kent House Road, Sydenham, London, SE26 — £300,000 • 2 bed • 1 bath • 667 ft²
2 bedroom apartment for sale in Border Crescent, London, SE26 — £600,000 • 2 bed • 2 bath • 1100 ft²






























































