Character-filled flat with garden and parking, ideal for first-time buyers or investors.
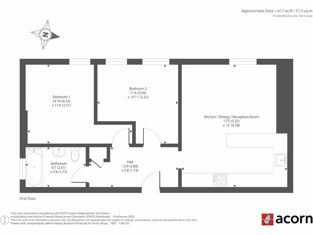
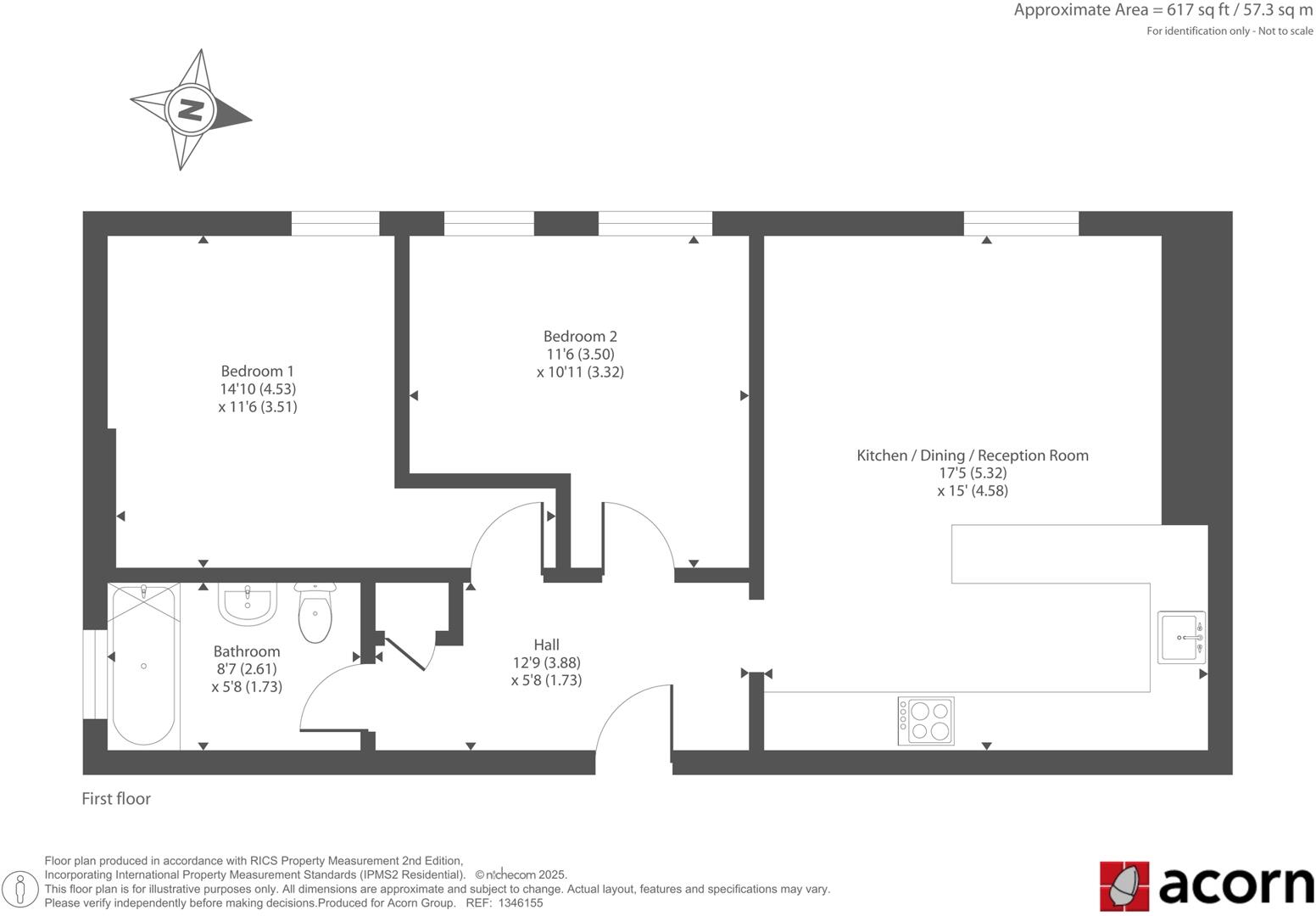
- Chain free two-bedroom conversion in Victorian building
- Approximately 617 sq ft with high ceilings and sash windows
- Double glazing fitted post-2002; mains gas boiler and radiators
- Communal garden and residents' off-street parking included
- Leasehold: service charge approx £2,400 pa and ground rent £100 pa
- Single bathroom only; suitable bedrooms but limited wet-room provision
- Timber-frame walls recorded with no insulation (assumed) — potential works
- Area shows deprivation pockets despite good local schools and transport
Light-filled two-bedroom conversion in a Victorian building, presented chain free and ready for new owners. High ceilings and large sash windows create an immediate sense of space, while original mouldings and wooden floors retain genuine period character. The practical central kitchen and generous principal bedroom suit everyday living and entertaining.
Residents enjoy a well-maintained communal garden and off-street residents’ parking, a rare convenience in this popular SE26 location. The flat measures approximately 617 sq ft and benefits from double glazing installed after 2002 and mains gas heating via a boiler and radiators.
Important practical points: the apartment is leasehold (service charge circa £2,400pa; ground rent £100pa) and has a single bathroom. The building’s timber-frame construction is recorded as having no built-in insulation (assumed), which may mean further insulation or energy-efficiency works are needed. The wider area shows pockets of deprivation despite good local schools and strong transport links.
This property will suit first-time buyers seeking character and space in a well-connected location, or investors looking for a distinctive period conversion. It offers immediate comfort with scope to improve energy efficiency and personalise finishes over time.
2 bedroom flat for sale in Kent House Road, Sydenham, London, SE26 — £300,000 • 2 bed • 1 bath • 667 ft²
2 bedroom flat for sale in Sydenham Hill, Sydenham Hill, London, SE26 — £550,000 • 2 bed • 1 bath • 816 ft²
2 bedroom flat for sale in Crystal Palace Park Road, London, SE26 — £375,000 • 2 bed • 1 bath • 661 ft²
3 bedroom flat for sale in Trewsbury Road, London, SE26 — £650,000 • 3 bed • 1 bath • 1288 ft²
1 bedroom flat for sale in Lawrie Park Road, Sydenham, London, SE26 — £300,000 • 1 bed • 1 bath • 491 ft²
2 bedroom apartment for sale in Border Crescent, London, SE26 — £600,000 • 2 bed • 2 bath • 1100 ft²






















































































