Bright one-bedroom near station and park, ideal for first-time buyers or investors.
Third-floor, loft-style one-bedroom with dormer windows and strong natural light
Long lease (124 years) — leasehold tenure
Pleasant communal garden and ample built-in storage
Compact internal size (~474 sq ft) suited to single occupant or couple
Kitchen has low ceiling, signs of wear — likely needs updating
Broadband speeds reported slow; mobile signal excellent
Building pre‑1900; timber-frame likely with limited insulation (assumed)
Council tax band affordable; good access to Sydenham Station and park
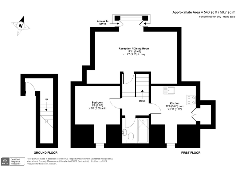
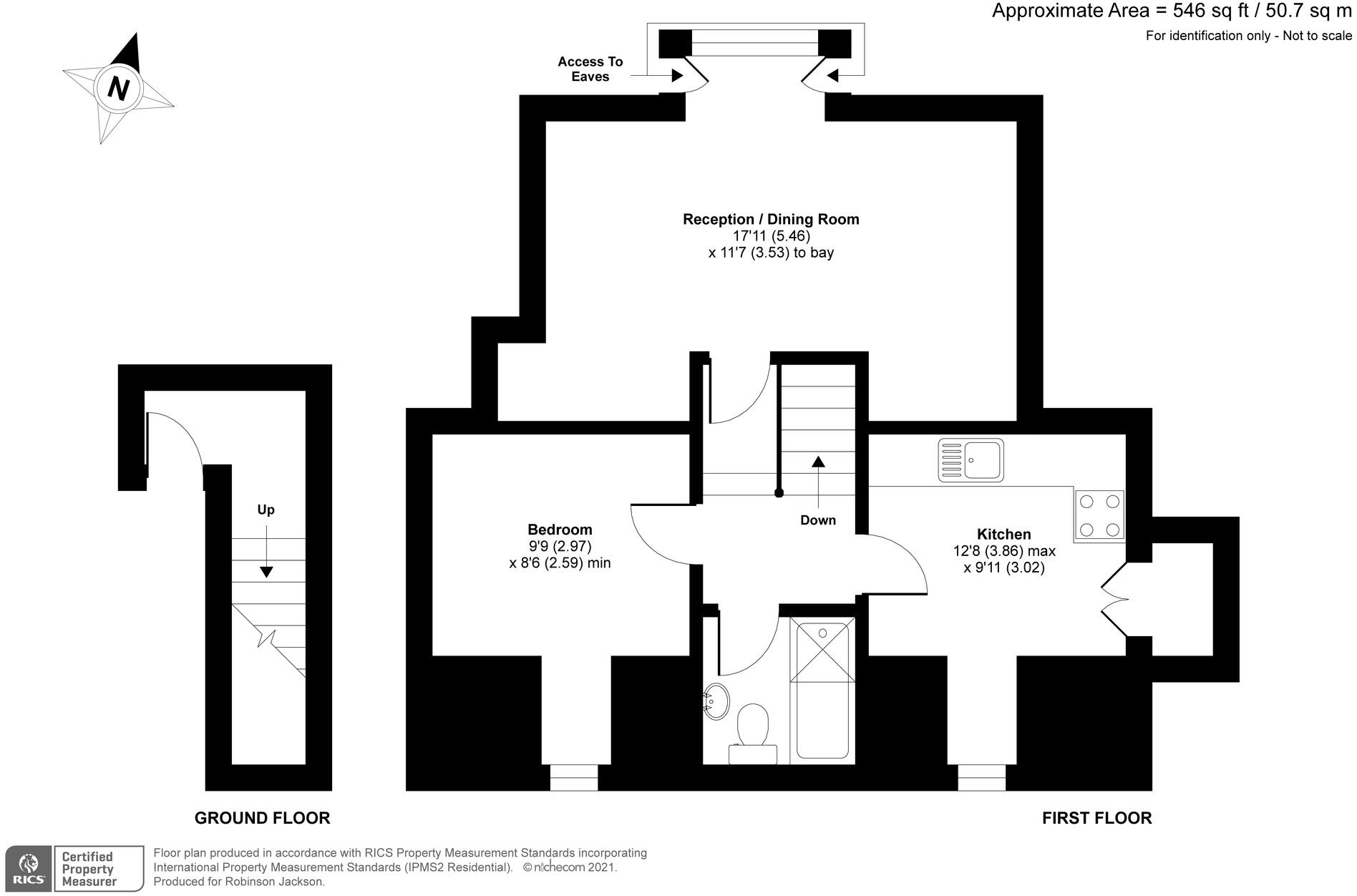
Light-filled top-floor period conversion apartment ideal for a first-time buyer or buy-to-let investor. Positioned on the third floor, the open-plan living/dining room sits beneath attractive pitched ceilings and large dormer windows that flood the space with natural light. Neutral decoration and ample built-in storage make the layout practical and ready to personalise.
The building is a late-Victorian/Edwardian conversion with a long lease (124 years remaining) and a pleasant communal garden for outdoor space. Sydenham Station, the local high street and Crystal Palace Park are within easy reach, making this a convenient base for commuting, leisure and amenities.
Practical points to note: the apartment is compact at around 474 sq ft and best suited to a single occupant or couple. The compact kitchen has low ceilings and shows signs of wear, so some updating would improve functionality and value. Broadband speeds are reported slow and the building fabric suggests limited insulation — upgrading heating and insulation could be worthwhile.
Overall this is a well-presented, characterful one-bedroom flat with strong location appeal and clear potential for modest investment through targeted improvements. Buyers should be comfortable with a top-floor layout and a compact footprint.
1 bedroom flat for sale in Peak Hill, Sydenham, London, SE26 — £280,000 • 1 bed • 1 bath • 517 ft²
1 bedroom flat for sale in Lawrie Park Road, Sydenham, London, SE26 — £300,000 • 1 bed • 1 bath • 491 ft²
1 bedroom flat for sale in Sydenham Road, London, SE26 — £275,000 • 1 bed • 1 bath • 572 ft²
1 bedroom apartment for sale in Crescent Wood Road, London, SE26 — £280,000 • 1 bed • 1 bath • 438 ft²
1 bedroom flat for sale in Westwood Hill, Sydenham, London, SE26 — £285,000 • 1 bed • 1 bath • 499 ft²
1 bedroom flat for sale in Wiverton Road, London, SE26 — £300,000 • 1 bed • 1 bath • 431 ft²






























































