Chain-free two-bedroom near park and stations, ideal for first-time buyers.
Two double bedrooms with high ceilings and original period features
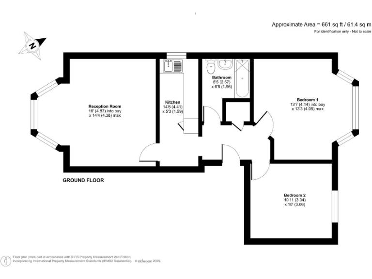
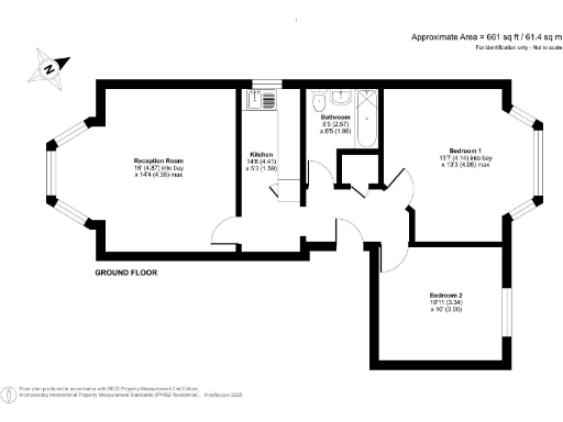
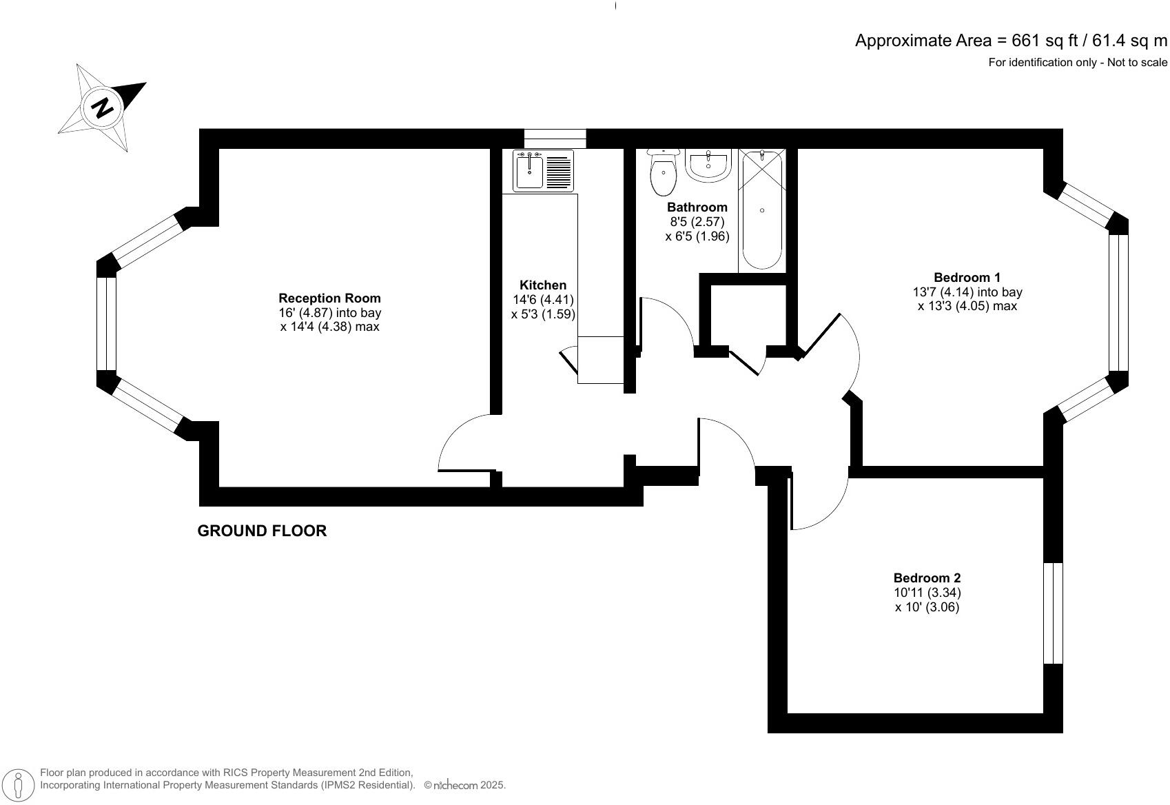
A bright ground-floor Victorian conversion with two double bedrooms and generous ceiling heights. Original sash windows, decorative cornicing and a bay window give the flat clear period character, while laminate flooring and double glazing provide low-maintenance, modern touches.
Set close to Sydenham Station and a short walk from Crystal Palace Park, the flat suits first-time buyers seeking transport links, green space and a lively local scene of independent shops, cafés and bars. The property comes chain free with a share of freehold, simplifying purchase and future planning.
Practical points to note: the building is solid-brick and likely lacks wall insulation (typical for its age), which may affect heating efficiency and could be an upgrade consideration. The accommodation is a comfortable average size (around 661 sq ft) with a single bathroom and ground-floor layout that may suit buyers preferring easy access but offers less privacy than upper-floor flats.
Overall this is a characterful, well-located home offering a straightforward purchase for someone after period features, good connections and nearby amenities, with scope for small energy-efficiency improvements over time.
2 bedroom flat for sale in Crystal Palace Park Road, London, SE26 — £560,000 • 2 bed • 1 bath • 798 ft²
2 bedroom flat for sale in Border Road, London, SE26 — £600,000 • 2 bed • 1 bath • 960 ft²
4 bedroom flat for sale in Crystal Palace Park Road, London, SE26 — £750,000 • 4 bed • 2 bath • 1559 ft²
2 bedroom flat for sale in Crystal Palace Park Road, Sydenham, London, SE26 — £470,000 • 2 bed • 1 bath • 722 ft²
2 bedroom flat for sale in Crystal Palace Park Road, London, SE26 — £425,000 • 2 bed • 1 bath • 792 ft²
2 bedroom apartment for sale in Crystal Palace Park Road, Sydenham, London, SE26 — £550,000 • 2 bed • 2 bath • 906 ft²


































































