**Standout Features:**
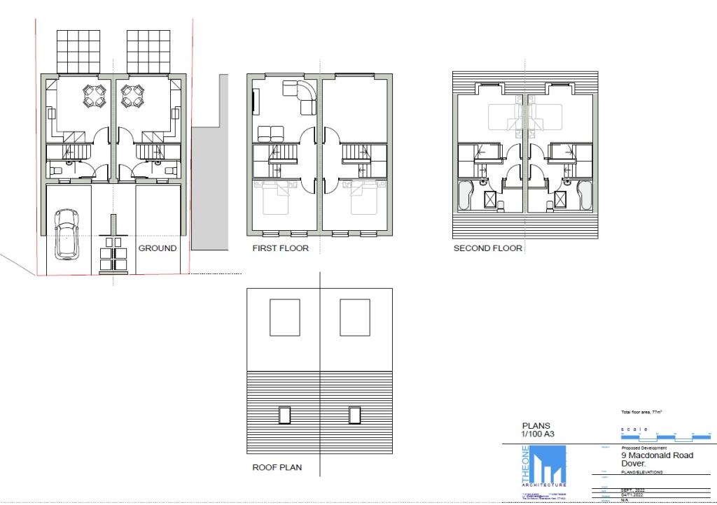
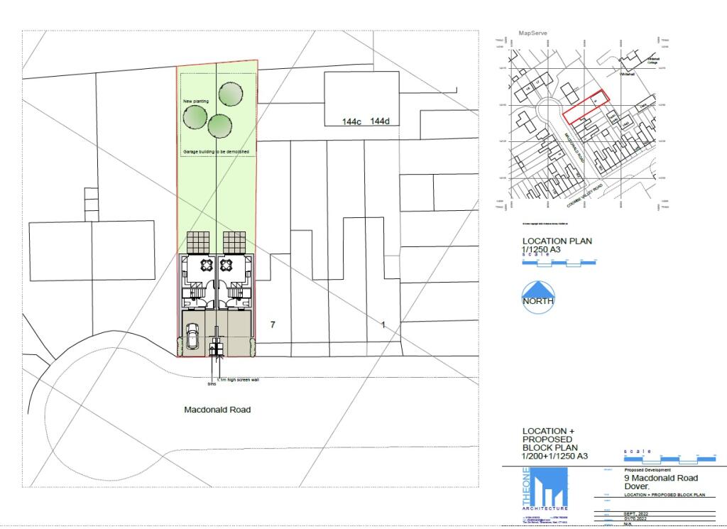
- Building plot with full planning permission for two semi-detached, 2-bedroom homes (Planning Ref: 22/01513).
- Located in a popular residential area with good transport links and a level walk to Dover Town Centre.
- Proximity to amenities, including schools, retail parks, and fast transport connections to Canterbury and London.
- Freehold title with a garden and garage space.
**Concise Property Summary:**
Explore this exceptional opportunity to develop a building plot on MacDonald Road, Dover, boasting full planning permission for two modern, semi-detached 2-bedroom residences. Positioned in a thriving residential area, you will enjoy the convenience of being within walking distance to Dover's amenities, including diverse shopping, schools, and recreational facilities. The location is particularly appealing for families, with access to several highly rated primary and secondary schools nearby.
This plot provides an excellent investment potential or a chance to create your dream home, with the A2 dual carriageway nearby ensuring quick transport to Canterbury, and Dover Priory railway station offering speedy connections to London. Note that while the local area faces some challenges, the robust transit links and a community-oriented environment make it a strategic choice for first-time buyers or investors looking to tap into the rental market. Don’t miss this chance to bring your vision to life; opportunities like this are rare and won't last long!
Plot for sale in North Military Road, Dover, CT17 — £700,000 • 1 bed • 1 bath
Land for sale in Abbey Road, Dover, CT17 — £160,000 • 1 bed • 1 bath • 1507 ft²
Land for sale in Cromwell Park Place, Folkestone, CT20 — £100,000 • 1 bed • 1 bath • 2195 ft²
Land for sale in Minnis Terrace, Dover, Kent, CT17 — £80,000 • 1 bed • 1 bath
Land for sale in Burrow Road, Folkestone, CT19 — £170,000 • 3 bed • 1 bath • 1839 ft²
Land for sale in Burrow Road, Folkestone, CT19 — £170,000 • 3 bed • 1 bath • 1839 ft²


















