**Key Features:**
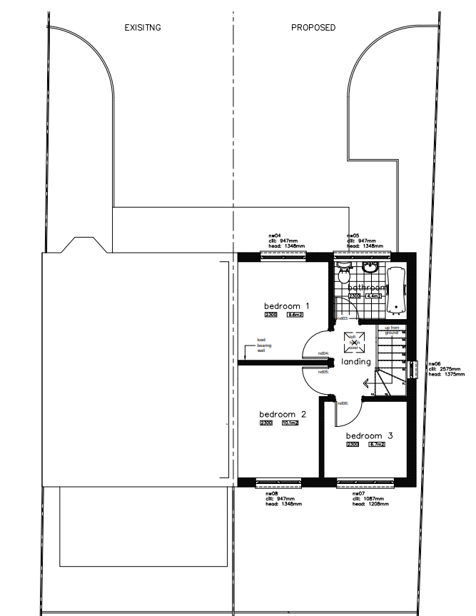
- 3-bedroom semi-detached house plot with planning permission for development
- Located in a well-established residential area of Folkestone
- Large plot size of approximately 2195 sq ft (203m² for the proposed dwelling)
- Currently chain-free
- Proximity to excellent local amenities and schools
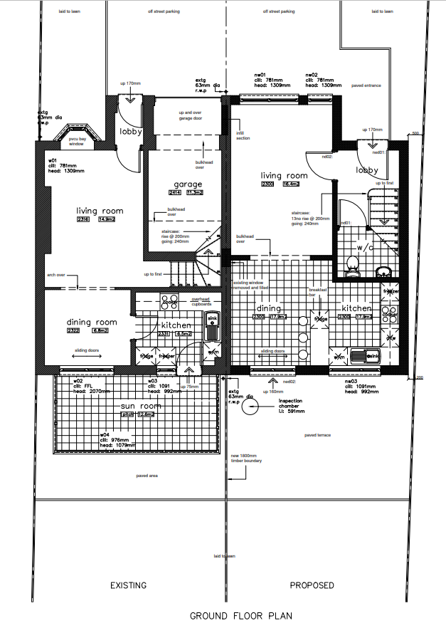
- Off-street parking available for multiple vehicles
- Potential for modern design with bay windows and porch
Nestled in the desirable Cromwell Park Place, this 2195 sq ft plot presents an exceptional opportunity for both developers and aspiring homeowners. The site boasts planning permission for a three-bedroom semi-detached home, designed with a modern brick facade that modernizes the existing structure.
Potential buyers will appreciate the generous garden areas and off-street parking provisions, ensuring a comfortable and convenient living environment. The neighborhood is rich with amenities, including supermarkets, schools, and parks, making it ideal for families or professionals.
Although the property requires a slight renovation to remove the disused timber shed, its clear potential shines through with ample space for expansion or landscaping. Don’t miss the chance to secure this prime location and fulfill your vision of a perfect home or investment. Offers are invited above £100,000, and with no chain, a swift transaction is possible.
Land for sale in Burrow Road, Folkestone, CT19 — £170,000 • 3 bed • 1 bath • 1839 ft²
Land for sale in Burrow Road, Folkestone, CT19 — £170,000 • 3 bed • 1 bath • 1839 ft²
Land for sale in Coolinge Lane, Folkestone, Kent, CT20 — £325,000 • 1 bed • 1 bath • 653 ft²
Plot for sale in Densole, Folkestone, CT18 — £200,000 • 1 bed • 1 bath
Land for sale in Edward Road, Folkestone, CT19 — £160,000 • 1 bed • 1 bath
Detached house for sale in Foord Road, Folkestone, Kent, CT19 — £95,000 • 1 bed • 1 bath


















