**Standout Features:**
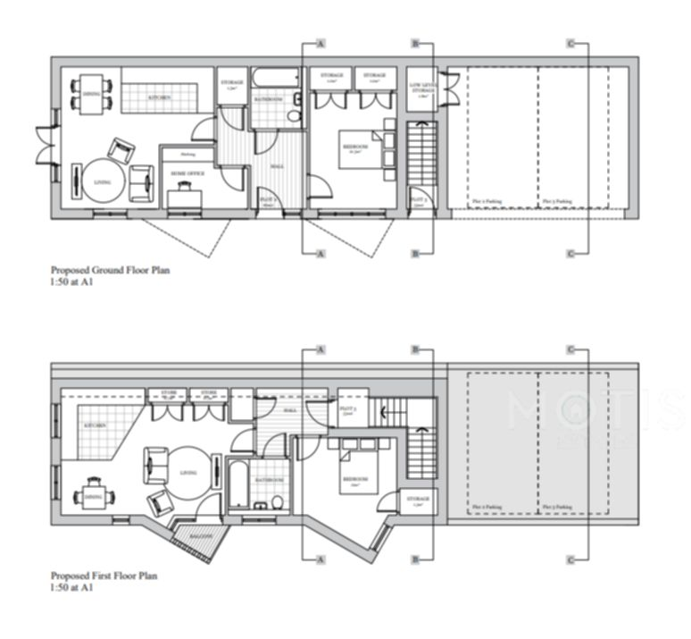
- **Planning Permission**: Approved for 2 one-bedroom apartments and 1 one-bedroom house.
- **Location**: Prominent position on Burrow Road, within walking distance to nearby amenities and the harbor.
- **Size**: Generous plot of approximately 0.07 hectares (1,839 sq ft).
- **Accessibility**: Close proximity to public transport, including high-speed rail links to London.
- **Community Potential**: Family-friendly with several local schools rated "Good" or better.
**Summary:**
Unlock the potential of this spacious residential plot in the heart of Folkestone, available for offers in excess of £175,000. With approved planning permission for two one-bedroom apartments and a charming one-bedroom house, this site invites investors and developers alike to create contemporary living spaces that blend harmoniously into the local environment. The modern design respects the surrounding character while providing gated access and private gardens for future residents.
Nestled within a thriving community, the property boasts easy access to a variety of local amenities, restaurants, and schools, making it ideal for family living or rental opportunities. Furthermore, the site is conveniently linked to major transport routes and boasts excellent broadband connectivity, appealing to today’s mobile lifestyle.
While the site currently presents some overgrowth and the existing empty garages may require consideration, the burgeoning area around Folkestone’s harbor suggests significant future investment potential. Don’t miss this chance to capitalize on a valuable piece of land in a sought-after coastal town – the opportunity won’t last long!
Land for sale in Burrow Road, Folkestone, CT19 — £170,000 • 3 bed • 1 bath • 1839 ft²
Land for sale in Cromwell Park Place, Folkestone, CT20 — £100,000 • 1 bed • 1 bath • 2195 ft²
Land for sale in Land at Ship Street, Ship Street, Folkestone, CT19 5AB, CT19 — POA • 1 bed • 1 bath
Detached house for sale in Foord Road, Folkestone, Kent, CT19 — £95,000 • 1 bed • 1 bath
Land for sale in Moat Farm Road, Folkestone, CT19 — £1,850,000 • 1 bed • 1 bath
Plot for sale in Densole, Folkestone, CT18 — £200,000 • 1 bed • 1 bath






























