**Standout Features:**
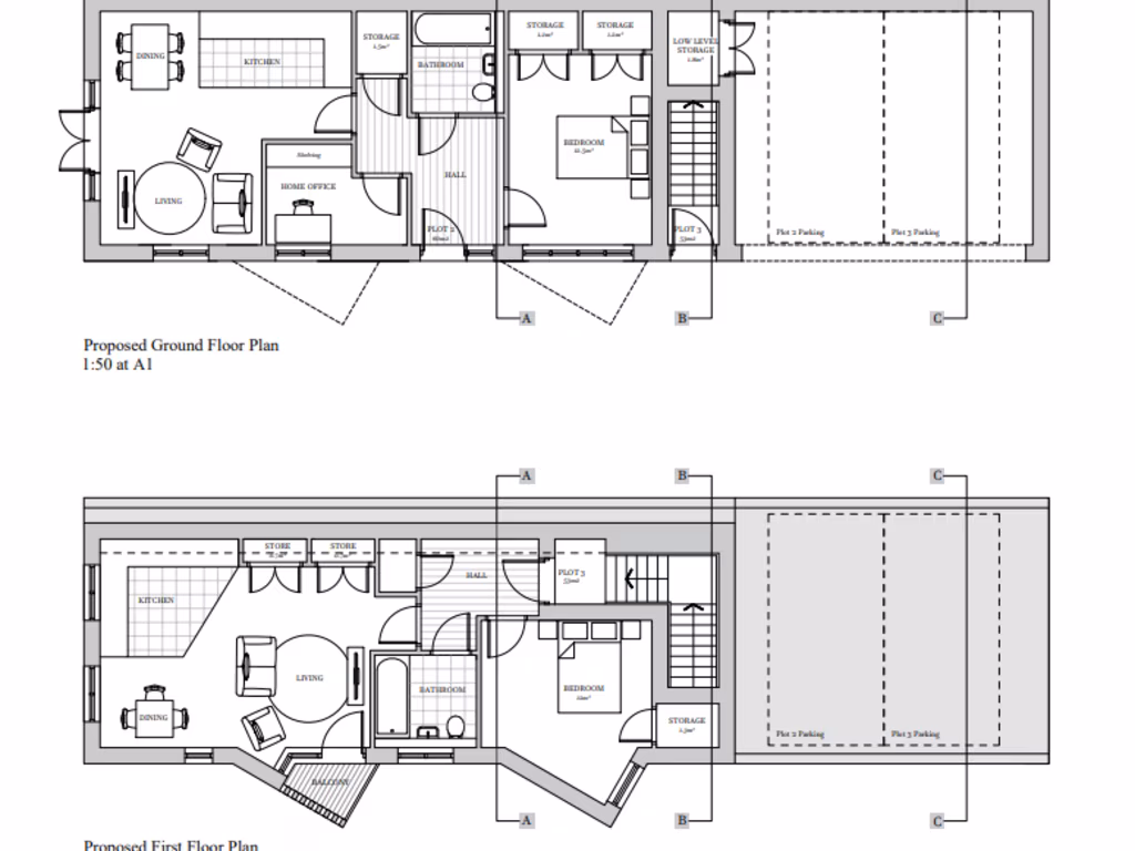
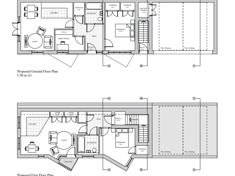
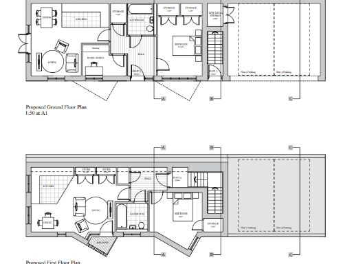
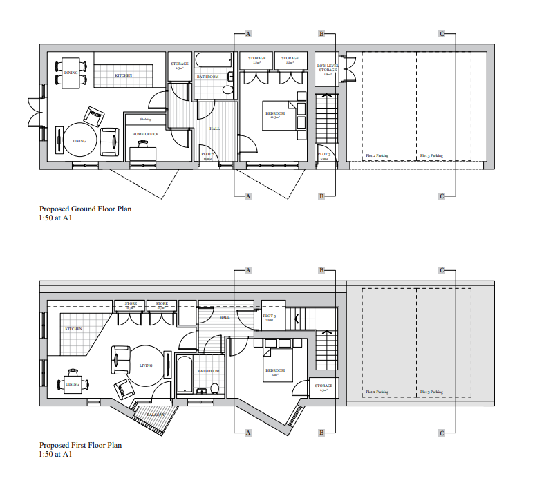
- Residential land in Folkestone with planning permission for 2 one-bedroom apartments and 1 one-bedroom house.
- Total area of approximately 0.07 hectares (1,839 sq ft).
- Prime location near Canterbury Road, with ongoing development of the harbour area nearby.
- Proposed gated community for future residents with dedicated parking and gardens for each unit.
- Strong potential with a Gross Development Value (GDV) estimated between £580,000 and £600,000.
**Property Summary:**
This is a rare opportunity to acquire a substantial residential plot in the vibrant town of Folkestone, ideally positioned for development with approved planning permission. The site is set to accommodate a thoughtfully designed 1-bedroom house and two 1-bedroom flats, perfect for investors looking to capitalize on the growing demand in this coastal area.
The current layout allows for modern living with a secure, gated entrance and dedicated gardens and parking spaces, catering to professional couples or small families seeking comfort and community. The surrounding area enjoys average crime rates and access to good primary and secondary schools, making it a family-friendly option while remaining appealing to renters.
Potential downsides include that the northern part of the site, adjacent to a public footpath, may require maintenance due to overgrowth. However, the locality’s excellent transport links—including the high-speed rail service to London—ensure the site’s appeal remains strong. At offers in excess of £170,000, this land represents an enticing investment opportunity that savvy buyers will not want to miss. Don’t wait—explore the potential of this promising space today!
Land for sale in Burrow Road, Folkestone, CT19 — £170,000 • 3 bed • 1 bath • 1839 ft²
Land for sale in Cromwell Park Place, Folkestone, CT20 — £100,000 • 1 bed • 1 bath • 2195 ft²
Land for sale in Land at Ship Street, Ship Street, Folkestone, CT19 5AB, CT19 — POA • 1 bed • 1 bath
Land for sale in Edward Road, Folkestone, CT19 — £160,000 • 1 bed • 1 bath
Detached house for sale in Foord Road, Folkestone, Kent, CT19 — £95,000 • 1 bed • 1 bath
Land for sale in Coolinge Lane, Folkestone, Kent, CT20 — £325,000 • 1 bed • 1 bath • 653 ft²


























