Two 4‑bed homes planned with elevated countryside views, five miles from Exeter.
Class Q consent for two single‑storey four‑bedroom dwellings
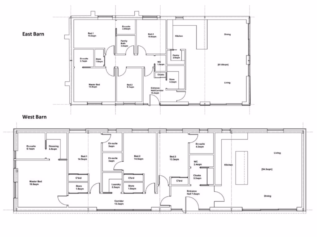
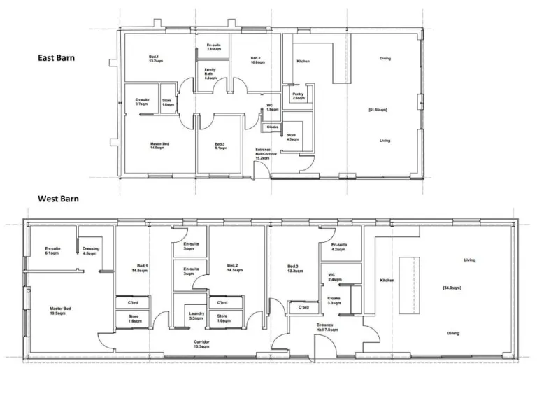
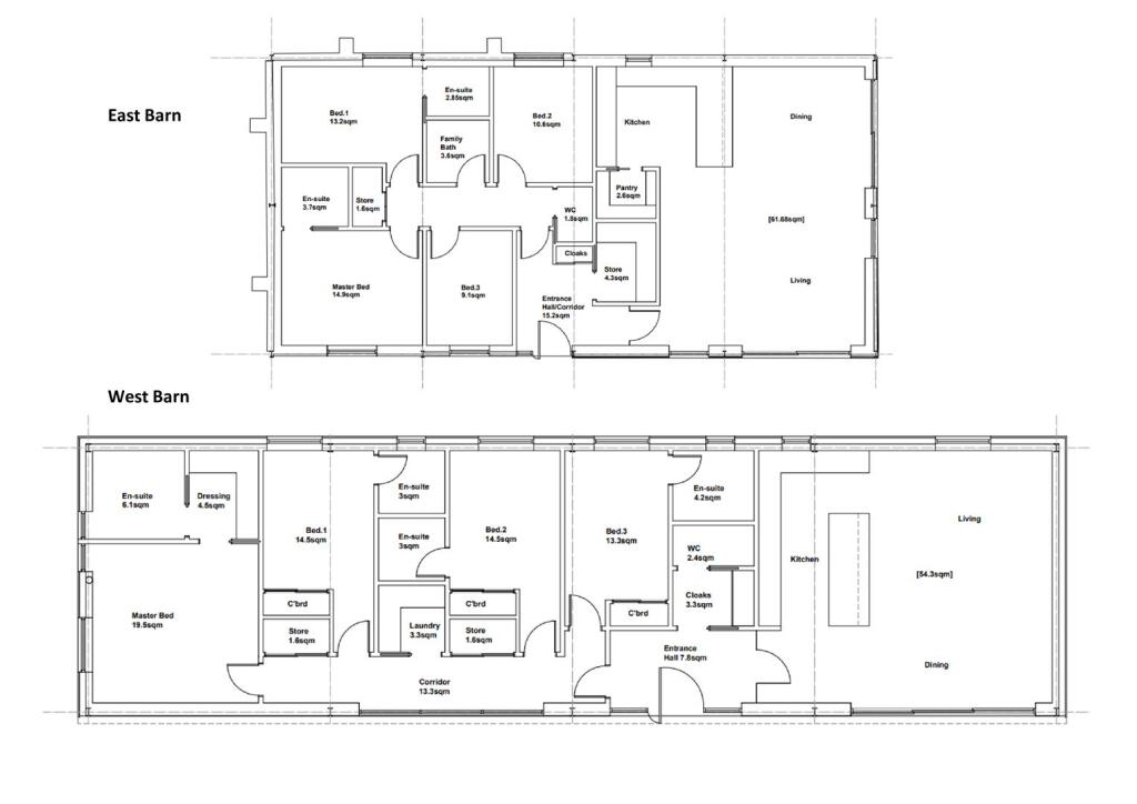
A rare development site about five miles west of Exeter with prior approval under Part 3 Class Q to create two single‑storey, four‑bedroom dwellings. The two barns together offer over 3,500 sqft of proposed internal living space and sit within approximately 0.44 acres of elevated land with broad countryside views. The freehold title and rural setting make this suitable for a developer or self‑builder seeking a secluded but accessible location.
The plots are already supported by formal approvals (East Barn ref 25/00612/NPA; West Barn ref 25/00613/NPA), which significantly de‑risks the change‑of‑use stage. Mains electricity and water are understood to be nearby, and the M5/A38 links and Exeter city services are about a 15–20 minute drive, giving this site a practical commuter reach while retaining rural privacy.
Important practical points are clear: the existing buildings are agricultural and largely derelict, with unmanaged vegetation and outbuildings needing extensive renovation or demolition. Purchasers must budget for a sewage treatment plant installation, potential condition compliance under the planning permissions, and Community Infrastructure Levy payments (unless claiming the self‑build exemption). Services and exact connection costs should be independently verified prior to commitment.
This is a project for buyers comfortable with rural redevelopment — an investor, developer or experienced self‑builder who values elevated views and development consent in a popular Devon village setting. The price reflects the planning consent and land value, but also the work and costs ahead to deliver two finished homes.
Commercial property for sale in Cowley, Exeter, EX5 — £300,000 • 1 bed • 1 bath • 2500 ft²
Barn conversion for sale in Cowley, Exeter, EX5 — £300,000 • 1 bed • 1 bath • 2500 ft²
10 bedroom terraced house for sale in Neopardy, Crediton, EX17 — £295,000 • 10 bed • 1 bath
Land for sale in Doddiscombsleigh, Exeter, EX6 — £275,000 • 5 bed • 2 bath • 9583 ft²
Land for sale in Neopardy, Crediton, EX17 — £295,000 • 1 bed • 1 bath • 4986 ft²
Land for sale in Venn Farm, Sowton, Exeter, EX5 2AE, EX5 — £1,150,000 • 1 bed • 1 bath • 4758 ft²










































































