Long lease, parking and great transport links near open parkland.
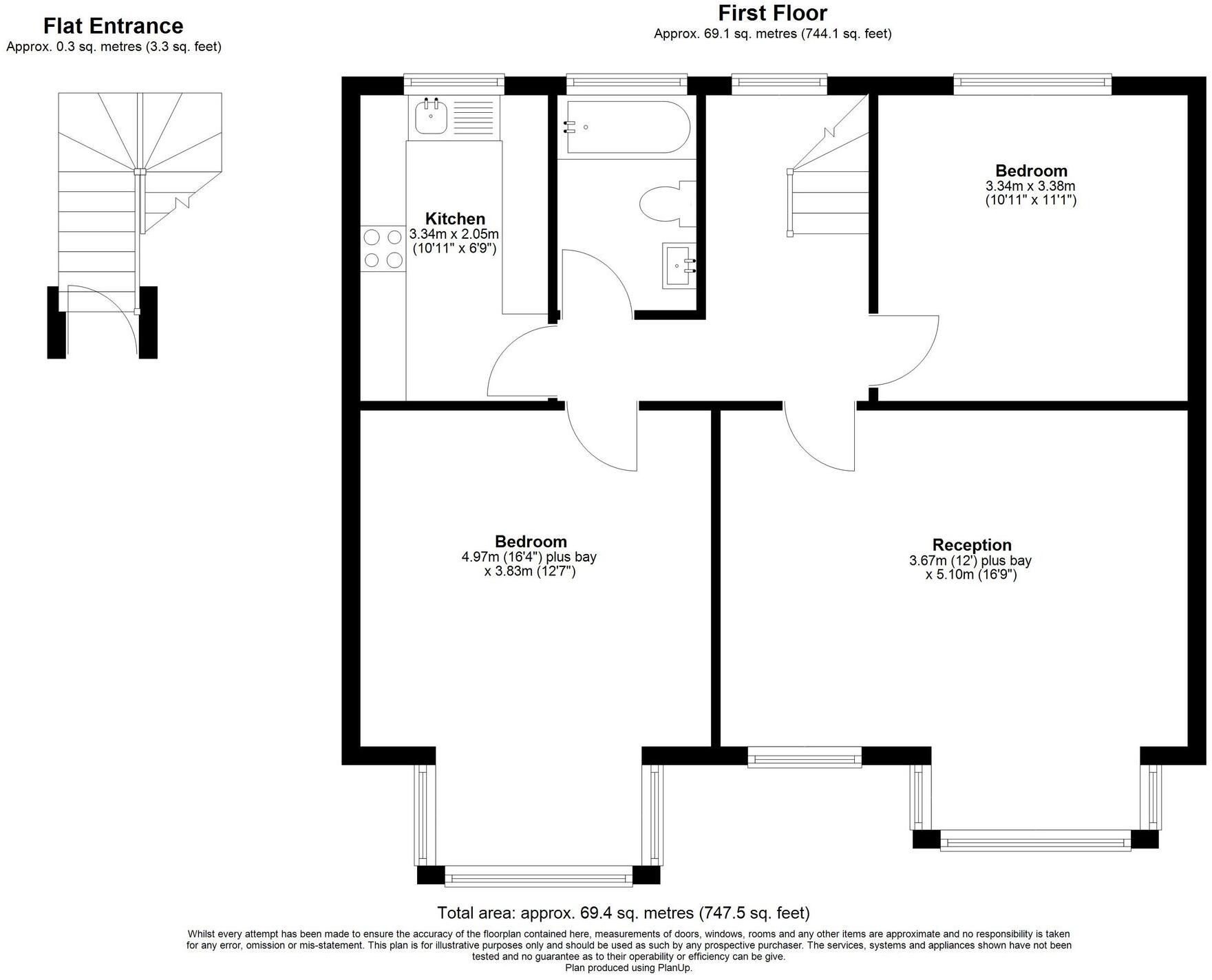
- Two large double bedrooms, good natural light
- Spacious bay-windowed reception with high ceilings
- 149-year lease remaining; share of freehold
- Off-street double driveway included in lease
- Close to Valentines Park, top-rated local schools
- Easy access to Ilford Elizabeth Line for commuters
- Solid brick walls likely uninsulated; may need upgrades
- Bathroom functional but not recently modernised
This well-presented first-floor two-bedroom flat sits in a sought-after North Ilford location close to Valentines Park and good schools. Set within a converted Victorian end-terrace, the home combines period character—high ceilings and a bay-windowed reception—with practical modern comforts such as double glazing, gas central heating and an EPC rating of C.
The flat benefits from a long lease (149 years remaining) and share of freehold, plus an off-street double driveway included in the lease. The spacious reception room and two large double bedrooms create flexible living space for first-time buyers, small families or buy-to-let investors. Transport links are strong, with easy access to Ilford Elizabeth Line services for quick commutes into central London.
Buyers should note some maintenance and improvement considerations: the property’s solid brick construction likely lacks wall insulation and may benefit from upgrading for better thermal performance. The bathroom is functional and serviceable but not recently modernised. Overall size is average for a two-bedroom flat, and the building dates from the 1930s–1940s, which brings character but may require ongoing upkeep.
With no onward chain and practical benefits such as parking and proximity to green space, this flat offers sensible immediate occupation or rental potential, while also presenting modest scope for energy efficiency improvements and cosmetic updating to add value.
2 bedroom flat for sale in Cavendish Gardens, Ilford, IG1 — £425,000 • 2 bed • 1 bath • 778 ft²
2 bedroom ground floor flat for sale in The Drive, Ilford, IG1 — £350,000 • 2 bed • 1 bath • 611 ft²
2 bedroom flat for sale in Redcliffe Gardens, Ilford, IG1 — £280,000 • 2 bed • 1 bath • 463 ft²
2 bedroom flat for sale in Bathurst Road, Ilford, IG1 — £300,000 • 2 bed • 1 bath • 701 ft²
2 bedroom flat for sale in Empress Avenue, Ilford, IG1 — £350,000 • 2 bed • 1 bath • 731 ft²
2 bedroom flat for sale in Valentines Road, Ilford, Essex, IG1 — £320,000 • 2 bed • 1 bath • 727 ft²






















































