NW2 7RP - 5 bed spacious 1930s family home in Vincent Gardens, NW2 7RP

View on Property Piper

5 bedroom semi-detached house for sale in Vincent Gardens, London, NW2

Summary - 18 Vincent Gardens NW2 7RP

5 bed 3 bath Semi-Detached

Large plot with studio potential and parking for several cars.
Chain free larger-than-average 1930s semi-detached family home
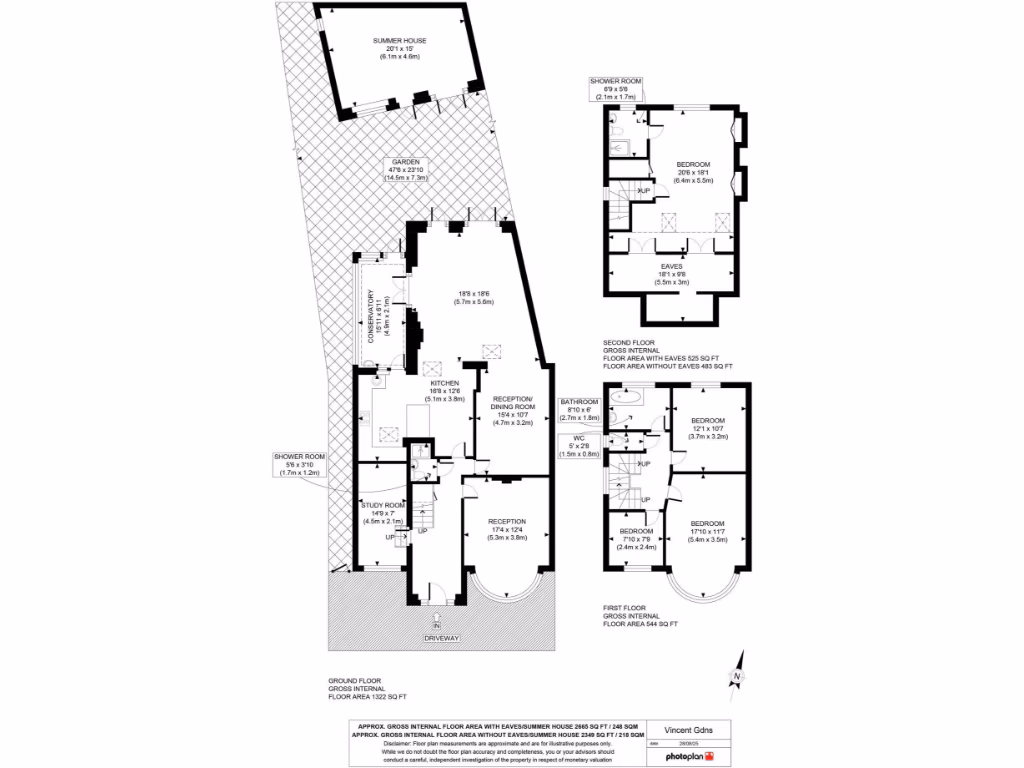
This substantial 1930s semi-detached house on Vincent Gardens offers genuine family space across three storeys, with a large principal bedroom created by a loft conversion and generous reception rooms on the ground floor. The west-facing conservatory and a southerly-aspect rear garden of about 48' deliver good natural light and outdoor space for children and entertaining, while off-street parking for several vehicles and a front driveway add rare convenience for London living.

Practical features include double glazing, gas central heating and an outbuilding already connected to services — presenting straightforward potential to create a self-contained studio or home office (subject to planning). The house is chain free and sits close to Gladstone Park, local schools and bus routes, with Neasden and Dollis Hill (Jubilee Line) stations within easy reach.

Buyers should note the property’s age and construction: original solid brick walls likely lack modern cavity insulation and some internal areas (notably a 1970s-style hallway) show dated finishes. Council tax is above average and the local area scores higher on deprivation indices; a viewing is recommended to assess condition and any refurbishment scope. Overall, this is a large family home with clear potential for updating and value enhancement through improvement or conversion of the garden outbuilding.

Property Details

Brochure Descriptions

Image Descriptions

Floorplan Description

Rooms

Textual Property Features

Target Audience

AI Tags

Detected Visual Features

EPC Details

Nearby Schools

Nearest Bars And Restaurants

,,,,}

Nearest General Shops

,,}

Nearest Grocery shops

,,}

Nearest Supermarkets

,,}

Nearest Religious buildings

,,}

Nearest Medical buildings

,,,}

Nearest Airports

,}

Nearest Leisure Facilities

,,,,}

Nearest Tourist attractions

,,}

Nearest Train stations

,,,,}

Nearest Bus stations and stops

,,,,}

Nearest Hotels

,,}

Tags

Local Market Stats

AirBnB Data

Similar Properties

Meta

High Res Images

Compatible Images

Low res Images

Thumbnails

Raw Images

High Res Floorplan Images

Compatible Floorplan Images

Low res Floorplan Images

FloorplanImages Thumbnail

Raw Floorplan Images