PL19 8RR - 7 bedroom detached house for sale in Lamerton, Tavistock, D…

View on Property Piper

7 bedroom detached house for sale in Lamerton, Tavistock, Devon, PL19., PL19

Summary - LOWER HILL FARM LAMERTON TAVISTOCK PL19 8RR

7 bed 6 bath Detached

**Standout Features:**
- Spacious 7-bedroom, 6-bathroom detached farmhouse with period character
- Converted barn (The Old Shippon) offers an additional 3 bedrooms and 2 shower suites
- Extensive 12.36 acres including outbuildings ideal for equestrian use and future renovation
- Newly renovated with modern comforts while retaining historical charm
- Beautiful gardens and outdoor space perfect for family gatherings and relaxation
- Planning permission for further barn conversion with excellent equestrian facilities

**Summary:**
Discover the unique charm of Lower Hill Farm, a beautifully renovated detached farmhouse nestled amidst the rolling hills of Lamerton, Devon. Combining rustic elegance and modern living, this property features 7 spacious bedrooms and 6 stylishly appointed bathrooms, set within a generous 12.36 acres of scenic countryside. The heart of the home boasts an inviting kitchen that flows into multiple receptions, including a stunning studio/games room with exposed beams and wood burner, all while preserving historical features that add character.

The Old Shippon, a converted barn, enhances the property with additional accommodation, perfect for guests or potential rental income. Step outside to enjoy well-maintained gardens and expansive outdoor spaces ideal for family activities or equestrian pursuits, complete with planning permissions for future barn conversions.

Situated in a tranquil village environment, with a backdrop of stunning natural beauty and proximity to Tavistock, this home offers a lifestyle of comfort and security in a sought-after area. Don't miss this unique opportunity to own a piece of Devon's heritage, blending luxury with country charm—schedule a viewing today!

Property Details

Brochure Descriptions

Image Descriptions

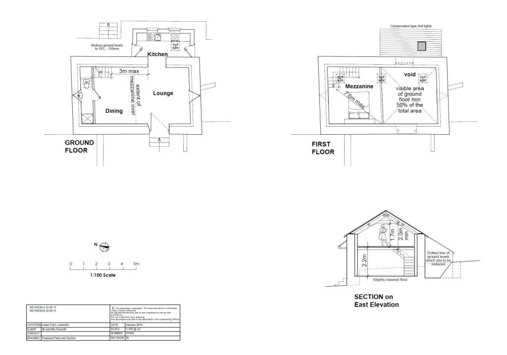
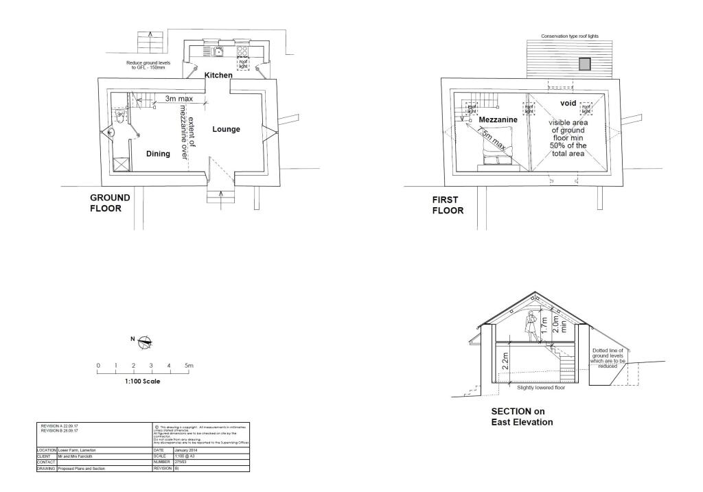
Floorplan Description

Rooms

Textual Property Features

Detected Visual Features

EPC Details

Nearby Schools

Nearest Bars And Restaurants

,,,,}

Nearest General Shops

,,}

Nearest Grocery shops

,,}

Nearest Supermarkets

,,}

Nearest Religious buildings

,,}

Nearest Medical buildings

,,,}

Nearest Leisure Facilities

,,,,}

Nearest Tourist attractions

,,}

Nearest Train stations

,,,,}

Nearest Bus stations and stops

,,,,}

Nearest Hotels

,,}

Tags

Local Market Stats

Similar Properties

Meta

High Res Images

Compatible Images

Low res Images

Thumbnails

Raw Images

High Res Floorplan Images

Compatible Floorplan Images

Low res Floorplan Images

FloorplanImages Thumbnail

Raw Floorplan Images