Substantial farm with luxury barn and conversion scope for growing family living.
- Productive 76-acre grassland holding with far-reaching countryside views
- Fully refurbished six-bedroom farmhouse with underfloor heating on ground floor
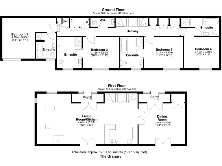
- Luxury four-bedroom granary barn, high-standard finish, holiday-let potential
- Cluster of traditional barns, stables and stores with conversion potential (Class Q noted)
- Borehole water supply to house and granary; sewage treatment plant on site
- On-site tennis court, wildlife pond, greenhouse, workshops and carport
- Main heating oil-fired; glazing/insulation variable; EPCs D60/D66
- Very slow broadband; council tax band high; services not tested
Pittescombe Farm occupies an elevated, private position in Lamerton with about 76 acres of productive grassland, far-reaching countryside views and a mix of traditional and converted buildings. The stone-built six-bedroom farmhouse has been fully refurbished, with slate floors, underfloor heating to the ground floor, a triple-aspect garden room and four en‑suite bedrooms. A luxury four-bedroom granary barn, presented to a high standard, currently offers independent accommodation and holiday-let potential.
The estate includes a cluster of traditional barns, a livestock/storage building, stables, workshop space and outbuildings offering obvious scope for further conversion or ancillary uses (Class Q potential noted for some buildings). Practical on-site features include a borehole water supply serving the house and granary, sewage treatment plant, a single 7kW EV point and a tarmacadam tennis court. The land is largely level or gently sloping, well fenced and capable of arable use; two fields adjacent to the River Lumburn have been planted with native species and retain wetland habitat features.
Buyers should note material practicalities: mains broadband is very slow (Airband/Ofcom coverage limited), primary heating is oil-fired (with woodburners and air-source readiness), glazing and insulation vary and EPC ratings are D (Farmhouse D60, Granary D66). Council tax is described as high and all services/appliances have not been independently tested. A public footpath crosses part of the land (away from the house) and the farm is offered freehold with vacant possession.
6 bedroom country house for sale in Lamerton - Tavistock, Devon, PL19 — £2,750,000 • 6 bed • 5 bath • 1255 ft²
6 bedroom detached house for sale in Tedburn Road, Whitestone, Exeter, EX4 — £1,250,000 • 6 bed • 3 bath • 3999 ft²
4 bedroom detached house for sale in Lamerton, Tavistock, Devon, PL19., PL19 — £1,150,000 • 4 bed • 3 bath • 3750 ft²
5 bedroom barn conversion for sale in Lamerton, Tavistock, Devon, PL19 — £695,000 • 5 bed • 3 bath • 976 ft²
4 bedroom detached house for sale in Tamerton Foliot - Plymouth, Devon, PL5 — £775,000 • 4 bed • 1 bath • 1837 ft²
4 bedroom detached house for sale in Bradstone, Tavistock, Devon, PL19 — £669,950 • 4 bed • 3 bath • 2762 ft²






























































































































































































































