Spacious rural home with income-ready barn and extensive productive land.
- Productive 76 acres of grassland (option to purchase with less land)
- Refurbished six-bedroom farmhouse with underfloor heating ground floor
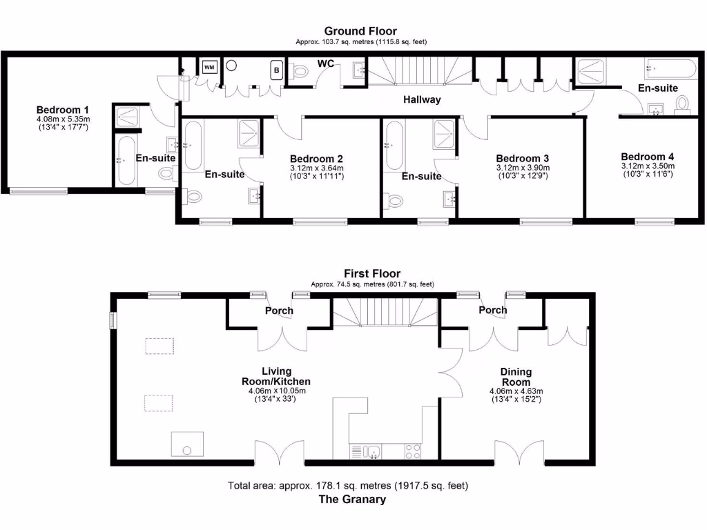
- Luxury four-bedroom granary barn, established holiday accommodation
- Borehole water supply for house and granary, sewage treatment plant
- Range of traditional barns and livestock buildings with conversion potential
- Tennis court, stables, workshops, carport and large gravel courtyard
- Oil-fired heating (air-source ready); cavity walls likely without insulation
- Very slow broadband; council tax banding expensive; EPCs D60 and D66
Pittescombe is a rare, fully refurbished country house set within a productive 76-acre farm (available with less land). The handsome six-bedroom farmhouse blends original character with modern comforts: slate floors with underfloor heating on the ground floor, a triple-aspect garden room with far-reaching views and four ensuite bedrooms. A luxury four-bedroom granary barn offers high-standard accommodation and rental/guest potential, with its own terrace and hot tub.
The estate includes a range of traditional buildings, extensive outbuildings and useful facilities for livestock or storage. Productive grassland extends either side of the private drive, a wildlife pond and newly planted wetland areas enhance biodiversity, and there is a full borehole supply to house and granary. Practical extras include a tennis court, carport, workshops, stables and a machinery store — useful for an equestrian or smallholding lifestyle.
Buyers should note a handful of material considerations: main heating is oil-fired (though air-source ready), walls include older cavity construction with assumed no insulation, and broadband speeds are very slow. Council tax is expensive and the EPC ratings are D60 (farmhouse) and D66 (granary). A public footpath crosses the land (away from the house) and some barns require refurbishment or planning for conversion if further development is intended.
This property will suit a family seeking space and seclusion, or an investor/smallholding purchaser attracted to holiday-let income from the granary and development potential in the yard. The location is rural yet within four miles of Tavistock and under an hour to Exeter, combining tranquillity with reasonable access to services.
Farm for sale in Lamerton - Tavistock, Devon, PL19 — £2,750,000 • 6 bed • 5 bath • 1841 ft²
4 bedroom detached house for sale in Bradstone, Tavistock, Devon, PL19 — £669,950 • 4 bed • 3 bath • 2762 ft²
6 bedroom detached house for sale in Tedburn Road, Whitestone, Exeter, EX4 — £1,250,000 • 6 bed • 3 bath • 3999 ft²
5 bedroom barn conversion for sale in Lamerton, Tavistock, Devon, PL19 — £695,000 • 5 bed • 3 bath • 976 ft²
5 bedroom detached house for sale in Coryton, Okehampton, EX20 — £975,000 • 5 bed • 2 bath • 3260 ft²
5 bedroom detached house for sale in Petrockstow, Okehampton, EX20 — £950,000 • 5 bed • 4 bath • 1880 ft²






























































































































































































































