Extended kitchen, landscaped garden and extra loft space for growing families.
Three double bedrooms plus boarded loft room via fixed staircase
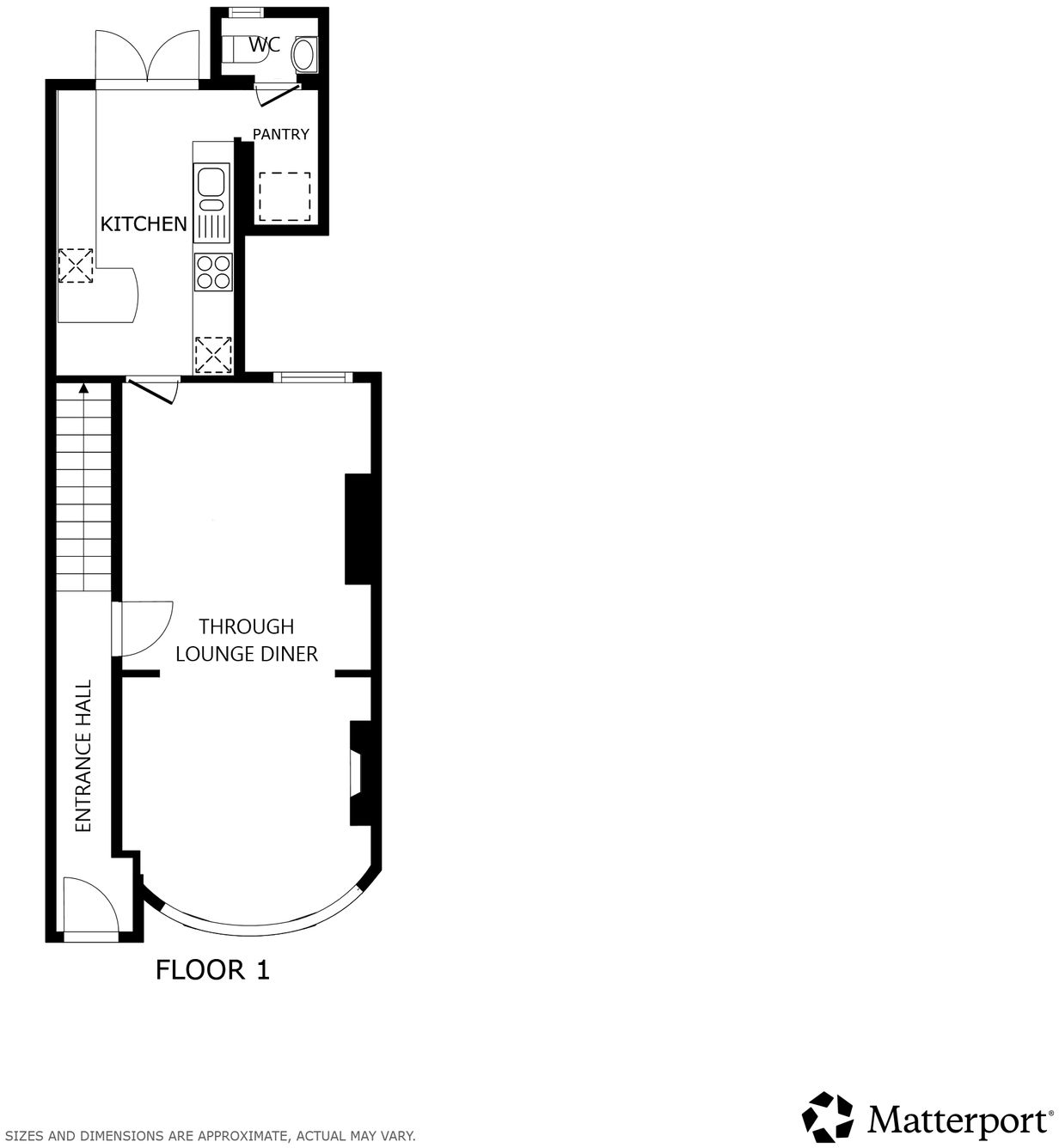
This attractive period terrace combines original bay-window character with practical, modern updates. The extended fitted kitchen and open-plan through lounge diner create a flexible ground-floor layout well suited to family life or home working. Solar panels reduce running costs, and gas central heating with a boiler and radiators serves the home.
Upstairs there are three good-sized bedrooms and a contemporary bathroom; a boarded loft room accessed by a fixed staircase provides valuable extra space for storage, a home office or occasional guest use. The property sits on a small plot with a landscaped rear garden and a forecourt front garden, offering low-maintenance outdoor space close to schools and local amenities.
Buyers should note the house is a solid-brick Victorian build with assumed no cavity insulation in the walls, and the EPC is rated D. There is a single family bathroom and one WC on the ground floor. The property may benefit from targeted insulation or modernization works to improve long-term energy performance and comfort.
Located in South Knighton near schools, parks and Queens Road shops, this freehold home offers a spacious 1,324 sq ft footprint in a very affluent, well-connected area. Its mix of period charm, useful loft room and solar panels make it a practical choice for growing families looking for space and local amenities.
3 bedroom town house for sale in South Knighton Road, South Knighton, Leicester, LE2 — £325,000 • 3 bed • 3 bath • 1216 ft²
3 bedroom semi-detached house for sale in Greenhill Road, Knighton, Leicester, LE2 — £325,000 • 3 bed • 1 bath • 1130 ft²
3 bedroom semi-detached house for sale in South Knighton Road, South Knighton, Leicester, LE2 — £365,000 • 3 bed • 1 bath • 872 ft²
3 bedroom detached house for sale in South Knighton Road, South Knighton, Leicester, LE2 — £450,000 • 3 bed • 1 bath • 1501 ft²
3 bedroom semi-detached house for sale in Ashclose Avenue, Knighton, Leicester, LE2 — £350,000 • 3 bed • 1 bath • 990 ft²
3 bedroom end of terrace house for sale in Newport Street, Leicester, LE3 — £190,000 • 3 bed • 1 bath • 969 ft²














































































































