Spacious, characterful three-bedroom house near top schools and city links.
Edwardian detached house with period features and high-ceilinged rooms|Extended kitchen with dining/breakfast area and patio doors|Three double bedrooms; principal bedroom generous in size|Private rear garden with decked seating and planting beds|First-floor balcony/terrace accessed from bedroom three|Off-street parking for one vehicle; small plot size|EPC rating D; solid brick walls assumed uninsulated|Single family bathroom; scope for modernisation or reconfiguration
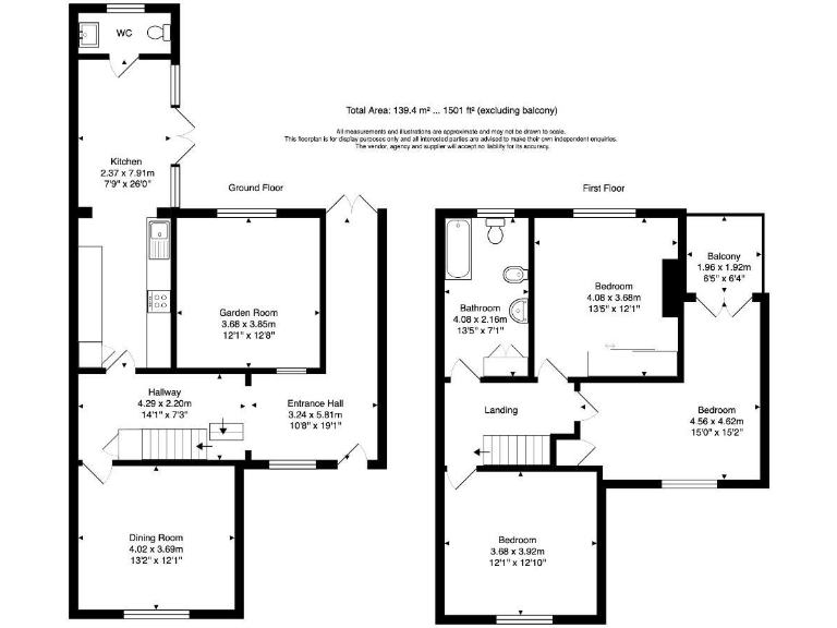
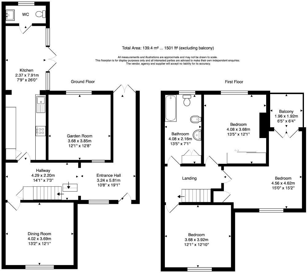
This spacious three-bedroom detached Edwardian home in South Knighton combines period character with practical modern living across circa 1,501 sq ft. High-ceilinged reception rooms, an extended kitchen with dining area, and a bright garden/living room provide flexible family space, while original features such as fireplaces, picture rails and sash-style windows add charm. The property includes a private rear garden, first-floor balcony, and off-street parking for one vehicle.
The accommodation is arranged over two floors and will suit a buyer who values well-proportioned rooms and a central city-suburban location close to schools, shops and fast commuter routes into Leicester. The layout offers scope for modest improvement or reconfiguration should you wish to tailor spaces — especially in the bathroom provision — but is presented ready for immediate occupation.
Practical details to note: the house is freehold with mains gas central heating and double glazing. The EPC is D, and the solid-brick walls are assumed to lack cavity insulation, which may affect heating bills and could be considered if planning retrofit works. The plot is relatively small and parking is limited to a single off-street space, but the low-maintenance rear garden and decked seating make outdoor entertaining easy.
Overall this is a large, characterful family home in a very affluent, well-connected neighbourhood. It will particularly appeal to families or professionals seeking generous indoor space close to reputable schools and fast broadband, while buyers wanting a larger garden or multiple parking spaces should be aware of the plot constraints.
3 bedroom semi-detached house for sale in Knighton Church Road, South Knighton, Leicester, LE2 — £495,000 • 3 bed • 1 bath • 1428 ft²
3 bedroom semi-detached house for sale in South Knighton Road, South Knighton, Leicester, LE2 — £375,000 • 3 bed • 1 bath • 872 ft²
5 bedroom terraced house for sale in Knighton Drive, Stoneygate, Leicester, LE2 — £675,000 • 5 bed • 2 bath • 2077 ft²
3 bedroom semi-detached house for sale in South Knighton Road, South Knighton, LE2 — £575,000 • 3 bed • 1 bath • 1504 ft²
3 bedroom town house for sale in South Knighton Road, South Knighton, Leicester, LE2 — £325,000 • 3 bed • 3 bath • 1216 ft²
4 bedroom semi-detached house for sale in South Knighton Road, South Knighton, Leicester, LE2 — £440,000 • 4 bed • 1 bath • 1601 ft²






















































































