G12 9EZ - 4 bedroom apartment for sale in Crown Terrace, Dowanhill, G…

View on Property Piper

4 bedroom apartment for sale in Crown Terrace, Dowanhill, Glasgow, G12

Summary - FLAT 0/1, 10, CROWN TERRACE G12 9EZ

4 bed 3 bath Apartment

**Standout Features:**
- Newly renovated four-bedroom triplex apartment in a grand Victorian townhouse.
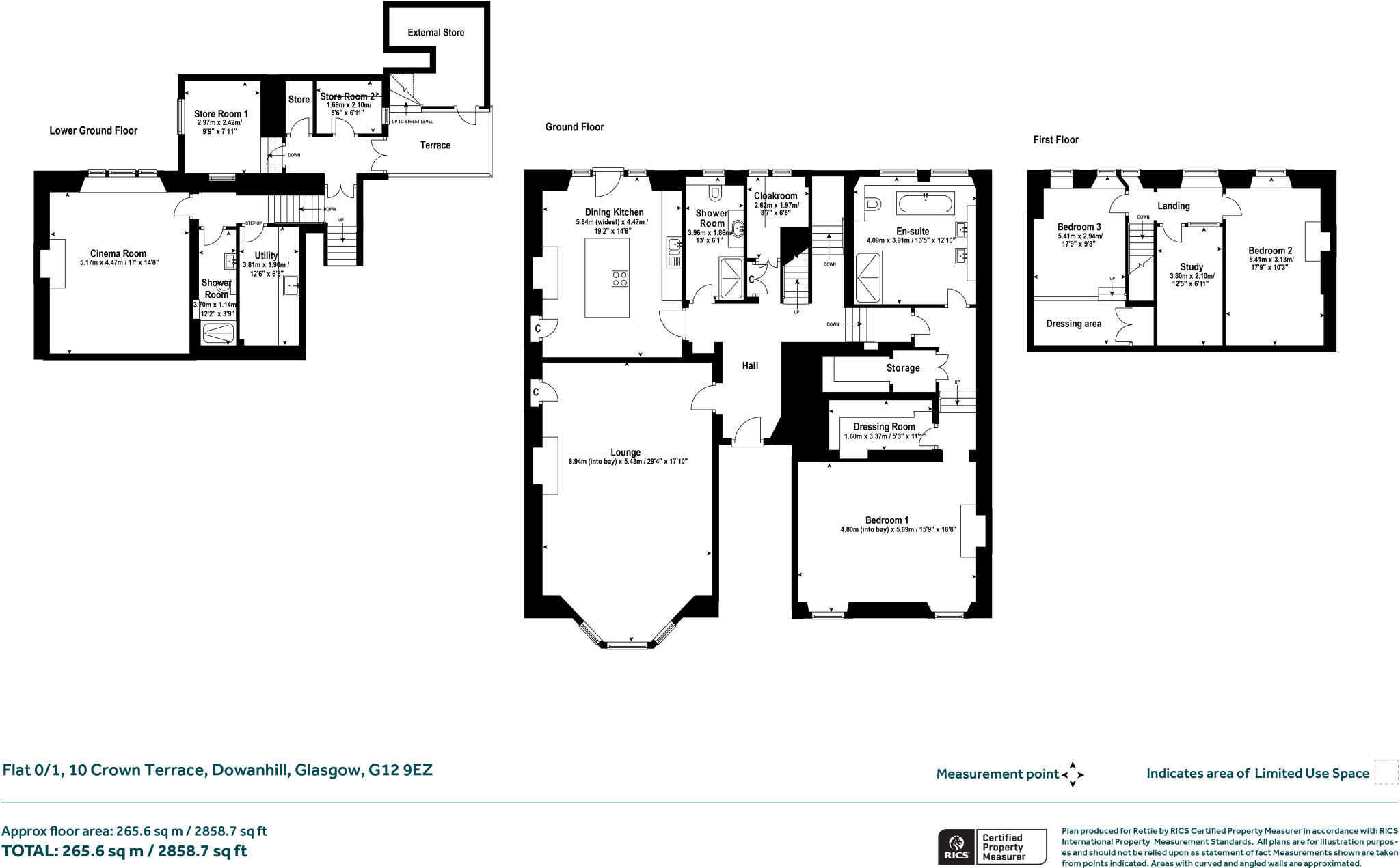
- Spacious interior boasting 2858 sq ft with high ceilings, wooden floors, and exquisite period features throughout.
- Luxurious amenities including a designer kitchen, five-piece en suite, and a media room.
- Stunning outdoor access via a wrought iron bridge to a charming garden.
- Excellent mobile signal and fast broadband speeds for modern living.

**Potential Downsides:**
- Located in an area classified as "very deprived," which may raise concerns about local amenities and investment value.
- Council tax is on the higher end.

Experience the elegance of this unique four-bedroom triplex located in the coveted Crown Terrace of Glasgow's West End. This meticulously refurbished residence showcases a perfect blend of classic Victorian charm and contemporary luxury, offering an inviting atmosphere from the moment you step inside. With 2858 square feet of living space spread over three levels, this property features grand architectural details, a stunning lounge with a bay window, and an opulent kitchen complete with high-end appliances and generous storage.

Retreat to the extraordinary principal suite equipped with a designated dressing room and a sumptuous five-piece en suite bathroom designed for comfort and style. Additional space includes a versatile cinema or fourth bedroom, ample storage options, and outdoor access to a delightful garden via a private bridge. All of this is complemented by the convenience of off-street parking and access to expansive residents' pleasure gardens.

Situate yourself in a vibrant neighborhood that offers a mix of culture and amenities, while benefiting from a remarkable property that promises an upscale lifestyle. Don't miss the opportunity to make this one-of-a-kind gem your new home or investment—properties like this are rare and may not be available for long!

Property Details

Image Descriptions

Rooms

Textual Property Features

Detected Visual Features

Nearest Bars And Restaurants

,,,,}

Nearest General Shops

,,}

Nearest Grocery shops

,,}

Nearest Supermarkets

,,}

Nearest Religious buildings

,,}

Nearest Medical buildings

,,,}

Nearest Airports

,}

Nearest Leisure Facilities

,,,,}

Nearest Tourist attractions

,,}

Nearest Train stations

,,,,}

Nearest Bus stations and stops

,,,,}

Nearest Hotels

,,}

Tags

Local Market Stats

AirBnB Data

Similar Properties

Meta

High Res Images

Compatible Images

Low res Images

Thumbnails

Raw Images

High Res Floorplan Images

Compatible Floorplan Images

Low res Floorplan Images

FloorplanImages Thumbnail

Raw Floorplan Images