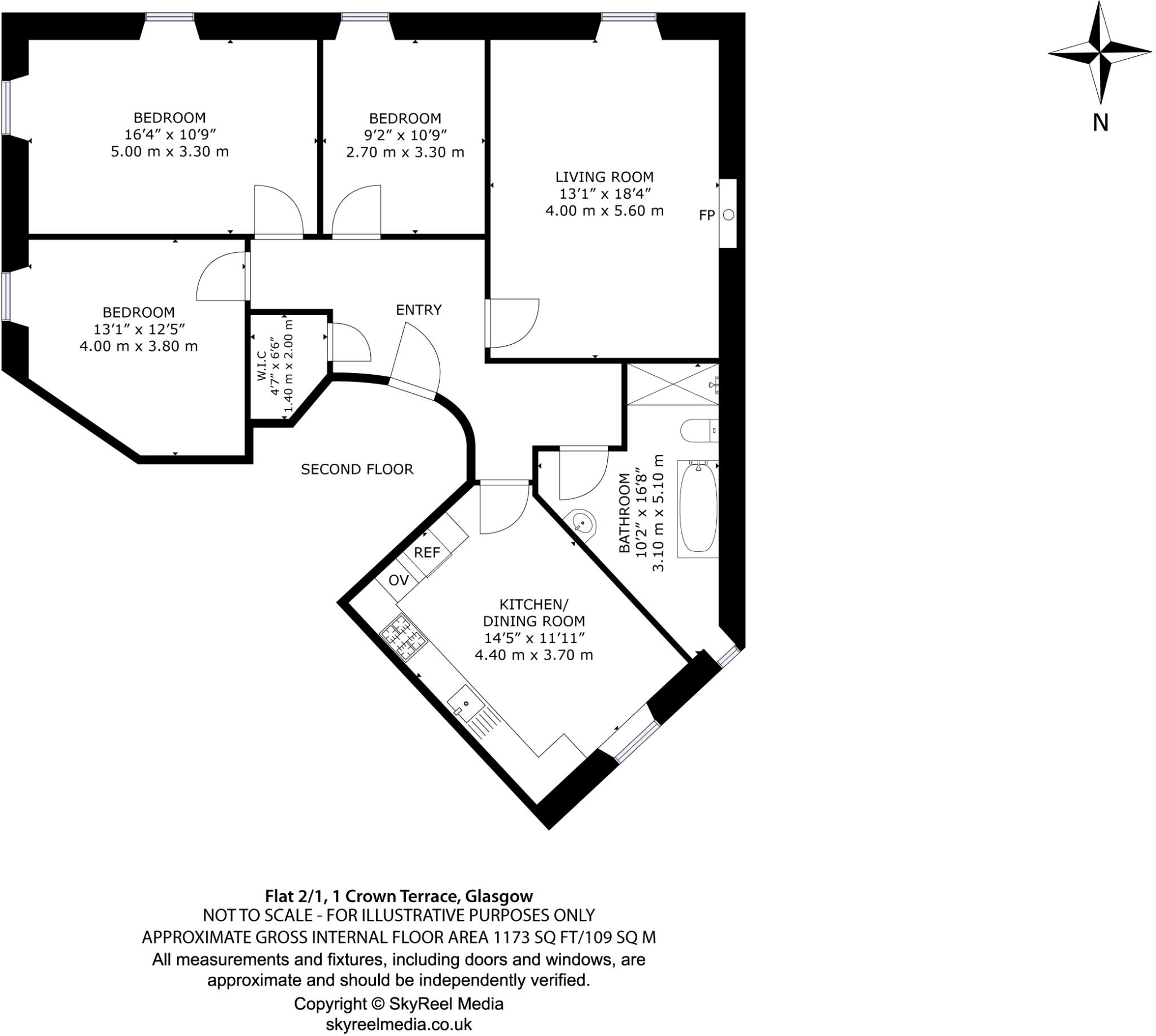
### Standout Features:
- Newly renovated three-bedroom upper conversion in a historic Victorian sandstone townhouse.
- Spacious living room with original features and a modern wood-burning stove.
- Custom-designed dining kitchen with high-end appliances and luxurious finishes.
- Generous natural light and spectacular views from the top floor.
- Peaceful location overlooking residents' gardens in the desired Dowanhill area.
- Freehold tenure and high ceilings throughout.
### Notable Concerns:
- Located in an area classified as "very deprived."
- Council tax is relatively expensive (Band F).
Nestled in the tranquil, tree-lined streets of Dowanhill, this stunning three-bedroom apartment in a grand Victorian townhouse offers a perfect harmony of historic charm and modern luxury. Extensively renovated, the home showcases an elegant design with high ceilings and an abundance of natural light filtering through generously sized windows. The inviting living room centers around a striking wood-burning stove, while the bespoke dining kitchen, crafted by acclaimed Scottish studio Archispek, features luxurious finishes including Carrara marble countertops and integrated Siemens appliances.
With three well-proportioned bedrooms and a beautifully designed bathroom featuring Italian tiling, this home is not just visually appealing but also offers a serene retreat from the city life outside. Situated in one of the West End’s most sought-after addresses, this property combines elegance with modern living, making it an ideal choice for families or professionals looking for a stylish and comfortable home. Enjoy the vibrant local amenities and convenient public transport options right at your doorstep, all while benefitting from the peace that comes with residing on an elevated corner property. Homes like this do not stay on the market for long—don’t miss your opportunity to own a piece of architectural history in Glasgow.
3 bedroom apartment for sale in Cleveden Crescent, Kelvinside, Glasgow, G12 — £625,000 • 3 bed • 3 bath • 1835 ft²
4 bedroom apartment for sale in Crown Terrace, Dowanhill, Glasgow, G12 — £995,000 • 4 bed • 3 bath • 2858 ft²
3 bedroom flat for sale in 1 Crown Terrace, Dowanhill, G12 — £495,000 • 3 bed • 1 bath • 1216 ft²
3 bedroom apartment for sale in Crown Terrace, Dowanhill, Glasgow, G12 — £569,000 • 3 bed • 2 bath • 1893 ft²
2 bedroom flat for sale in Grosvenor Crescent, Dowanhill, Glasgow, G12 — £300,000 • 2 bed • 1 bath • 787 ft²
3 bedroom apartment for sale in Lancaster Terrace, Hyndland, Glasgow, G12 — £595,000 • 3 bed • 3 bath • 1686 ft²


























































































































































































































































































