G12 8DN - 2 bedroom flat for sale in 1/1 31 Hamilton Drive, Botanics,…

View on Property Piper

2 bedroom flat for sale in 1/1 31 Hamilton Drive, Botanics, G12 8DN, G12

Summary - 1/1, 31, HAMILTON DRIVE, GLASGOW G12 8DN

2 bed 1 bath Flat

**Standout Features:**
- Recently renovated Victorian flat
- High ceilings and period features throughout
- Open-plan living and dining area with modern kitchen
- Spacious communal front garden
- Excellent mobile signal and fast broadband
- Freehold tenure with on-street permit parking available

**Potential Concerns:**
- Located in an area classified as ‘very deprived’
- Above-average council tax

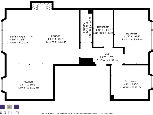
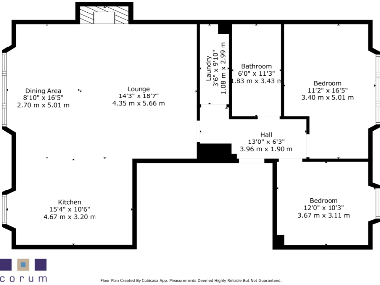
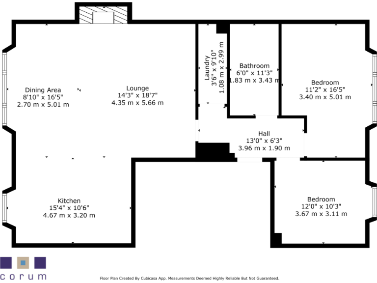
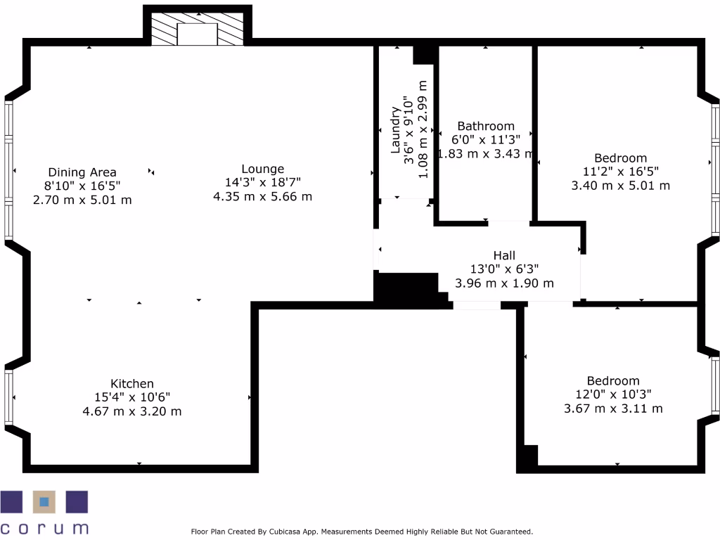
Nestled in Glasgow’s vibrant West End, this elegantly renovated Victorian flat combines period charm with modern comforts. Spanning an impressive 990 square feet, the property features an expansive open-plan living and dining area, flooded with natural light from large bay windows. The tasteful kitchen is equipped with high-tech integrated appliances and a stylish breakfast island, while two generously sized double bedrooms offer serene retreat spaces. The fully tiled, stylish four-piece bathroom includes a free-standing bath and walk-in shower.

Step outside to enjoy the spacious communal front garden, perfect for relaxation or entertaining. Priced at £339,000, this residence not only offers a remarkable living space but also provides proximity to the picturesque Botanic Gardens, trendy bars, and a variety of local shops. With its strong rental potential and convenient transport links, this flat is a prime opportunity for investors or families alike. Act quickly—the combination of stylish living and desirable location makes this property a rare find!

Property Details

Brochure Descriptions

Image Descriptions

Floorplan Description

Rooms

Textual Property Features

Detected Visual Features

Nearest Bars And Restaurants

,,,,}

Nearest General Shops

,,}

Nearest Grocery shops

,,}

Nearest Supermarkets

,,}

Nearest Religious buildings

,,}

Nearest Medical buildings

,,,}

Nearest Airports

,}

Nearest Leisure Facilities

,,,,}

Nearest Tourist attractions

,,}

Nearest Train stations

,,,,}

Nearest Bus stations and stops

,,,,}

Nearest Hotels

,,}

Tags

Local Market Stats

AirBnB Data

Meta

High Res Images

Compatible Images

Low res Images

Thumbnails

Raw Images

High Res Floorplan Images

Compatible Floorplan Images

Low res Floorplan Images

FloorplanImages Thumbnail

Raw Floorplan Images