G12 9ES - 3 bedroom apartment for sale in Crown Terrace, Dowanhill, G…

View on Property Piper

3 bedroom apartment for sale in Crown Terrace, Dowanhill, Glasgow, G12

Summary - 1/1, 12, CROWN TERRACE, GLASGOW G12 9ES

3 bed 2 bath Apartment

**Standout Features:**
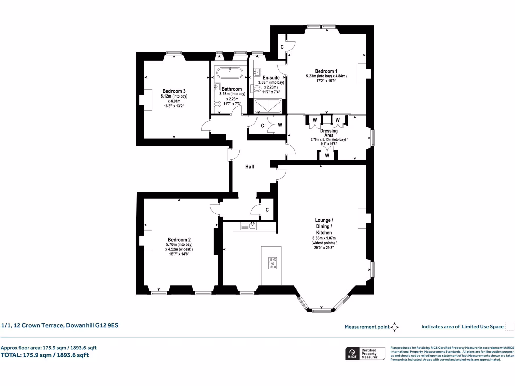
- Expansive 1,893 sq. ft. Victorian apartment
- Newly renovated with modern finishes
- Impressive original drawing room featuring a full-height bay window
- Luxurious principal bedroom suite with walk-in dressing room and en-suite shower
- Access to beautiful mature gardens
- Chain-free and freehold property

**Summary:**
Discover an extraordinary blend of classic charm and modern luxury in this newly renovated Victorian apartment on Crown Terrace, G12. Spanning a generous 1,893 square feet, this first-floor residence boasts an impressive drawing room with a stunning south-facing bay window, ornate cornicing, and high ceilings that amplify the grandeur of the space. The thoughtful upgrades include a modern fitted kitchen, re-fitted bathrooms, and quality wooden flooring throughout, perfectly suited for families or professionals seeking a vibrant student-friendly area.

Enjoy three spacious bedrooms, including a palatial principal suite with a beautifully designed dressing area and en-suite bathroom. The property also features easy access to the lush resident gardens, providing a serene retreat from city life. While situated in a deprived area, the location compensates with excellent mobile signal and fast broadband—perfect for remote work or study. With a fair council tax band and no chain delaying your move, don’t miss this rare opportunity for a luxurious lifestyle in a historic setting. Experience all that Crown Terrace has to offer before it’s gone!

Property Details

Image Descriptions

Floorplan Description

Rooms

Textual Property Features

Detected Visual Features

Nearest Bars And Restaurants

,,,,}

Nearest General Shops

,,}

Nearest Grocery shops

,,}

Nearest Supermarkets

,,}

Nearest Religious buildings

,,}

Nearest Medical buildings

,,,}

Nearest Airports

,}

Nearest Leisure Facilities

,,,,}

Nearest Tourist attractions

,,}

Nearest Train stations

,,,,}

Nearest Bus stations and stops

,,,,}

Nearest Hotels

,,}

Tags

Local Market Stats

AirBnB Data

Similar Properties

Meta

High Res Images

Compatible Images

Low res Images

Thumbnails

Raw Images

High Res Floorplan Images

Compatible Floorplan Images

Low res Floorplan Images

FloorplanImages Thumbnail

Raw Floorplan Images