Well-located Fishponds asset with licensed rooms and a bonus development plot.
Licensed 6-bed HMO producing £54,000 pa from AST tenancies
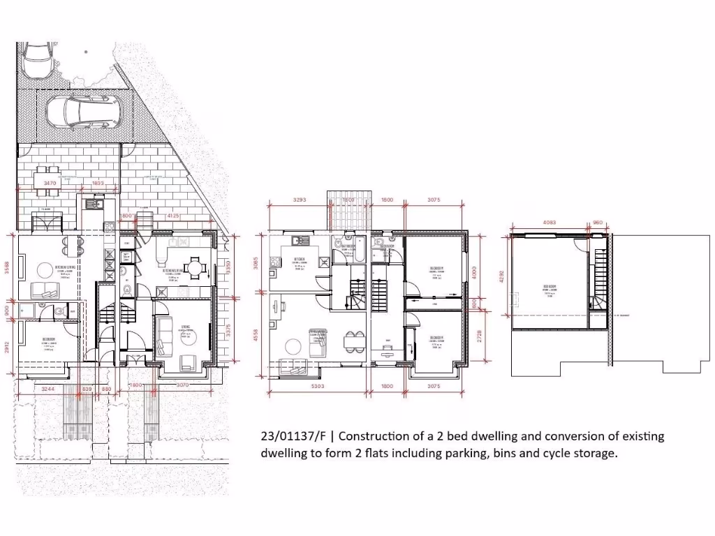
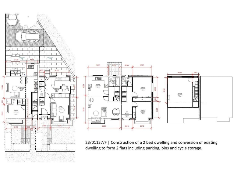
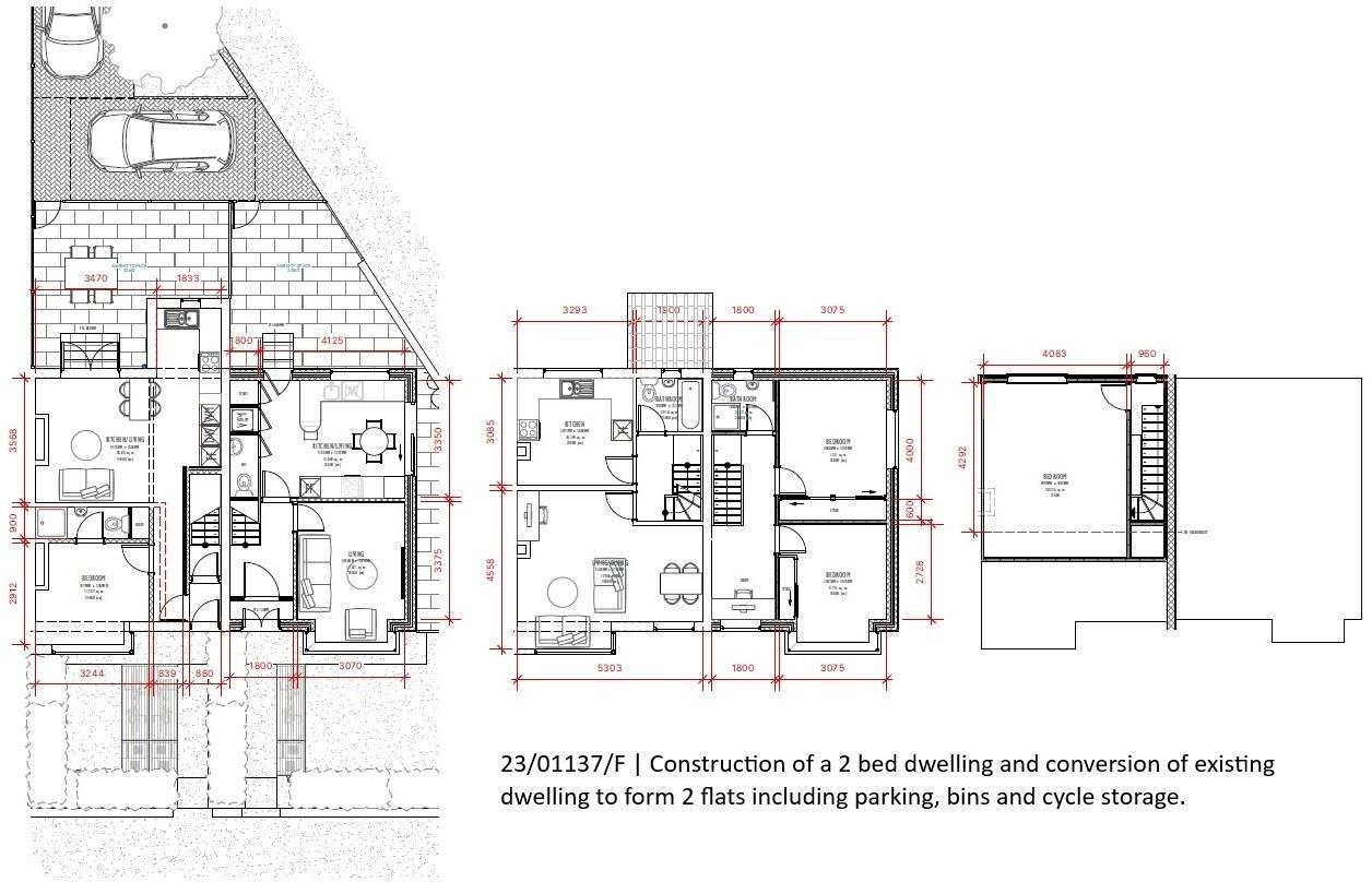
Granted planning (23/01137/F) for separate 2-bed dwelling on side plot
Side extension and plot offer scope for extra HMO bedrooms (subject to consents)
Sold at auction and will be sold subject to existing tenancies
7-bed change-of-use application pending; outcome not guaranteed
Larger-than-average plot and garage parking with private garden
Refurbished 2021 but solid brick walls likely lack insulation
Area: above-average crime; mixed social-renting neighbourhoods
This freehold end-of-terrace is a purpose-renovated, fully licensed 6-bed HMO arranged over three floors, currently producing £54,000 pa from AST tenancies. The property sits on a larger-than-average plot with a substantial side extension and a granted planning consent (23/01137/F) to build a separate 2-bed dwelling.
For an investor the value drivers are clear: an operating HMO income, planning permission for a new dwelling, and scope (subject to consents) to add further HMO bedrooms in the side plot — sellers’ information suggests potential income uplift to c. £72k–£90k pa if additional bedrooms or conversions proceed.
Buyers should note material facts plainly: the sale is subject to existing tenancies and will be sold at auction; the 7-bed HMO application is still pending and not guaranteed; any conversion or additional letting is conditional on planning and building regulation approvals. The wider area has above-average crime and is classed as mixed social-renting neighbourhoods, which can affect rental yield and management requirements.
Practical features include double glazing, mains gas central heating, garage parking and a garden. The property was refurbished in 2021 but the solid-brick walls are likely uninsulated (as-built), so further energy-efficiency works and ongoing management of multiple tenants should be factored into running costs.
6 bedroom house for sale in Hmo | £54K | Bonus Plot | Fishponds, BS15 — £525,000 • 6 bed • 3 bath • 1165 ft²
4 bedroom semi-detached house for sale in Monks Park Avenue, Horfield, Bristol, BS7 — £330,000 • 4 bed • 1 bath • 893 ft²
7 bedroom house for sale in 7 Bed Hmo | £68K Pa | BS8 — £725,000 • 7 bed • 3 bath • 1184 ft²
7 bedroom detached house for sale in Riverview, Church Road, Severn Beach, Bristol, BS35 — £550,000 • 7 bed • 3 bath • 2110 ft²
7 bedroom terraced house for sale in Coronation Road, Southville, Bristol, BS3 — £650,000 • 7 bed • 2 bath • 1500 ft²
14 bedroom house for sale in 14 BED + 8 BATH HMO | £126k pa | BS5 — £375,000 • 14 bed • 8 bath • 3218 ft²


























































































































































































