Light-filled four-bedroom home with modern kitchen and off-street parking.
Four bedrooms: three doubles plus one smaller top-floor bedroom
Modern fitted kitchen with breakfast bar and garden-facing double doors
Two reception rooms, plus downstairs WC and separate utility room
Private rear garden with decking, lawn and rear access
Driveway parking for up to two vehicles; decent plot size
Built 1930–1949; double glazing fitted after 2002, mains gas heating
Fast broadband, low crime, very affluent area; near three tube stations
Council tax above average; multi-storey layout may limit single-level living
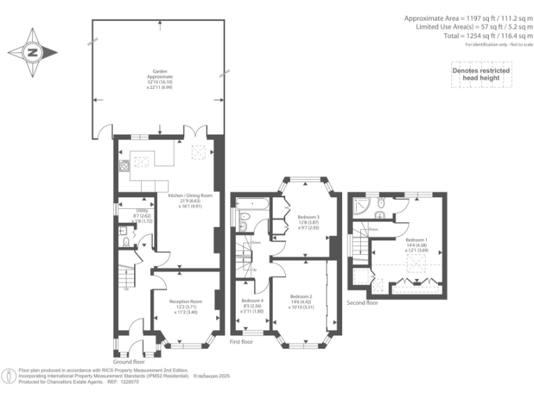
This four-bedroom semi-detached house in Bush Grove, Stanmore, blends period character with modern living across three storeys. The ground floor offers two reception areas, a contemporary kitchen with breakfast bar and double doors to a private rear garden — a practical family layout for everyday life and entertaining.
Accommodation includes three double bedrooms and a smaller fourth bedroom on the top floor with a shower room, plus a separate family bathroom and a handy downstairs WC with adjacent utility. Off-street parking for two cars and a decent plot add everyday convenience in a quiet, affluent neighbourhood close to Canons Park, Stanmore and Queensbury stations.
Built between 1930–1949 with double glazing fitted after 2002 and gas central heating, the home is presented in good order and ready to live in. Broadband is fast and local crime levels are low, making it suited to families seeking strong schools nearby and easy road links to the M1, A5 and A41.
Buyers should note council tax is above average and the property is multi-storey — the fourth bedroom sits on the second floor and may be less suitable for those needing single-level living. The single bedroom is smaller than the three doubles, which could affect older children’s space or room uses.
4 bedroom semi-detached house for sale in Anmersh Grove, Stanmore, Middlesex, HA7 — £750,000 • 4 bed • 2 bath • 1338 ft²
4 bedroom semi-detached house for sale in Honister Gardens, Stanmore, Middlesex, HA7 — £785,000 • 4 bed • 2 bath • 1316 ft²
4 bedroom semi-detached house for sale in Peareswood Gardens, Stanmore, HA7 — £795,000 • 4 bed • 2 bath • 1108 ft²
3 bedroom semi-detached house for sale in Peareswood Gardens, Stanmore, HA7 — £640,000 • 3 bed • 1 bath • 1091 ft²
4 bedroom detached house for sale in Leavesden Road, Stanmore, HA7 — £1,325,000 • 4 bed • 2 bath • 1962 ft²
4 bedroom semi-detached house for sale in Vernon Drive, Stanmore, HA7 — £765,000 • 4 bed • 2 bath • 1693 ft²






















































































































































































