Spacious three-bed home with garage, garden and extension potential near top schools.
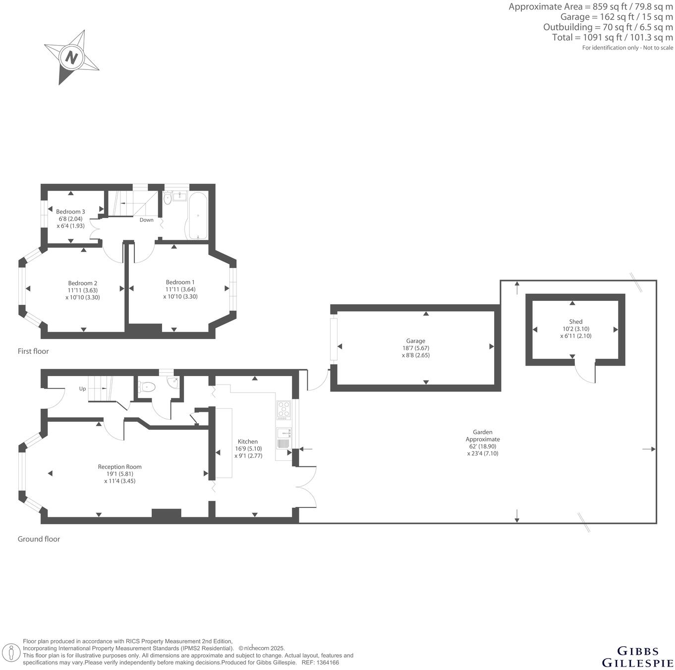
Three bedrooms with fitted wardrobes and good natural light
Open-plan modern kitchen with integrated appliances and breakfast area
Private rear garden, separate garage and off-street parking for multiple cars
Potential to extend (subject to planning permission) to increase space
Single family bathroom only; may be tight for larger families
Double glazed windows installed post-2002; mains gas boiler heating
Built 1930s with period features; some rooms may suit cosmetic updating
Freehold in a very affluent, low-crime area with excellent mobile and broadband
A well-proportioned three-bedroom semi-detached home in a quiet, affluent Stanmore street, offered as freehold. The house combines 1930s character — bay windows and a mid-century fireplace — with practical modern upgrades including double glazing and a contemporary open-plan kitchen. A private rear garden, separate garage and off-street parking for multiple cars add strong family appeal.
The layout suits families seeking nearby good schools and fast connections: Cannons Park, Stanmore and Queensbury stations are within easy reach, and several primary and secondary schools rated Good are close by. The property totals about 1,091 sq ft (101.3 sq m) and includes useful storage, a separate utility room and ground-floor WC.
There is room to add value: the plot is a decent size and the house has potential to extend subject to planning permission (STPP). Buyers should note there is a single family bathroom and council tax is above average. The home retains some mid-20th features and, while largely ready to live in, it may benefit from cosmetic updating to suit modern tastes.
Overall this is a practical family home in a low-crime, well-connected neighbourhood, offering immediate usability with clear scope for future improvement or extension.
4 bedroom semi-detached house for sale in Anmersh Grove, Stanmore, Middlesex, HA7 — £750,000 • 4 bed • 2 bath • 1338 ft²
3 bedroom semi-detached house for sale in Ladycroft Walk, Stanmore, HA7 — £600,000 • 3 bed • 1 bath • 842 ft²
3 bedroom semi-detached house for sale in Taunton Way, Stanmore, HA7 — £527,500 • 3 bed • 1 bath • 755 ft²
3 bedroom semi-detached house for sale in Woodcroft Avenue, Stanmore, HA7 — £675,000 • 3 bed • 1 bath • 947 ft²
4 bedroom house for sale in Peareswood Gardens, Stanmore, HA7 — £760,000 • 4 bed • 2 bath • 1299 ft²
3 bedroom semi-detached house for sale in Wemborough Road, Stanmore, Middlesex, HA7 — £650,000 • 3 bed • 1 bath • 1012 ft²


























































































