Contemporary two-bed home a short walk from High Wycombe station.
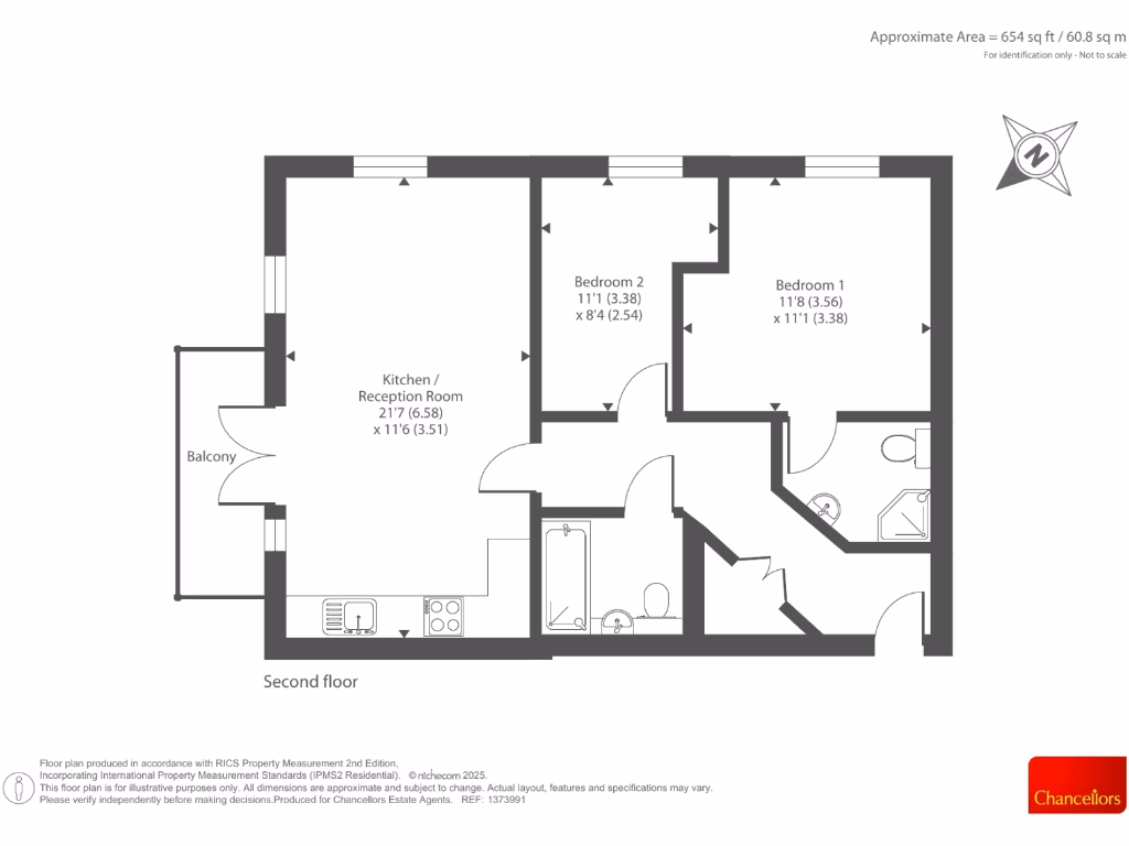
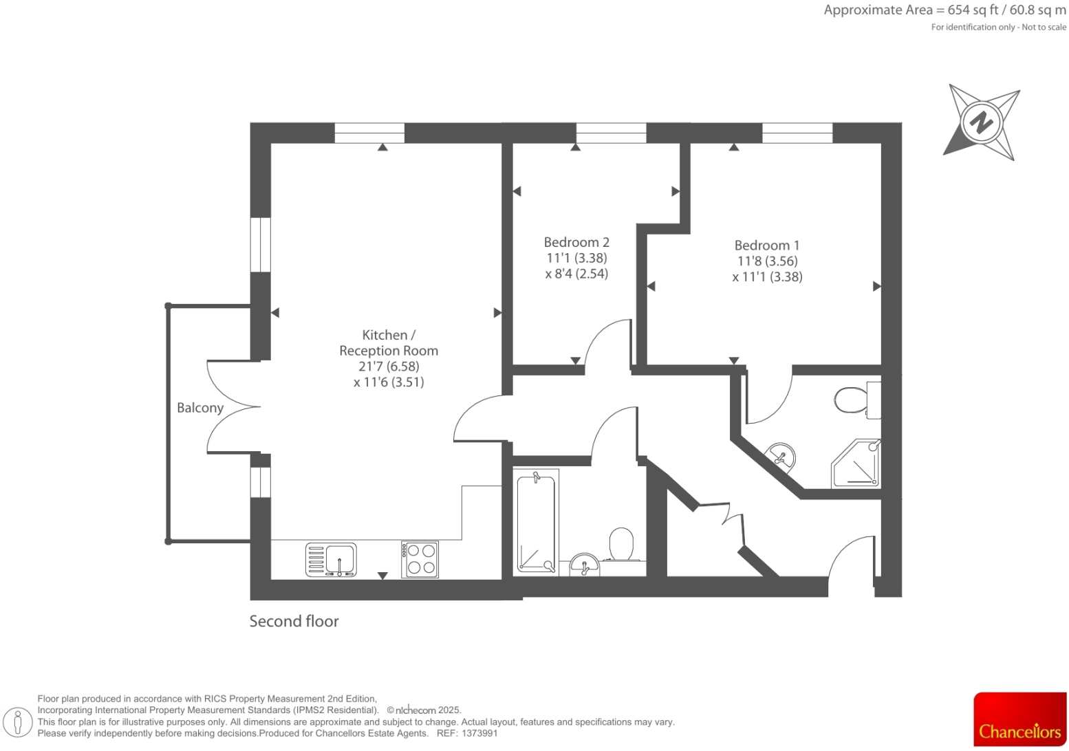
Second-floor two-bedroom apartment with en-suite to master
Open-plan living area leading to private balcony
Secure allocated underground parking and communal gardens
Approx 654 sq ft; modern build (2007–2011) with double glazing
Fast broadband and excellent mobile signal for home working
Electric room heaters only — no gas central heating
Average service charge c. £1,844; confirm exact lease remaining
Area reports above-average crime — factor into decision
Bright, modern and commuter-friendly, this two-bedroom second-floor apartment sits under half a mile from High Wycombe station. The open-plan living area flows to a private balcony and benefits from large windows and contemporary finishes, making the space feel larger than its 654 sq ft footprint.
The principal bedroom includes an en-suite and there's secure allocated underground parking and communal gardens. Utilities and connectivity are strong here—fast broadband and excellent mobile signal—suiting remote working or streaming needs.
Notable costs and practical points to check: the property uses electric room heaters (no mains gas boiler), and an average service charge of £1,844 applies. Crime levels in the area are reported above average, and the listing shows differing lease figures—confirm the exact remaining term before commitment.
Overall, this apartment offers a straightforward, low-maintenance home for a first-step buyer or an investor targeting rental demand close to transport and local amenities. The building’s relatively recent construction and double glazing reduce short-term major maintenance needs, while the electric heating and service charges are factors to budget for.
2 bedroom apartment for sale in Mathews House, High Wycombe (walk Of Station), HP13 — £249,500 • 2 bed • 2 bath • 663 ft²
2 bedroom apartment for sale in Chairborough Court, High Wycombe, HP12 — £210,000 • 2 bed • 1 bath • 572 ft²
2 bedroom apartment for sale in Wellesbourne Road, High Wycombe, Buckinghamshire, HP13 — £260,000 • 2 bed • 1 bath • 685 ft²
2 bedroom apartment for sale in Moonstone Court, High Wycombe, HP12 — £250,000 • 2 bed • 2 bath • 685 ft²
2 bedroom apartment for sale in Ercolani Avenue, High Wycombe, HP13 — £230,000 • 2 bed • 1 bath • 654 ft²
2 bedroom flat for sale in High Wycombe, Buckinghamshire, HP13 — £275,000 • 2 bed • 2 bath • 1473 ft²






























































































