Turnkey, commuter-friendly apartment with balcony and allocated parking.
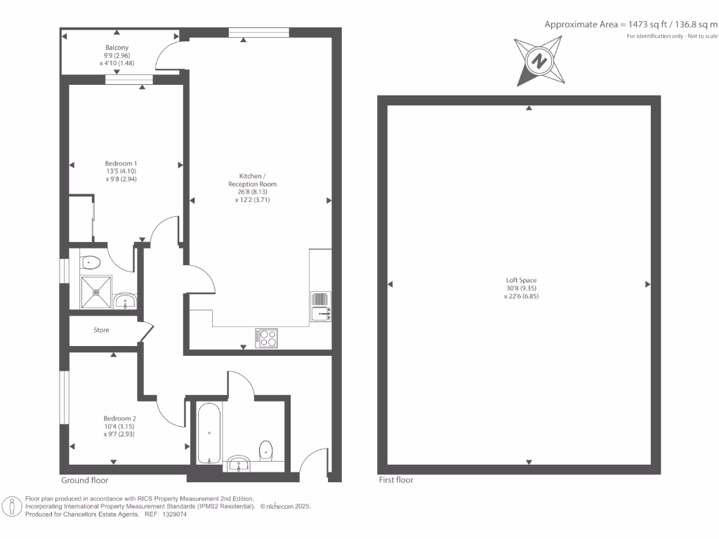
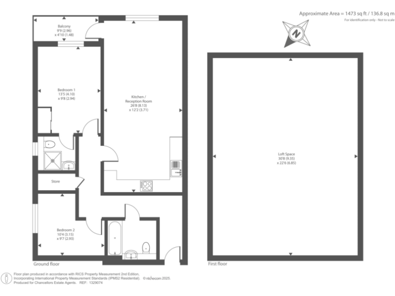
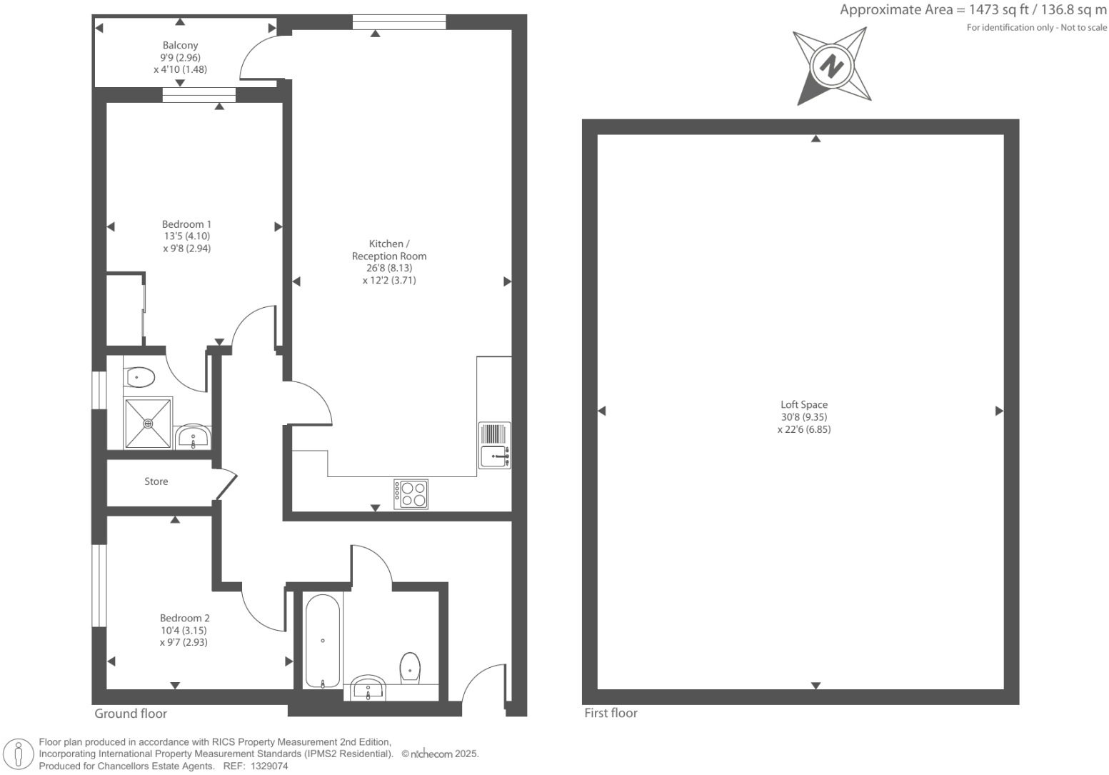
Extremely large 1,473 sqft apartment space
Set just 0.2 miles from High Wycombe station, this unusually large two-bedroom apartment offers practical commuter living with premium-sized rooms. The open-plan lounge leads to a private balcony and communal gardens, while two bathrooms and an accessible large loft add everyday convenience and storage. The home benefits from underfloor heating, modern fitted kitchen and bathrooms, recently replaced worktops and hob, and allocated off-street parking.
The property is leasehold with 116 years remaining (original 125-year term). Annual costs include a service charge averaging £1,668 and ground rent of £395. There is a secure entry phone system and modern construction by W.E Black, but note the local area records above-average crime levels, which some buyers may want to consider.
This apartment suits first-time buyers and buy-to-let investors seeking a turnkey, spacious flat close to transport links. It combines low maintenance, contemporary finishes and strong connectivity, though purchasers should factor in leasehold charges and local crime statistics when assessing long-term suitability.
2 bedroom flat for sale in High Wycombe, Buckinghamshire, HP11 — £220,000 • 2 bed • 2 bath • 656 ft²
2 bedroom flat for sale in Greengate, High Wycombe, HP12 — £215,000 • 2 bed • 1 bath • 533 ft²
2 bedroom apartment for sale in Ercolani Avenue, High Wycombe, HP13 — £230,000 • 2 bed • 1 bath • 654 ft²
2 bedroom apartment for sale in Kennedy Avenue, Off Daws Hill Lane, High Wycombe, HP11 — £335,000 • 2 bed • 2 bath • 892 ft²
2 bedroom apartment for sale in Moonstone Court, High Wycombe, HP12 — £250,000 • 2 bed • 2 bath • 685 ft²
2 bedroom flat for sale in Conegra Road, High Wycombe, HP13 — £245,000 • 2 bed • 1 bath • 624 ft²














































































