**Standout Features:**
- Large plot of approximately 0.85 acres in a picturesque rural location.
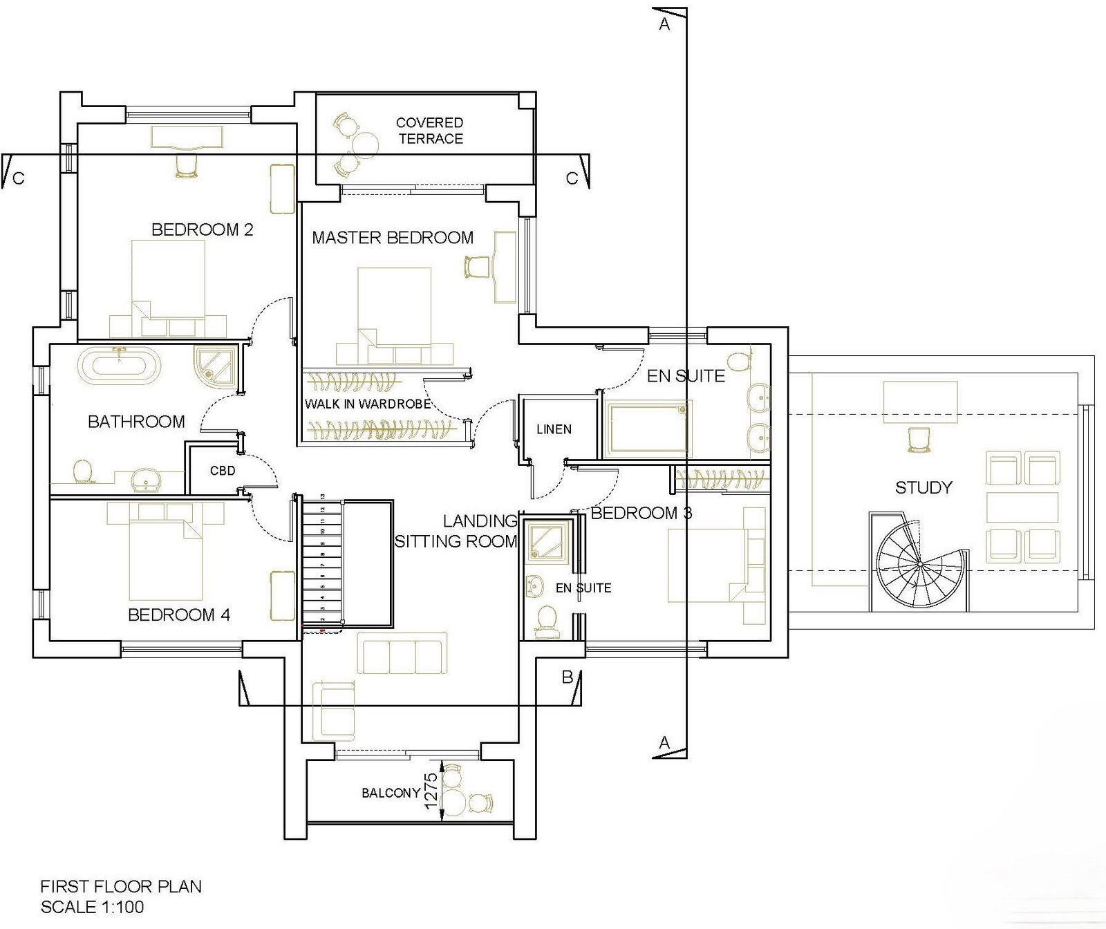
- Planning permission for a stylish, modern 3,562 sq. ft. house with extensive field views.
- Newly renovated, chain-free building plot with fast broadband and excellent mobile signal.
- Features include five bedrooms, multiple en-suites, open-plan living spaces, and provisions for a double garage and gym.
- Nearby village amenities including schools, shops, and public transport.
**Summary:**
Discover the perfect canvas for your dream home on this expansive plot of land, ideally situated in the charming hamlet of Pages Green. Boasting planning permission for an impressive detached residence of over 3,500 sq. ft., the proposed design features an inviting open-plan kitchen/dining area, a sumptuous principal bedroom with terrace, and additional living spaces that cater to modern family life. Envision waking up to stunning views of the countryside on your own generous grounds.
While the property enjoys low crime rates and a peaceful setting, it also provides convenient access to nearby Debenham, equipped with essential amenities and schools rated Good by Ofsted. With the plot being newly renovated and ready for construction, this opportunity is not just a purchase—it's a chance to create a unique lifestyle in an idyllic locale. Don’t miss out; explore the potential and make this project your own!















































