Set on 1.2-acre paddock with sweeping countryside views and generous outbuildings.
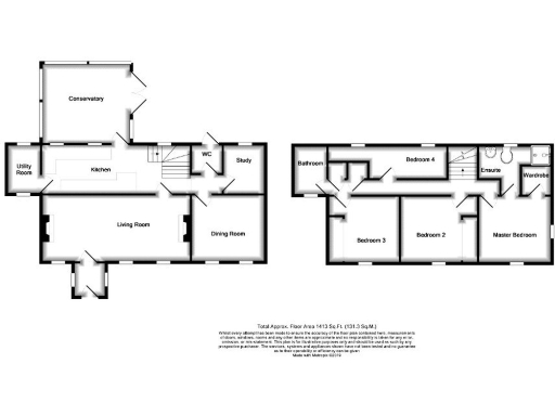
Five bedrooms including principal suite with walk-in wardrobe and en suite
Two inglenook fireplaces, exposed beams and original Horsham sandstone features
1.2-acre paddock with open countryside views and established gardens
Detached double garage, carport, gated drive and ample parking for several cars
Oil-fired central heating; propane for cooking; EPC rating E
Solid brick walls likely uninsulated — energy-efficiency upgrades recommended
Slow broadband speeds in the area
Total internal area c.1,184 sq ft — relatively compact for five bedrooms
This unique detached home was formed from two 200-year-old cottages and retains strong period character throughout, with exposed beams, attractive stone walls and two inglenook-style fireplaces. Adapted and extended by the long-term owner, the interior offers versatile reception space including a sitting room, dining room, study and conservatory, plus a principal suite with walk-in wardrobe and en suite shower room.
Outside, the property sits in extensive mature gardens with a paved terrace, greenhouse, vegetable plot and a 1.2-acre paddock that delivers far-reaching open countryside views. Practical features include a detached double garage, adjoining carport, timber sheds and substantial driveway parking accessed via gated entrances — useful for families with several cars or trailers.
From a running-cost and improvement perspective, the house is heated by an oil-fired boiler and uses propane for cooking; the EPC is rated E. The property’s solid brick construction suggests limited wall insulation as built, so energy-efficiency upgrades (insulation, heating improvements, double-glazing checks) should be considered. Broadband speeds are slow in the area and council tax is described as quite expensive.
Located about three miles south of Horsham town centre and station, this home provides a peaceful village setting with good local schools and easy access to A24/A281 links, yet remains practical for commuting or family life. The plot and layout offer clear scope for sympathetic modernisation to improve comfort and efficiency without losing the house’s historic charm.
3 bedroom semi-detached house for sale in Coolhurst Close, Monks Gate, RH13 — £500,000 • 3 bed • 2 bath • 1014 ft²
5 bedroom detached house for sale in Two Mile Ash Road, Horsham, RH13 — £1,675,000 • 5 bed • 3 bath • 3719 ft²
4 bedroom detached house for sale in Bognor Road, Horsham, RH12 — £1,300,000 • 4 bed • 3 bath • 3018 ft²
4 bedroom detached house for sale in Five Oaks Road, Slinfold, RH13 — £1,250,000 • 4 bed • 3 bath • 3283 ft²
5 bedroom detached house for sale in Nuthurst Street, Nuthurst, Horsham, West Sussex, RH13 — £800,000 • 5 bed • 2 bath • 1187 ft²
5 bedroom detached house for sale in Kerves Lane, Horsham, RH13 — £1,750,000 • 5 bed • 3 bath • 4053 ft²






















































































































































