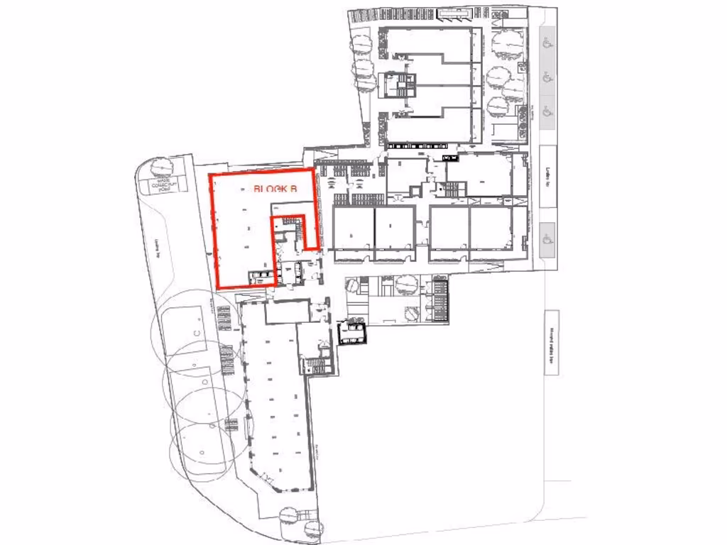
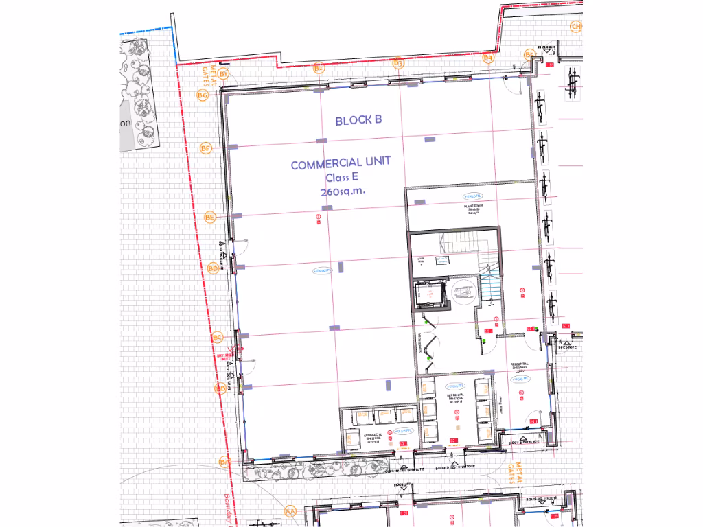
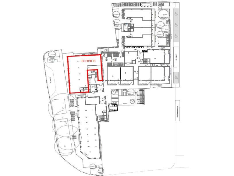
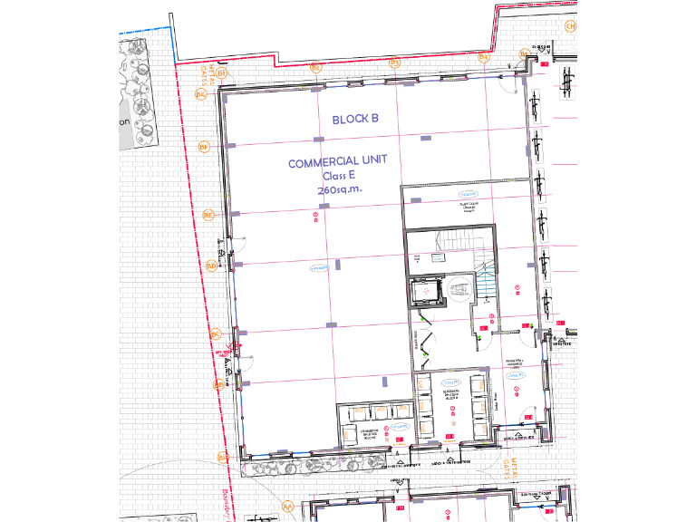
Large, flexible new-build retail space on busy Lordship Lane — ready for fit-out..
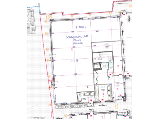
- Large ground-floor commercial space c.3,315–3,500 sq ft
- Full-height glazed frontage for high visibility and natural light
- Flexible Class E use: retail, café, office or fitness
- New-build blank-canvas interior requiring full fit-out
- Leasehold with 125 years remaining
- Prominent Lordship Lane location with strong footfall
- High local crime and very deprived area — factor security costs
- Excellent transport links (Victoria Line, Overground, buses)
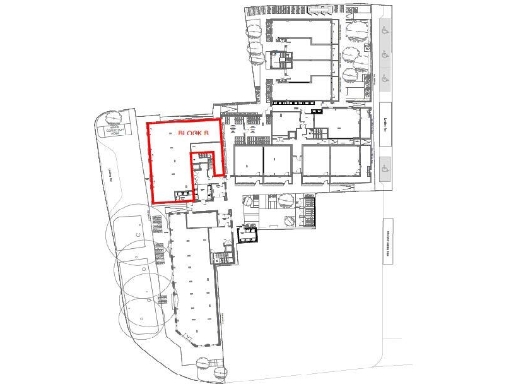
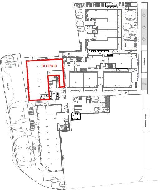
A substantial ground-floor commercial offering on Lordship Lane, totalling c.3,315–3,500 sq ft across two adjoining units. The new-build development provides a full-height glazed frontage and a blank-canvas interior, giving occupiers flexibility to fit out for retail, café, office or fitness uses under Class E. Strong natural light and prominent frontage suit brands seeking visibility in a busy high-street location.
Transport connectivity is a clear strength: nearby Victoria Line and Overground stations and multiple bus routes deliver regular footfall and easy access to Central London. The scheme’s mixed-use nature brings local residential catchment from the upper-floor flats, supporting day-to-day trade. Leasehold terms are long (125 years remaining), appropriate for businesses or investors planning medium- to long-term occupation.
Buyers should note material considerations: the units are sold as new blank shells and will require a fit-out and services installation before occupation. The immediate area records high crime and very high deprivation indices, which may affect certain occupier types and will influence insurance and security costs. Broadband speeds are average; mobile signal is excellent.
This asset suits operators or investors looking for a modern, adaptable high-street presence with strong transport links and large floorplate potential. Budgeting for tenant fit-out, security measures and active local marketing will be important to realise the unit’s trading potential.
Property for sale in High Road, Tottenham, London, N17 — £465,000 • 1 bed • 1 bath
High street retail property for sale in High Road, London, N17 — £500,000 • 1 bed • 1 bath • 3500 ft²
1 bedroom apartment for sale in London, N17 — £427,500 • 1 bed • 1 bath • 549 ft²
Studio flat for sale in Willoughby Lane, London, N17 — £105,000 • 1 bed • 1 bath
1 bedroom mixed use property for sale in 47 The Roundway, Tottenham, London, N17 7HA, N17 — £390,000 • 1 bed • 1 bath • 1595 ft²
2 bedroom apartment for sale in Beaconsfield Road, London, N15 — £450,000 • 2 bed • 1 bath • 613 ft²






































