Affordable North London flat with long lease and strong transport links for first-time buyers.
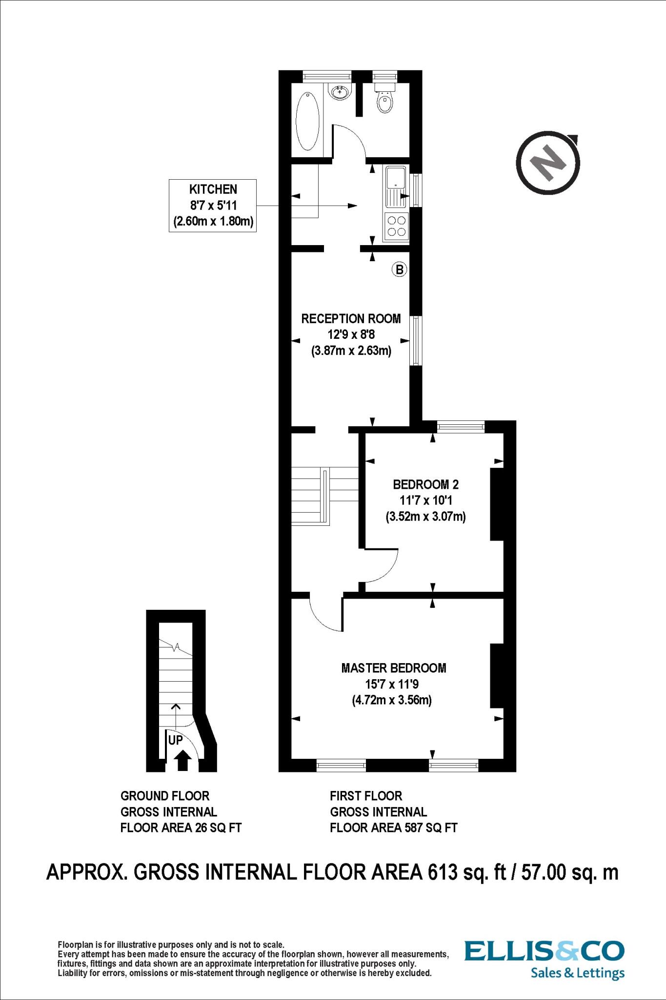
- Two-bedroom first-floor flat, 613 sq ft, straightforward layout
- Versatile second bedroom suitable as study or nursery
- Long lease: 141 years remaining
- Built before 1900 with period exterior and original features
- Small rooms and some low ceilings; compact living space
- Solid brick walls likely uninsulated; may need energy upgrades
- Area: very deprived with very high local crime levels
- Fast broadband and excellent mobile signal; good local amenities
Set on the first floor of a Victorian terrace, this two-bedroom apartment offers 613 sq ft of straightforward living in Tottenham. The layout gives a central reception room, a main bedroom and a versatile second bedroom suitable as a guest room, nursery or home office. Fast broadband and excellent mobile signal make it practical for remote working and streaming.
The building retains period character on the exterior and presents a solid blank canvas inside. Double glazing is fitted (install date unknown) and heating is provided by a mains-gas boiler and radiators. The long lease (141 years remaining) reduces immediate tenure risk and the council tax band is moderate.
Buyers should be aware of material local factors: the area is classified as very deprived with very high crime levels, and the property is in an inner-city, high-density neighbourhood. The apartment is small with low ceilings in places and the original solid brick walls are likely uninsulated, so some modernization or energy-efficiency upgrades may be beneficial.
This home will suit a first-time buyer or investor looking for an affordable entry into North London with scope to personalise. Its proximity to shops, transport links and several well-rated local schools adds practical appeal, while realistic budgeting for cosmetic updating and potential insulation works will be important.
2 bedroom flat for sale in Park Lane, Tottenham, London, N17 — £350,000 • 2 bed • 1 bath • 566 ft²
1 bedroom flat for sale in Cedar Road, London, N17 — £260,000 • 1 bed • 1 bath • 364 ft²
2 bedroom apartment for sale in Lansdowne Road, London, N17 — £450,000 • 2 bed • 1 bath • 856 ft²
1 bedroom flat for sale in Park Lane, Tottenham, London, N17 — £325,000 • 1 bed • 1 bath • 490 ft²
2 bedroom flat for sale in Compton Crescent, Tottenham, London, N17 — £350,000 • 2 bed • 1 bath • 746 ft²
1 bedroom apartment for sale in West Green Road, London, N15 — £219,950 • 1 bed • 1 bath • 322 ft²






















































































































































