Ready‑income site with planning consent for eight apartments and clear upside.
Freehold semi‑commercial property with national tenant in situ
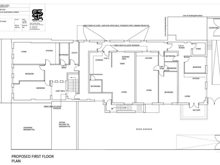
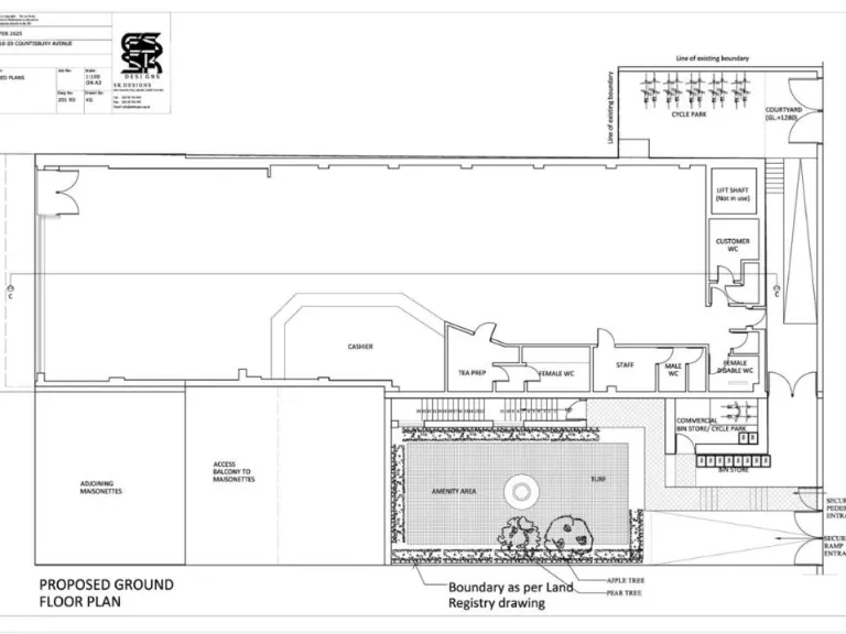
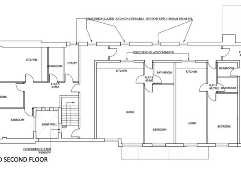
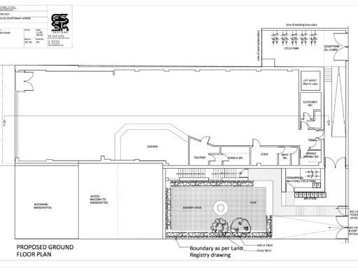
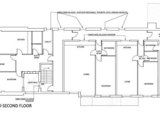
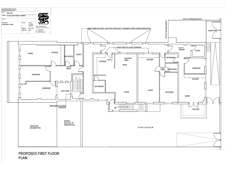
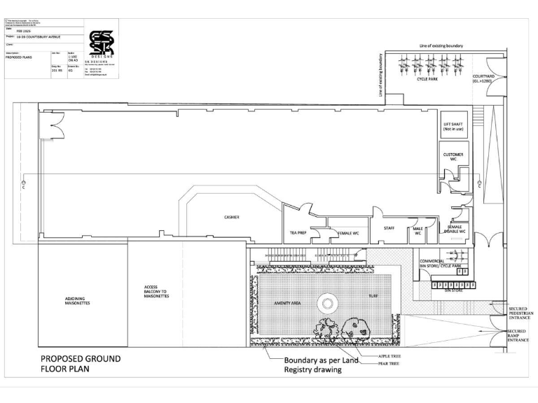
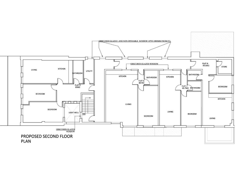
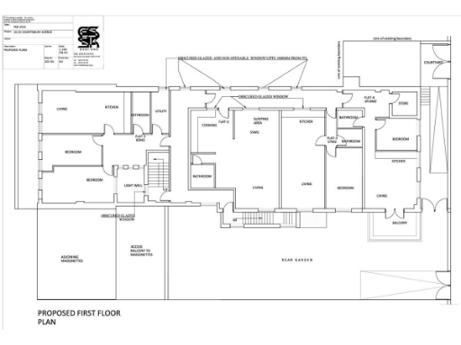
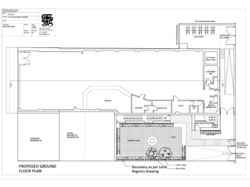
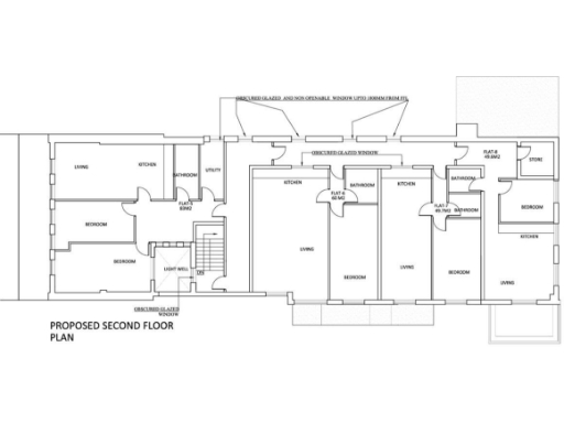
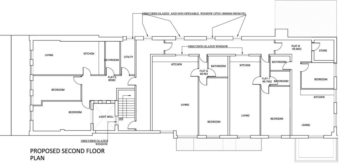
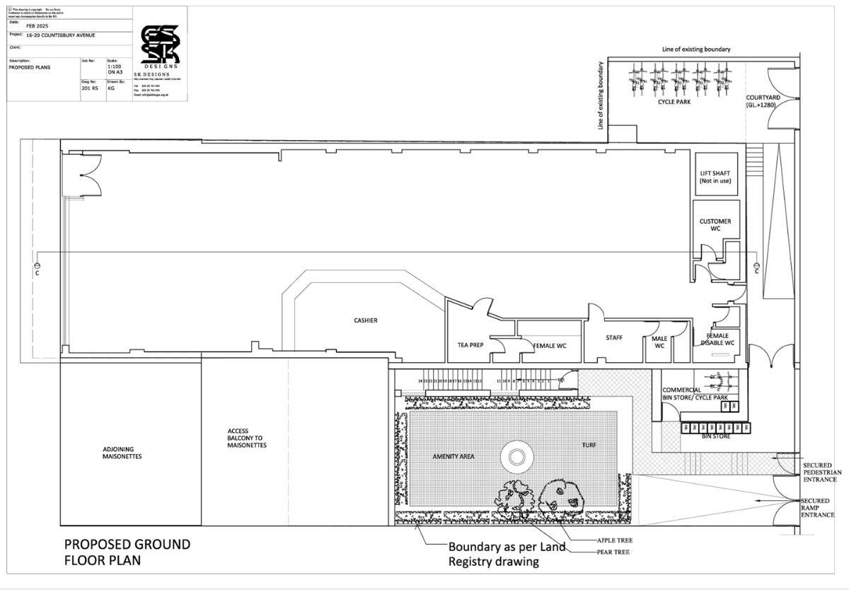
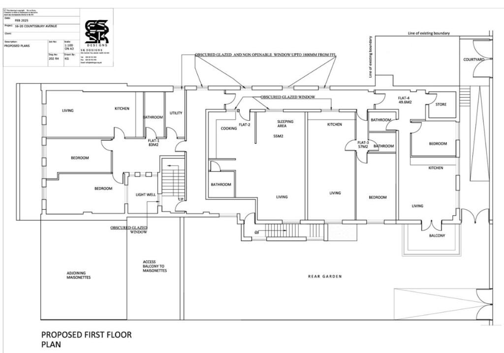
A rare freehold semi‑commercial investment on a busy Llanrumney parade, currently producing a secure commercial income of £23,500 pa from a national tenant. Planning approval (CCC ref: 21/01885/MNR) exists for eight apartments across the first and second floors, offering immediate asset uplift for a developer or investor seeking rental units or resale flats.
The building is mid‑20th century mid‑terrace brickwork with a full‑width shopfront and modest upper‑floor flats. The plot is narrow and deep with a small rear yard; images and descriptions indicate some external weathering and moss growth so external maintenance and façade refurbishment will be required. Internal reconfiguration and full refurbishment will be needed to complete the approved apartment conversions.
This is a practical opportunity for a buyer wanting an existing income stream plus redevelopment upside. Note the location sits within a high‑crime, very deprived area and the wider area classifications indicate socioeconomic challenges; factor this into rental and sales assumptions. Council funding and a finalised s.106 may be available to support redevelopment but buyers should confirm terms.
Suitability is strongest for investors or small developers who can manage refurbishment, tenant handover and local letting demand. The site offers clear planning consent and an existing tenant, but budget for external repairs, conversion works, and potential management costs related to the local market conditions.
10 bedroom terraced house for sale in William Hill Bookmakers, - Countisbury Avenue, Llanrumney, Cardiff, CF3 — £560,000 • 10 bed • 8 bath • 2632 ft²
Restaurant for sale in 132, 134, 136,138 Whitchurch Road, Heath, Cardiff CF14 3LZ, CF14 — £950,000 • 1 bed • 1 bath
Restaurant for sale in Clifton Street, Cardiff, CF24 — £300,000 • 1 bed • 1 bath
Restaurant for sale in Clifton Street, Cardiff CF24 1LY, CF24 — £325,000 • 1 bed • 1 bath
4 bedroom terraced house for sale in Clifton Street, Cardiff, CF24 — £325,000 • 4 bed • 2 bath • 1604 ft²
2 bedroom mixed use property for sale in 52 & 52A Crwys Road, Cardiff, CF24 4NN, CF24 — £375,000 • 2 bed • 1 bath • 2155 ft²






































































