Income-producing shop with planning for eight apartments — clear developer upside..
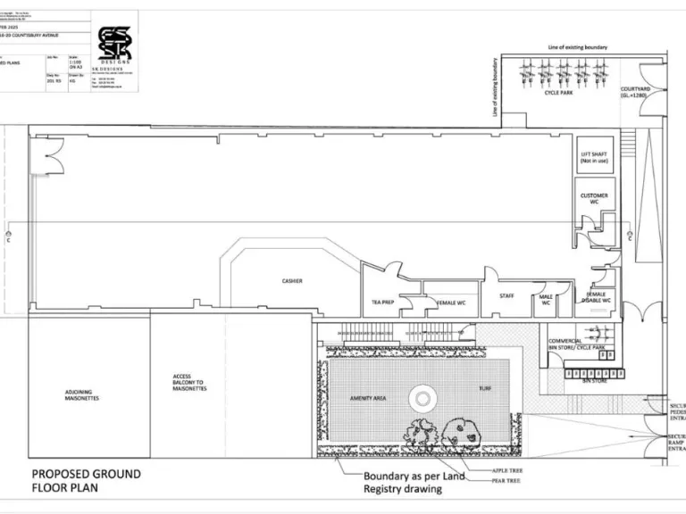
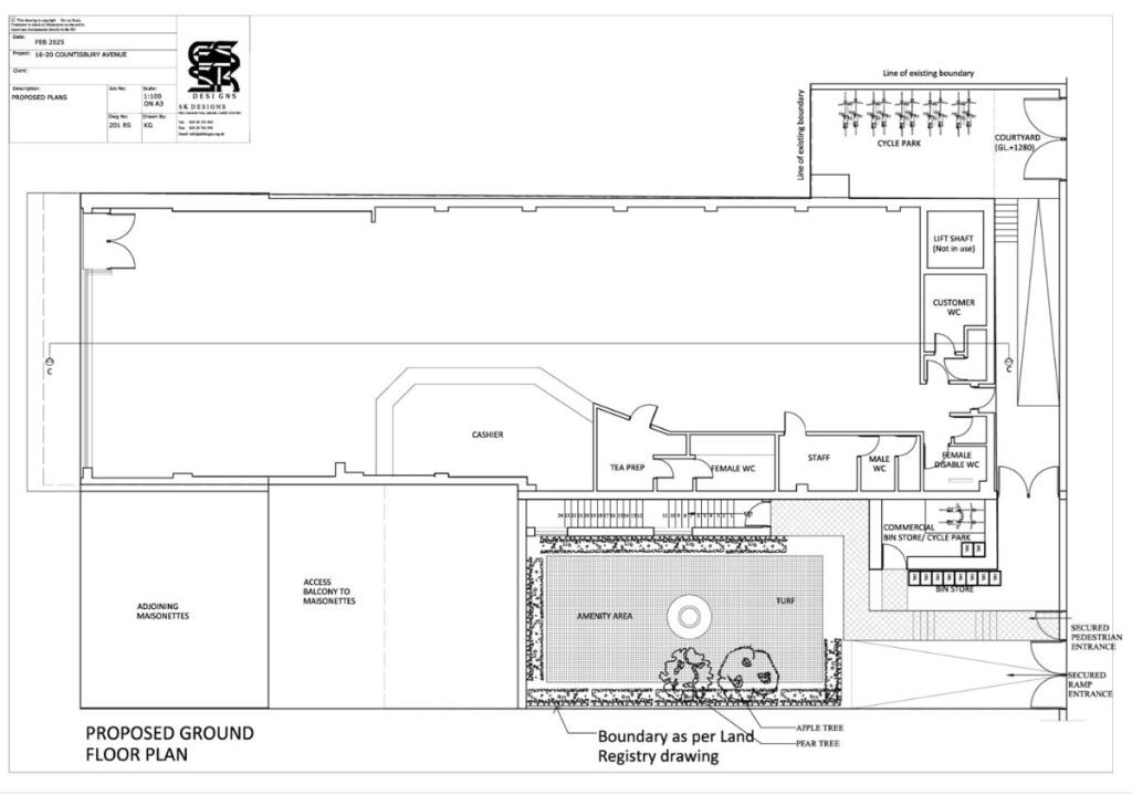
National tenant on ground floor generating £23,500pa income
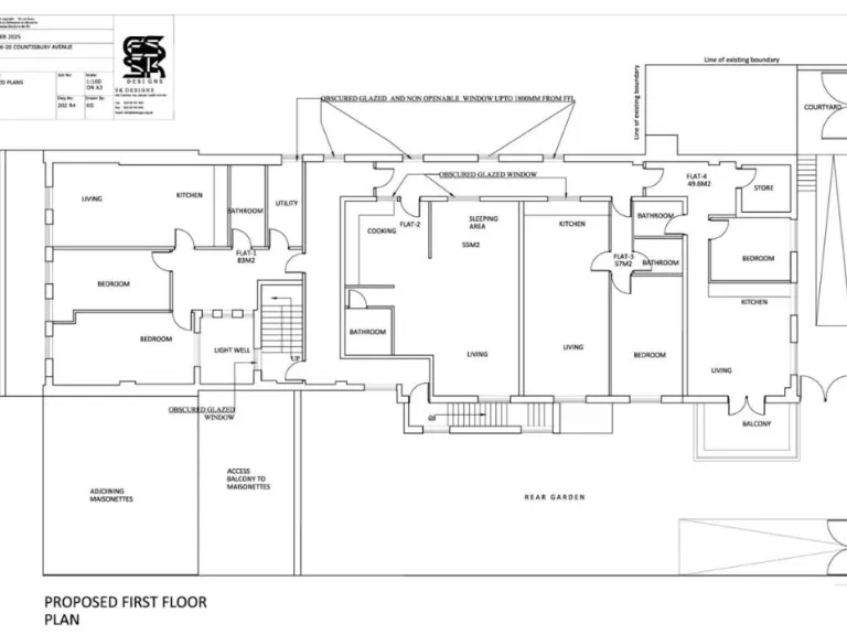
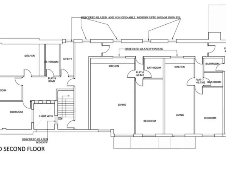
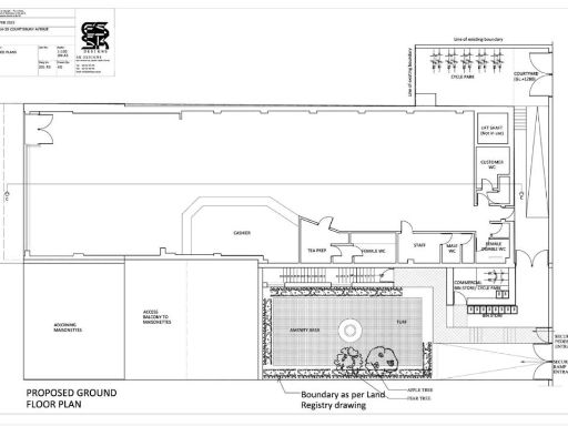
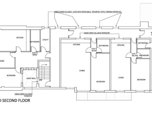
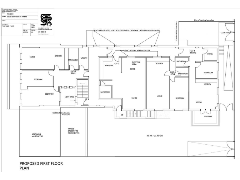
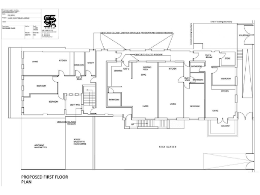
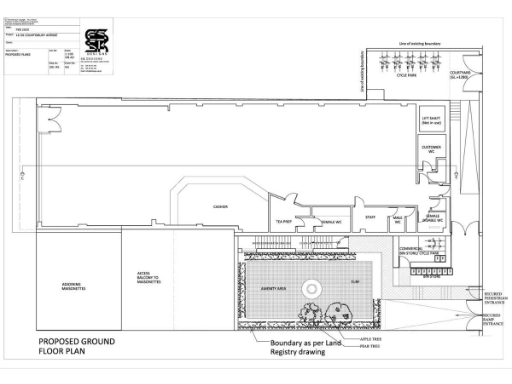
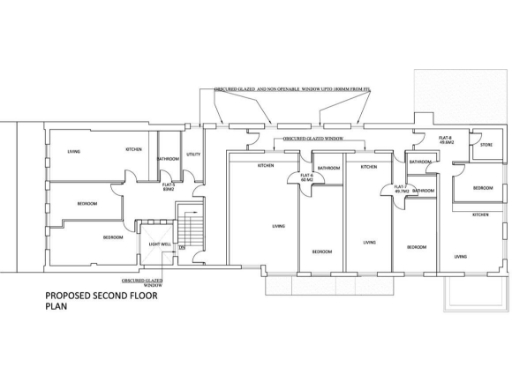
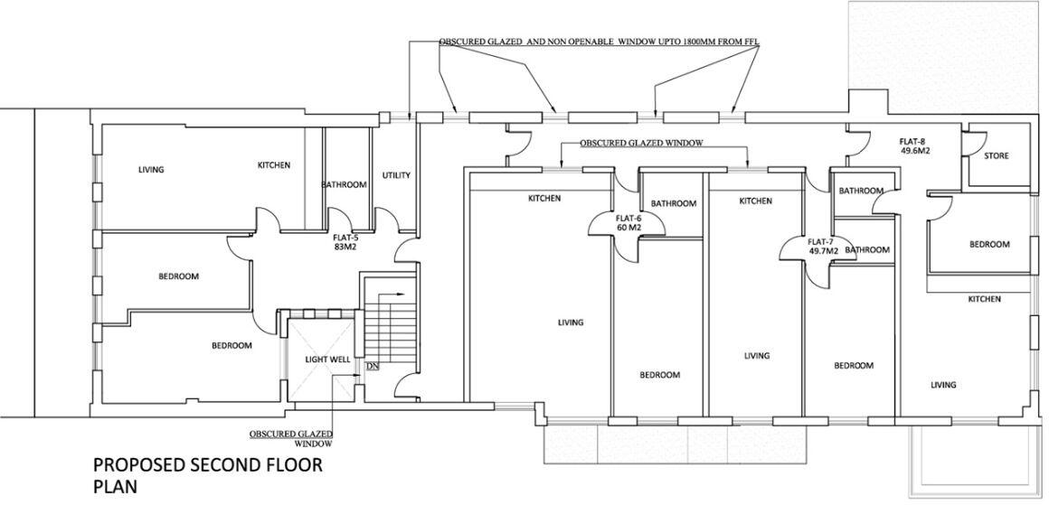
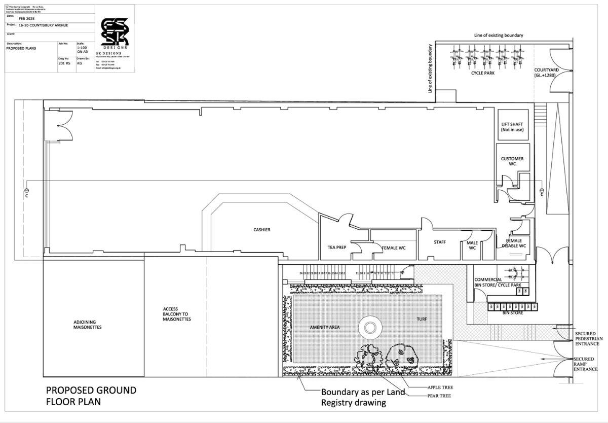
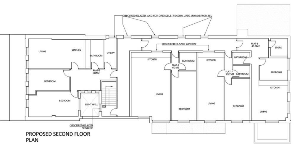
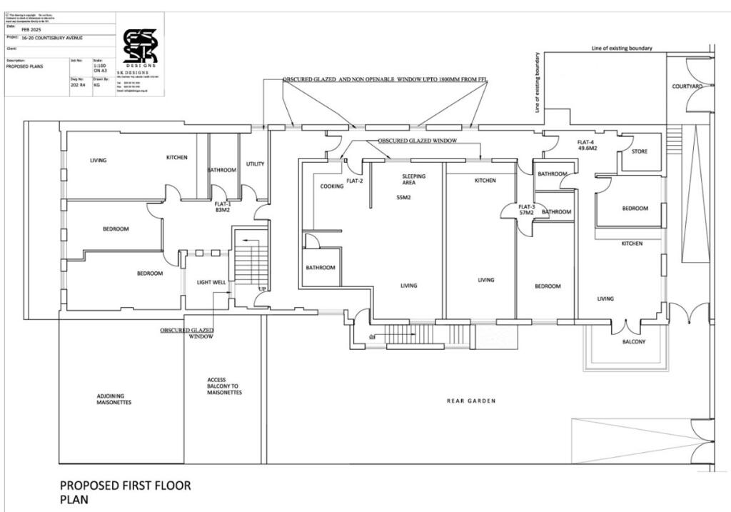
Planning approval for eight apartments (CCC ref: 21/01885/MNR)
Freehold mixed‑use mid‑terrace with separate upper‑floor access
Brick façade shows weathering and moss; external cleaning required
Upper floors likely small flats—best suited to 1–2 bedroom layouts
EPC Band D (52); cavity walls assumed with no added insulation
Located in a very deprived, high‑crime area — lettings risk higher
Suitable for developers; refurbishment and energy upgrades needed
A freehold, semi‑commercial mid‑terrace on a busy Llanrumney parade with an established national tenant on the ground floor. William Hill currently generates £23,500pa, providing immediate income while upper floors hold planning approval for eight self‑contained apartments (CCC ref: 21/01885/MNR). The site suits developers or investors who want income now with clear conversion upside once works are completed.
The building is a typical post‑war terrace with brick façade, flat roof and double glazing. External inspection shows weathering and moss staining to the front elevation and likely cosmetic upgrading needed internally to maximise rents. The upper‑floor plate sizes are modest, so layouts are best for one‑ or two‑bed flats; planning permission already reflects that scale.
Important considerations: the property sits in a very deprived, high‑crime area and will need investment to address maintenance and market the new flats. The EPC is mid range (Band D, 52) and walls are assumed to be cavity with no added insulation, so energy improvements may be required to achieve modern standards. Flood risk is low and services include mains gas with boiler and radiators.
In summary: this is a rare, income‑producing town‑centre opportunity with planning in place for eight apartments — attractive to developers seeking an existing rent roll and clear further value after refurbishment. Buyers should budget for external remedial works, fabric upgrades and local letting risk tied to the area’s profile.
Shop for sale in William Hill Bookmakers, 16-18-20 Countisbury Avenue, Llanrumney, Cardiff, CF3 — £560,000 • 1 bed • 1 bath • 2632 ft²
2 bedroom mixed use property for sale in 52 & 52A Crwys Road, Cardiff, CF24 4NN, CF24 — £375,000 • 2 bed • 1 bath • 2155 ft²
Commercial property for sale in Cowbridge Road East, Cardiff, CF5 — £350,000 • 1 bed • 1 bath • 1546 ft²
Commercial property for sale in 1 George Street, Pontypool, Monmouthshire, Torfaen, NP4 — £395,000 • 7 bed • 1 bath • 4890 ft²
4 bedroom house for sale in Newfoundland Road, Heath/Gabalfa, Cardiff, CF14 — £379,950 • 4 bed • 2 bath • 1658 ft²
High street retail property for sale in 18 , Commercial Street, Ystrad Mynach , CF82 — £145,000 • 1 bed • 1 bath • 1127 ft²


































































