Freehold mixed-use unit with planning consent and short-term income — investor opportunity.
Freehold mixed-use building with ground-floor restaurant and one-bedroom flat above
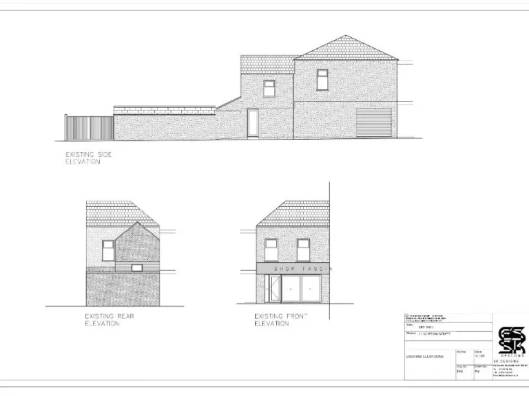
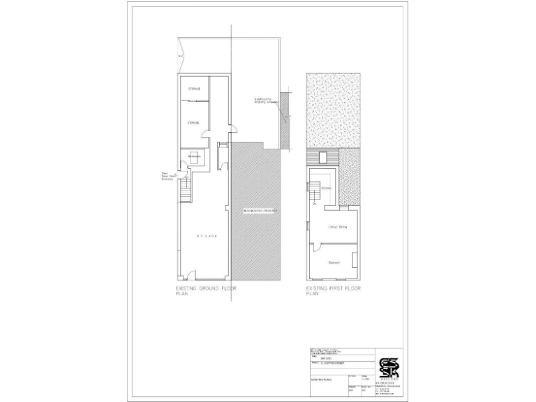
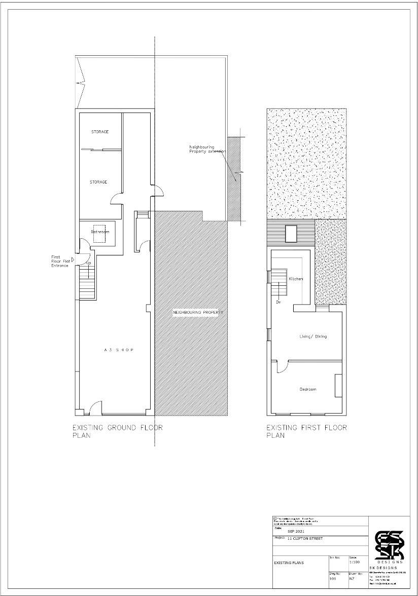
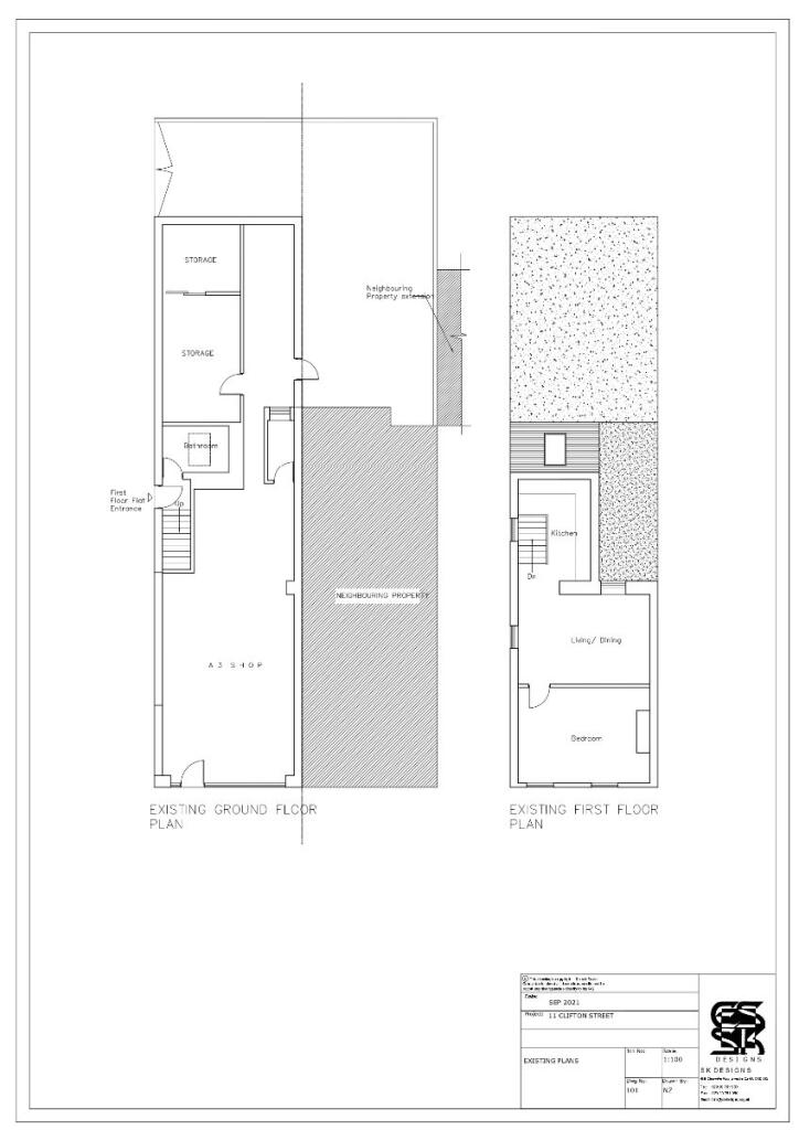
A compact mixed-use freehold on Clifton Street offering immediate rental income and short-term redevelopment potential. The ground floor operates as a takeaway/restaurant with a self-contained one-bedroom flat above, making it suitable for an investor seeking a city-parade asset with ancillary accommodation.
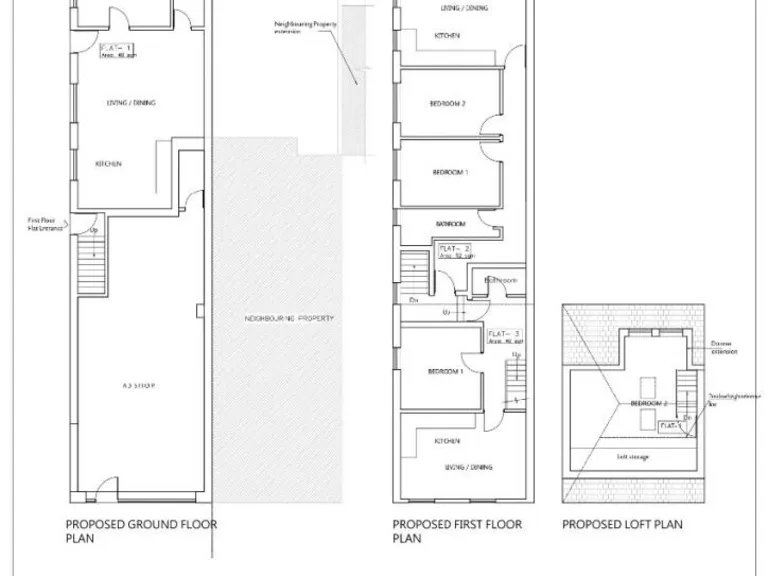
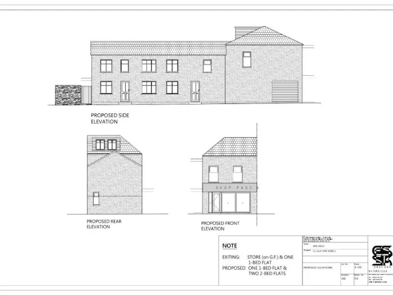
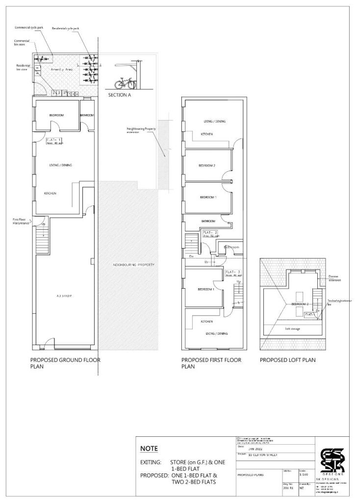
Planning consent (ref. 22/00104/MNR) exists for partial conversion to three apartments plus a ground-floor commercial unit, and there is rear access from Sapphire Street to support redevelopment or servicing. The property appears broadly sound but modest in size and will benefit from a refurbishment of the shopfront and first-floor accommodation to enhance rental value.
Important negatives are clear and material: the whole building is let on a full repairing and insuring lease only until September 2028 (about five years remaining). That short lease term may restrict mortgage finance or deter some purchasers. The location sits within a very deprived area with very high local crime statistics — this will influence tenant profile, yields and management considerations.
This opportunity suits an investor or experienced operator comfortable with urban-parade assets, short-income visibility, and a hands-on approach to refurbishment or conversion. Buyers should carry out detailed lease, planning and lender checks before committing.
 Restaurant for sale in 132, 134, 136,138 Whitchurch Road, Heath, Cardiff CF14 3LZ, CF14 — £950,000 • 1 bed • 1 bath
 Restaurant for sale in 132, 134, 136,138 Whitchurch Road, Heath, Cardiff CF14 3LZ, CF14 — £950,000 • 1 bed • 1 bath Shop for sale in William Hill Bookmakers, 16-18-20 Countisbury Avenue, Llanrumney, Cardiff, CF3 — £560,000 • 1 bed • 1 bath • 2632 ft²
 Shop for sale in William Hill Bookmakers, 16-18-20 Countisbury Avenue, Llanrumney, Cardiff, CF3 — £560,000 • 1 bed • 1 bath • 2632 ft² 2 bedroom mixed use property for sale in 52 & 52A Crwys Road, Cardiff, CF24 4NN, CF24 — £375,000 • 2 bed • 1 bath • 2155 ft²
 2 bedroom mixed use property for sale in 52 & 52A Crwys Road, Cardiff, CF24 4NN, CF24 — £375,000 • 2 bed • 1 bath • 2155 ft² 3 bedroom mixed use property for sale in Pearl Street, Cardiff(City), CF24 — £237,500 • 3 bed • 2 bath • 1000 ft²
 3 bedroom mixed use property for sale in Pearl Street, Cardiff(City), CF24 — £237,500 • 3 bed • 2 bath • 1000 ft² 10 bedroom terraced house for sale in William Hill Bookmakers, - Countisbury Avenue, Llanrumney, Cardiff, CF3 — £560,000 • 10 bed • 8 bath • 2632 ft²
 10 bedroom terraced house for sale in William Hill Bookmakers, - Countisbury Avenue, Llanrumney, Cardiff, CF3 — £560,000 • 10 bed • 8 bath • 2632 ft² 3 bedroom mixed use property for sale in City Road, Cardiff(City), CF24 — £525,000 • 3 bed • 1 bath • 1600 ft²
 3 bedroom mixed use property for sale in City Road, Cardiff(City), CF24 — £525,000 • 3 bed • 1 bath • 1600 ft²


















































































