**Key Features:**
- **Size:** Approx. 230m² (1707 sqft), 5 bedrooms, 4 bathrooms
- **Location:** Moments from Porthilly beach, quiet tree-lined road
- **Views:** Stunning countryside and estuary views from multiple levels
- **Potential:** Detailed planning permission secured, with flexibility for design alterations
- **Parking:** Integrated garage and driveway access
- **Environmental:** Efficient air source heating
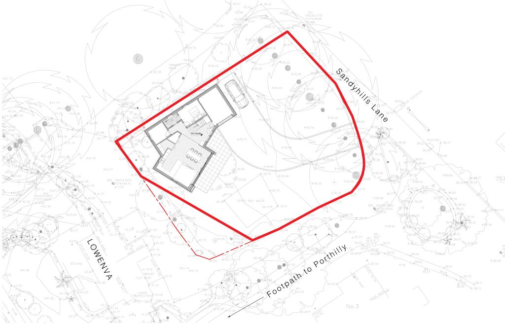
This exceptional plot offers the perfect opportunity to create your dream home just steps from Porthilly beach in North Cornwall. Located on a serene, private road, the property’s three-storey design maximizes breathtaking countryside views. With 5 spacious bedrooms and 4 bathrooms, including a luxurious principal suite with a private terrace, the layout is ideal for families or as a holiday retreat. The ground floor features an open plan living area that flows to a patio, while upper levels provide ample outdoor space, including a roof terrace and balconies, perfect for enjoying the stunning surroundings.
Detailed planning permission has been secured and allows for an unrestricted dwelling, offering immense flexibility for those looking to customize their residence. Parking is conveniently provided with an integrated garage.
Embrace a lifestyle filled with outdoor leisure activities, from sailing to scenic coastal walks, all within easy reach of local amenities in Rock and the vibrant Padstow Harbour. With low crime rates and a welcoming community, this plot presents a rare opportunity for both investment and comfortable family living. Don’t miss out on transforming this property into your ideal coastal sanctuary!
Land for sale in Rock Road, Rock, Wadebridge, Cornwall, PL27 — £1,800,000 • 1 bed • 1 bath
Plot for sale in Rosevine, The Roseland Peninsula, Cornwall, TR2 — £1,500,000 • 4 bed • 3 bath • 3067 ft²
7 bedroom detached house for sale in Choughs, PL27 — £1,350,000 • 7 bed • 7 bath • 2316 ft²
3 bedroom detached house for sale in Fieldview, PL27 — £695,000 • 3 bed • 2 bath • 1263 ft²
Plot for sale in Building Plot, St. Mawgan, TR8 — £350,000 • 1 bed • 1 bath
4 bedroom detached house for sale in 1 Tewedh Place, PL27 — £1,600,000 • 4 bed • 4 bath • 2741 ft²










































