### Standout Features:
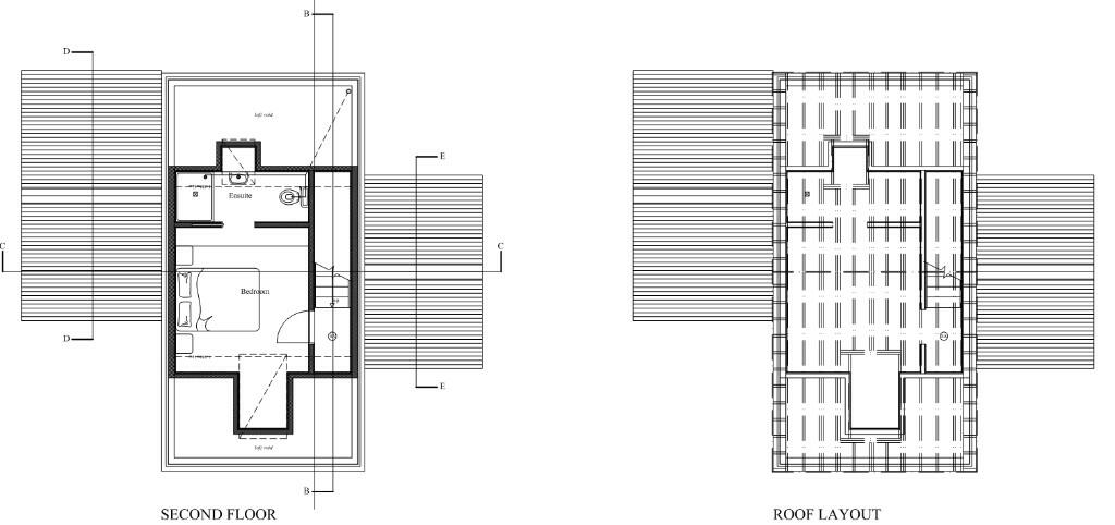
- **Planning Approval:** Detailed planning consent for a four-bedroom detached house and garage, confirmed by a Certificate of Lawfulness.
- **Sizeable Plot:** Approximately 1345 sq. ft. residence with a south-east facing garden that offers picturesque countryside views.
- **Prime Location:** Set in a charming cul-de-sac in Lostwithiel, South Cornwall, with easy access to transport links and local amenities.
- **No Additional Costs:** No S106 agreement or CIL liabilities attached to the plot.
### Summary:
This prime building plot in Lostwithiel, Cornwall, is now available for £99,950 and represents a fantastic opportunity for families or investors looking to create their dream home. With detailed planning approval for a spacious four-bedroom detached house, complete with a garage, this property promises both functionality and scenic living, boasting a generous layout of approximately 1345 sq. ft. The south-east facing garden is perfect for enjoying tranquil countryside views, making it ideal for those seeking serenity away from the hustle and bustle.
Nestled in an attractive cul-de-sac, this location offers convenient access to essential amenities, schools, and excellent travel links, including nearby rail and road services. While the plot is ready for your vision, buyers should be aware to verify utilities availability from nearby service companies. This unique opportunity combines beautiful surroundings with the possibility of creating a bespoke family home—act fast, as properties with such potential are rare in this desirable area!
Plot for sale in DEVELOPMENT SITE FOR 5 DWELLINGS, The Brambles, Lostwithiel, Cornwall, PL22 — £50,000 • 1 bed • 1 bath
Plot for sale in St Nicholas Park, Lostwithiel, PL22 — £150,000 • 1 bed • 1 bath
Plot for sale in Plot on Duke Street, Lostwithiel, Cornwall, PL22 — £119,000 • 3 bed • 1 bath
Plot for sale in Dean Street, Liskeard, Cornwall, PL14 — £200,000 • 1 bed • 1 bath • 2045 ft²
Plot for sale in Dean Street, Liskeard, Cornwall, PL14 — £200,000 • 1 bed • 1 bath • 2045 ft²
Plot for sale in Wadebridge, PL27 6AN, PL27 — £99,950 • 1 bed • 1 bath






















