Large historic property with pool and annexe — ideal for hospitality conversion or letting.
Grade II listed Welsh stone former wedding venue and spa
A rare Grade II listed Welsh stone former wedding venue and spa set in about one acre with wide views of the Clwydian Range. The Coach House and adjoining Dovecote combine large period function spaces, former catering areas, a mosaic hydro-pool, sauna and steam room — assets that support leisure, hospitality or specialist residential conversion. The dovecote already operates as a holiday let; the adjoining annexe has consented potential for a further letting unit.
The property is offered for sale by auction (Modern Method). A favourable planning response was received for conversion to a 10-bedroom holiday home, but that consent is not completed and any new use will require confirmation of permissions and listed-building consents. The building’s listed status and the scale of internal fittings mean restoration, maintenance and specialist contractors will be needed; fixtures and fittings are excluded and may be available only by separate negotiation.
Practical points for buyers: the sale is subject to buyer fees and a non-refundable reservation fee under the auction process, and buyers must complete within the auction timetable. Services are believed connected but are untested; the site has substantial parking and vehicle turning, but the rural location and local area classification (remoter communities, very deprived area) should be considered when projecting visitor numbers or rental income. This is a development or business opportunity for an experienced purchaser able to manage listed-building works and planning risk.
In short: strong bones, significant character and leisure infrastructure in a scenic rural setting, but requires a purchaser prepared for listed-building constraints, refurbishment scope and the practicalities of an auction purchase.
5 bedroom link detached house for sale in Maenan, Llanrwst, LL26 — £400,000 • 5 bed • 4 bath • 2982 ft²
3 bedroom detached house for sale in Llanasa, CH8 — £300,000 • 3 bed • 1 bath • 1101 ft²
Hotel for sale in Oriel House Hotel & Spa, Upper Denbigh Road
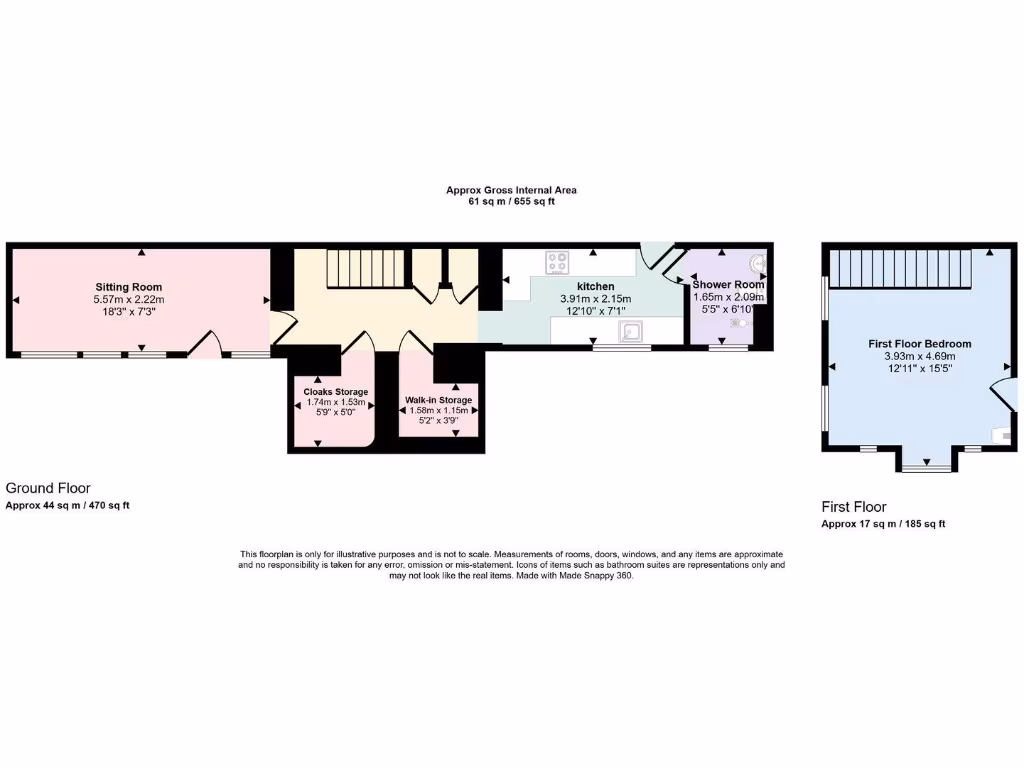
St. Asaph, Denbighshire, LL17 0LW, LL17 — £1,800,000 • 1 bed • 1 bath • 1551 ft²
12 bedroom farm house for sale in Ty Nant, Corwen, LL21 — £1,400,000 • 12 bed • 7 bath • 5651 ft²
3 bedroom house for sale in The Square, Corwen, LL21 — £150,000 • 3 bed • 3 bath • 2398 ft²
3 bedroom cottage for sale in Old Highway, Colwyn Bay, LL28 — £300,000 • 3 bed • 1 bath • 755 ft²






































































